爱蜂潮装饰 4 [% @2 O0 M8 I( d F- R* A, p
爱蜂潮——中国智慧家居的领跑者! 爱蜂潮——中国家居领域受人尊敬的领导者! 爱蜂潮——中国装饰行业6S环保工程管理体系倡导者! 设计师介绍+ R, j( o7 W+ z( S: N
* j- F; j/ h+ q$ F/ o# ~. t
姓 名:刘家杰 从业时间:5年 擅长风格:欧式/新中式/现代 设计理念:没有什么是最好的,根据不同人的需要,去设计最适合他们的居室,从而让他们得到一定的满足感。 设计心语:生活,因细节而生动…… 成功案例: 中南世纪城、军山半岛、外滩北苑、恒盛豪庭、城市佳苑、恒盛尚海湾、 华强城等

0 z O4 D' Y* @0 @% ~$ ?) k
; c- e& n' `2 P% d# R1 ` X2 F0 F& q: J6 E. d
作品介绍5 l$ E) B. _ X6 B4 f
项目名称:军山半岛23#605) }& p" s. A. d+ H# d8 @9 k' T
装修风格:简欧
. C) ]9 q q+ |面积:180$ v5 m+ [4 \$ m) p. [( B
户型:复式1 L2 J2 a2 ?! G2 w6 }
设计说明:本案设计风格为简欧风格,营造一种低调奢华的小资情调,效果也是和业主多次沟通,多次对比达成共识。整个空间效果比较亲切宜人,材料的运用,明暗对比使得整个空间协调一致。
$ O1 B3 ]" O# l6 x一楼原始图& x5 p/ n5 n2 X
$ T2 h) s$ f/ g: }! R$ t! J
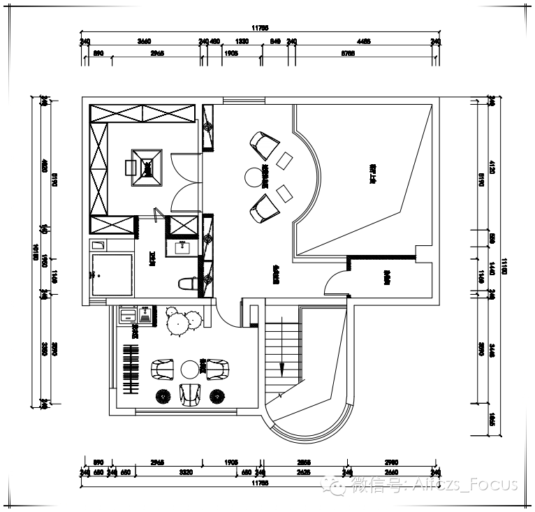
1 G% G7 e4 L4 R; ^一楼平面图0 u" M3 L! r- Z
- u% s8 i% x! O3 J- b3 J
. \# V0 M, _, u
二楼原始图, X V8 s9 N* W* w
! {9 P3 C$ R, ^* u' X
2 s0 i& q3 B8 U9 m
二楼平面图
$ X$ b. v1 D# P* y* O* d % Z, ^8 `! P; k
) p7 |' L9 g7 w! N# a# x8 S3 Q效果图7 W+ J c! q' X' V. e) k: a) Q
. }# ~1 k% l r' Z: z+ v
7 o+ l& |! p6 V, b5 |' L" y5 ^' m ( c6 u4 K- s# v( \! M3 s

{8 y& X7 j9 J
7 O0 {9 R6 y; G
( n/ j& {7 z) W# [5 t4 e2 s放心家装 找爱蜂潮
! s! L% u: Y H% z1 a. n' t
' j$ B- a5 R# _- w7 B: T
7 J. o: Y5 E7 o; [ L% A8 ^9 K& P
! R" |( s- R; k# h联系方式咨询QQ:629068887 预约热线:18862982885 公司网址:www.afczs,coм,cп 公司地址:南通市城山路锦安花园附八栋
: R5 c0 T# v' N南通0 |