濠滨论坛

点击扫描二维码

查看: 1444|回复: 3

【开工喜讯】热烈祝贺新城小区沈先生开工大吉!!

[复制链接]

该用户从未签到

发表于 2015-3-16 09:50 | 显示全部楼层 |阅读模式 来自:北京
爱蜂潮装饰
爱蜂潮——中国智慧家居的领跑者!
爱蜂潮——中国家居领域受人尊敬的领导者!
爱蜂潮——中国装饰行业6S环保工程管理体系倡导者!
热烈祝贺新城小区沈先生开工大吉!; a4 G2 v* }' C3 \2 h

0 X1 ~3 D- O% j
工程地址:新城小区% `+ q1 Q& b  p) [
工程面积:140平米
  a- R' {; H* V* m! L; f
项目经理:秦志广
开工日期:3月15日
开工现场
设计师与业主合影
设计师介绍
2 s' _. ?/ ^( l( K
姓    名:陈潇溢
毕业学院:河北师范学院
从业年限:5年
获得荣誉:2012年润泰集团十佳优秀设计师
         南通电视台优秀设计师
设计理念:用最少最简练的造型语言表达最深最浑厚的理念!
设计理念:专业的态度做专业的事
设计心语:简约而不简单,时尚而不奢华,含而不露,奢而不骄,从历史中寻找灵感,在设计中不拘泥与特定的风格设计,采众家之所长,充分展现居者的品位与境界,创意源于生活,成功源于执着!
擅长风格:现代简约 简欧 新中式
成功案例:星光耀、皇家花园、中港翡翠城、中南世纪花城、中港城、奥特莱斯、世伦名郡、益星名流府、华强城、万濠星城等

' |9 f1 S9 G: I- B3 |* G5 t& V& L
原始结构图
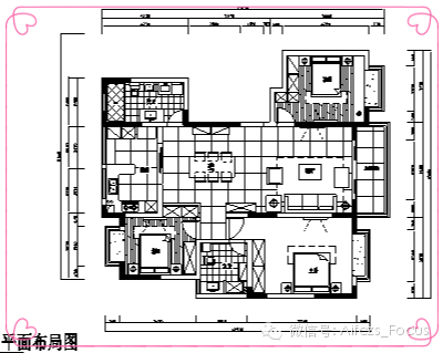
平面布置图
( {$ l' E- p& \* ]& Q; V9 i& f& F- l" b
放心家装  找爱蜂潮

+ p: L9 v7 V0 L+ i8 Y
联系方式
咨询QQ:629068887
预约热线:18862982885
公司网址:www.afczs,coм,cп
公司地址:南通市城山路锦安花园附八栋

; f" ?" m; O3 ?# H' [5 ^
, @+ T0 a6 h$ h5 O9 T

# Q$ S" ^2 L' p1 }) H9 S" x# w南通0

该用户从未签到

发表于 2015-6-10 17:22 | 显示全部楼层 来自:江苏
2015年6月14日爱蜂潮,年中团装惠/文景大酒店全天恭候您的光临!
. L9 r  h- l% j3 x+ \' k预约热线:18862982885
! M% R7 z1 O) c3 |咨询QQ:629068887
( S" K, y2 l" G  t0 c. ?5 y4 T4 H( D0 g9 z# Z
# R, [" b% B  Q! ?
2 w7 Q+ d5 |. ~. K* I7 w1 [: J
回复 支持 反对

使用道具 举报

该用户从未签到

 楼主| 发表于 2015-6-11 17:51 | 显示全部楼层 来自:江苏
2015年6月14日爱蜂潮,年中团装惠
                                              零顾虑样板房征集,火爆进行中
( R* e2 @, W" W% c5 C1 K8 M# Q( _

; i' o  y2 {0 c* Z
2015年爱蜂潮年中团装惠,为特别感谢一直以来支持和信任爱蜂潮装饰公司的新老客户,爱蜂潮装饰公司将在6月14日重磅推出“年中团装惠”年中装修特惠享好礼活动,同时在年中之际,携手广大业主,共同探讨时下最流行的家居潮流,一起筑就家装达人的生活梦想!

/ s) a- G9 D! A/ S9 S

3 U. E: ^' Z6 d8 ^) |# u7 `微信网络提前预约 更有好礼相送
) m$ q" H& ~8 ?% c; q$ N9 z
/ e* }: f0 @/ X' N( U  {$ ^5 @
【预定电话】18862982885/80980727
【预约QQ】 629068887[url=http://wpa.qq.com/msgrd?v=1&uin=629068887&site=[%E5%A9%B1%F5%C2%DB%CC%B3]&menu=yes][/url]
【活动地点】南通文景国际酒店二楼文景厅(崇川区世纪大道55号)
: V  H6 e7 R" H9 |/ `. d; ~2 F; _

9 ~, M3 l4 G$ X$ q- c
7 R2 b% z, o! [, X
7 ^- {. ^, j: |1 P! F, F

- G' n8 E% \: i& P( n) A6 Y" F% O9 W: ?3 c8 r- }: |* k
【公交路线】世纪大道公交路线:72、38、39、40、70 ;
           特教中心曹公祠公交路线:5、15、27 ;
           工农路市行政中心西公交路线:13、22、58、72、301;
【主办单位】爱蜂潮装饰工程南通有限公司
【技术支持】焦点别墅高端工作室、V8原创设计工作室
【媒体支持】江海晚报、濠滨论坛
6 Q( ^+ h! I0 K0 v6 [- y5 W
回复 支持 反对

使用道具 举报

该用户从未签到

 楼主| 发表于 2015-6-17 16:46 | 显示全部楼层 来自:江苏
2015大宅文化 定制专家
5 H3 `' _/ b) X- ^- ^% T4 X/ R% n9 B咨询QQ:629068887
# n5 F9 I4 @% }" G; w& `预约热线:18862982885
回复 支持 反对

使用道具 举报

您需要登录后才可以回帖 登录 | 注册

本版积分规则

手机版|无图版|站务联系 | 商务合作 | 平台公约

信息产业部备案:苏ICP备05014191号-1 经营性ICP许可证:苏B2-20110445 苏公网安备 32060202000307号 © 2001-2019 0513.org All Right Reserved.

投诉争议 技术支持:第一互联 GMT+8, 2025-12-20 12:33 , Processed in 0.175985 second(s), 13 queries , MemCache On. 站点统计

快速回复 返回顶部 返回列表