濠滨论坛

点击扫描二维码

查看: 1122|回复: 0

爱蜂潮设计师——孟佳设计作品

[复制链接]

该用户从未签到

发表于 2015-3-14 14:23 | 显示全部楼层 |阅读模式 来自:北京

: Y" l( |' Z! \9 D1 U爱蜂潮装饰
爱蜂潮——中国智慧家居的领跑者!
爱蜂潮——中国家居领域受人尊敬的领导者!
爱蜂潮——中国装饰行业6S环保工程管理体系倡导者!
设计师介绍

7 P7 Z; H* |% l& H. j* d3 J$ {8 V2 P' K
姓    名:孟佳
毕业院校:青岛恒星学院
从业年限:5年
设计理念:设计要以人为本,让美观与实用相融合,有限空间,无限精彩
设计心语:用一颗负责任的心做好每一个设计
擅长风格:新中式,现代简约,简欧,简美
成功案例:苏州海悦花园,苏州台湾妙口饭店,苏州雍合湾,吴江五七电镀厂,华强城,皇家花园,富贵园,万濠星城,炜赋花苑等

# @, e7 r4 Q. l" e$ S" C

$ w/ x0 {7 p. ^7 Z作品介绍
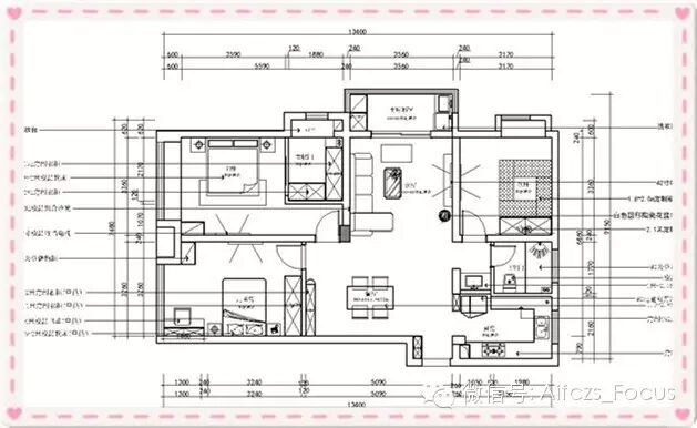
项目名称:万濠星城9#1108
所在县区:崇川区
装修风格:现代简约
房屋户型:三室两厅一厨两卫
建筑面积:120平方
设计单位:V8原创设计机构3 p! G" {+ d6 ^: X- k
施工单位:爱蜂潮装饰工程南通有限公司, `8 b6 Z" y/ @! ], g6 I7 i
项目经理:孟凡江
开工日期:1月9日
工程类型:半包(人工+辅材)
       半包包括水电材料及人工,瓦工材料及人工,木工材料及人工,油漆材料及人工等
户型解析:
       1、户主是很恩爱的一家三口,男业主是公司主管,很好沟通,女业主漂亮温柔,他们又一个很可爱的女儿。
       2、该户型东西方向通透,三房向阳,采光良好。

- `) J, I$ E7 H6 L
设计说明:
       1.该案采用的现代简约装修手法,地面地砖采用满铺的方式,与吊顶相呼应,采
        用灰色和浅黄色的主色调,使得家里高端大气稳重。
       2.女儿房要特别根据女孩的粉色情节来弄
       3家居的配置,只留了一个卫生间,主卫改成女主人的衣帽间和工作区节约成本,增加储物空间,更方便以后生活。
      4.原本准备刷色漆的墙,现在改成全部用硅藻泥。

3 l4 X# A. t1 V3 {; k
# U4 ]' j  |) D6 A4 H
原始图
( I9 y9 D; C" I" _3 l; w  v! R- R
敲墙图
* g. w+ u1 p% u- B& t5 J0 B4 F
砌墙图
! C- m' W6 G# P2 S; t7 Q
平面图
开工现场
( I' s3 F7 @* N9 e! G
从开工到现在,业主家发生了哪些变化呢,和小编一起看看吧~~
' c' ~$ ^- j6 k9 Z
开工啦~
工地现场很干净哦

* S" a4 l7 u4 l0 F) k! o
工人师傅开始做水电了,一切都是那么的井然有序~~
瓦工也登场咯~~

' R/ [( }  x4 x0 }   
后面会持续更新业主家的最新动态,请大家多多关注~~
2 E( W7 U, p, {
放心家装   找爱蜂潮

% t8 b2 _3 _* o
联系方式
咨询QQ:629068887
预约热线:18862982885
公司网址:www.afczs,coм,cп
公司地址:南通市城山路锦安花园附八栋
- g# }% s8 A" K! }

+ R. S7 @+ d. f
( B0 I# v  H/ {4 x# J/ I南通0
您需要登录后才可以回帖 登录 | 注册

本版积分规则

手机版|无图版|站务联系 | 商务合作 | 平台公约

信息产业部备案:苏ICP备05014191号-1 经营性ICP许可证:苏B2-20110445 苏公网安备 32060202000307号 © 2001-2019 0513.org All Right Reserved.

投诉争议 技术支持:第一互联 GMT+8, 2025-12-20 02:28 , Processed in 0.183720 second(s), 13 queries , MemCache On. 站点统计

快速回复 返回顶部 返回列表