濠滨论坛

点击扫描二维码

查看: 2017|回复: 1

热烈祝贺中海碧林湾16#1003孙先生开工大吉!

[复制链接]

该用户从未签到

发表于 2015-3-12 09:51 | 显示全部楼层 |阅读模式 来自:江苏
6 t$ V& ~& p/ A0 o) m, j; G
6 n( R" k- Z; f
热烈祝贺中海碧林湾16#1003孙先生开工大吉!

" @- r- \5 N3 `2 W- \
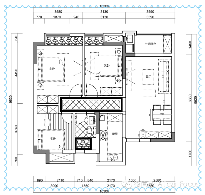
工程地址:中海碧林湾16#1003
- J& p2 h, V5 a工程面积:95平米& T+ X9 q5 Y# Z7 `# J
房屋户型:3室2厅1厨1卫
1 O1 R) E# O0 ?- Z/ X
项目经理:陆秀江
装修风格:现代
开工日期:3月8日
开工照片
设计师与业主合影
设计师介绍
姓    名:张明敏
毕业院校:苏州大学
从业年限:7年
获得荣誉:南通TV家装设计大赛最佳创意奖
设计理念:设计有心,魔鬼在细节
设计心语:用我的画笔在图纸上勾勒出你心的港湾
擅长风格:欧式,新中式,新古典,美式
成功案例:第九园,玉兰公寓,天安花园,尚德城邦,绿树湾,全景大厦,世伦名郡,未来景城,保利.香槟国际骏和.棕榈湾,苏建名都城,万濠新城,苏建花园,水榭花都,御景华庭等
原始图+ s9 d2 s9 e& z; Q, q9 [! ?9 C
平面图
参考效果图

/ Z3 `: k" l6 J

7 ^7 T' T8 O* `$ g* U& W
好装修  找我呀3 i# `$ n/ \6 U. h, W
1 p, m) Y" M. y, ^1 H0 ~3 Q' U! I

  `5 w1 r+ j! t1 _- O1 k+ T联系方式
咨询QQ:629068887
预约热线:18862982885
公司网址:www.afczs,coм,cп
公司地址:南通市城山路锦安花园附八栋

$ V+ N4 o3 t4 V8 S1 j) E, R2 i6 x1 L
4 q! A$ n$ E) g3 ~6 r( ?
. v! z' |6 X1 l8 h# f2 X

. I1 Q, o* \- t3 i- G% V& j- r南通0
爱蜂潮1.jpg

该用户从未签到

 楼主| 发表于 2015-3-12 10:46 | 显示全部楼层 来自:北京
好装修  找我哟
8 z7 w) m: a7 u! R8 {咨询QQ:629068887! }$ k. j( w. V& I! o9 N
预约热线:18862982885
回复 支持 反对

使用道具 举报

您需要登录后才可以回帖 登录 | 注册

本版积分规则

手机版|无图版|站务联系 | 商务合作 | 平台公约

信息产业部备案:苏ICP备05014191号-1 经营性ICP许可证:苏B2-20110445 苏公网安备 32060202000307号 © 2001-2019 0513.org All Right Reserved.

投诉争议 技术支持:第一互联 GMT+8, 2025-12-20 04:00 , Processed in 0.169480 second(s), 15 queries , MemCache On. 站点统计

快速回复 返回顶部 返回列表