濠滨论坛

点击扫描二维码

查看: 4040|回复: 8

小户型大收纳 珍藏版 不拿白不拿 留着用吧

[复制链接]

该用户从未签到

发表于 2015-1-9 14:35 | 显示全部楼层 |阅读模式 来自:江苏
- n' O# Q, s+ T1 i( e
: e- [" u0 b2 B5 c, i
    致热爱优雅生活的你:
    我们享受物质文明
    但我们更追求精神上的慰藉
    如果把美变成一种信仰
    看阳光与爱倾泄而下
    洒满我们小小的、温暖的家
    在这里
    自由自在,享受人生给予的恩惠……
( G+ w3 L" l" }. Z( F% b5 z
    这是一位热爱优雅精致生活的台湾小女人lucy的家,不难看出,设计师是位时尚、敏锐、有品位的年轻人,他用各种温和、人文的诉求方式传达视觉的美感和生活的意义。接下来就让我们一起走进lucy的家,感受设计师带来的视觉盛宴和实用主义的运用。
5 d( W5 l3 Y) C$ O0 r" e6 D+ Y" N8 Y    其实,有时候,我们并不慌于去定义自己小屋的装修风格。现代简约?田园?地中海?抑或古典?风格的背后是简约、实用和无拘无束的自由。这充满人文情怀的房子是lucy最温暖的港湾……! X; A9 u! G4 l8 ?. ~1 _5 [& R

鞋柜

鞋柜
    鞋柜,也出乎意料的美
    推开房门,右边就是制订的美式鞋柜,充满设计感,简约而实用,可收纳一家四口当季穿的鞋子 ,小朋友可以坐在旁边的边凳上穿鞋;$ |! O: Q! k- p7 n: \
    而与鞋柜融为一体的穿衣镜绝对是一大亮点,在现代装修中,镜子的运用充满禅意,位置的选用也是很多人比较讲究的地方,古语云,以铜为镜,可以正衣冠。衣冠的和谐之美体现了一个人的精神面貌,进门和出门的时候,都能先看到自己,修正而自信,美丽而愉悦。; Y% w6 R+ r( w" t% ?' r& z

卡座

卡座
    卡座的可遇不可求
: j5 l. Q; c% {$ C% a    在上面的图片中,我们看到了客厅的一角,餐桌旁的卡座功能强大。- k3 a1 {+ B& U- @$ }
    卡座的运用可遇而不可求。精致的L型卡座实用而美观,lucy家的卡座收纳了一家四口非当季的鞋子,还有姊姊穿过留给妹妹的一堆旧鞋。同时,光纤接入与无线网络设备等都完美的隐藏在内,这样实用的卡座同样完美勾勒出了小小餐厅的弧度,色调与餐桌呼应,美就一个字!

休息区域

休息区域
    餐厅?书房 ?这样柔和的调调
7 j0 c3 U, t. \+ g; {" _* o    喜欢洋酒的热烈或咖啡的氤氲,这里就有咖啡厅的浪漫和优雅。
0 g' h$ r, \: F    对于小居室来说,布局的合理利用至关重要,这个区域也是一家四口的用餐区 ,加两把椅子 ,最多可坐六个大人和两位小朋友;就算客人多点,也不怕,L型沙发+L型卡座皆在一区,餐桌就在一旁,可以不用买茶几喽,客厅因此显得大而紧凑。. Y% i1 ^$ Z5 ~% n8 X9 ~
    这样以旧曲新唱的巧妙构思,把高雅的古典情趣和潇洒而精巧的现代手法融为一体,展现鲜明的时代气息。

沙发

沙发
    沙发的选择同样需要智慧
    L型的米色粗麻沙发 ,属于宜家的简约风格,其特色是靠背比一般沙发高 ,而填充物含有羽绒,坐在上面相当舒服。娇小的你可以窝在上面,温暖适宜,就算身高180cm的男人同样可以舒服地坐着 ,头不会悬空 ,腰不会酸 ,美观而实用。

客厅

客厅
    厨房或浴室的非承重墙没有按常规的设计而敲掉,以保有了客厅的方正,维持原有的3.8m的距离 ,这样才能买60吋的大电视 加上 BOSE家庭剧院组 ,虽然房间小,我们同样可以在客厅舒压解劳,豪华视听享受就在身边。

拓展区域

拓展区域
    别出心裁的区域拓展就在这里
    地台可说是小房型的救星呀,因为阳台落地窗上面是梁不能敲掉 ,所以吊顶高度变低, 地台只有30cm高 ,只能买宜家最薄的床垫(10cm厚),两张80*200cm+120*200cm的床垫正好放在2m*2m的地台上 ,宜家的床垫虽不厚,但是柔软舒服 ,白天放几个抱枕就是一个休闲发呆的好地方啦。6 Q  r( b4 l0 y: y
    而晚上就变成爸爸妈妈跟妹妹睡觉的地方,透过窗子,看星星眨着眼睛,听爸爸讲探险王国的故事,美美的入眠。这里有时也是姊妹俩游戏的地方,拉上两边的布帘就成了像帐篷一样的秘密基地,这里是小朋友的小天地。
0 U; p% ~  t, i1 @3 l    当然啦,将阳台打通成为地台区并改造成睡房,保暖要求非常重要哦, lucy听从设计师的建议,用三层玻璃封阳台,并在窗边做一排矮柜,可以防寒气。

儿童房

儿童房

书房

书房
    儿童房兼书房?怎么做到的?
    不推崇豪华奢侈、金碧辉煌,以淡雅节制、深邃禅意为境界,重视实际功能,坐卧两用的床是小户型的首选,lucy选择的小床和书桌使空间宽阔,为宝宝留有一定的活动空间。当然啦,在选材上lucy也特别注重自然质感,以便让孩子与大自然亲切交流,其乐融融。
6 q' N: H' b! J% @    其实,对于活在都市森林中的我们来说,家居环境所营造的闲适写意、悠然自得才是我们所追求。这样的坐卧两用床,你喜欢么?

厨房

厨房
    厨房与生活阳台
    深色的木纹地砖配以七彩复古壁砖,体现了“中性”风格,除L型的厨柜外,冰箱一侧也做一排厨柜,增加了收纳空间。将厨房的窗户打掉,一是增加采光;二是热水器与洗衣机也可以摆进来;三是封起来后既防盗又不阻碍逃生。室内外沟通,看起来紧凑而整洁,竭力给室内装饰艺术引入了新意。

卫生间1

卫生间1

卫生间2

卫生间2
    卫生间
    深咖啡色的木纹地砖,搭配淡米色与咖啡色皮纹墙砖,竟然有人说这样的色彩搭配可以做书房!虽然有点夸张,但作为卫生间的主题色调,实在太贴切了!" x( x2 ]. A5 I; ?4 e1 p) c+ @9 s
    淋浴龙头装的地方往左45度(砌了三角柱),站在这边淋浴会感觉空间大一点。+ C3 f$ Q9 g: c( ~/ S0 y
    马桶上的油画、阅读灯……每一个细节都充满创意,新旧融合、兼容并蓄的折衷主义立场,装饰物数量不多,在空间中却能起到画龙点睛的作用,您感觉到了吗?
- o) l7 a+ L" A$ A+ p
    看过以上片片,大家能猜出这是60平米的房子吗?2 w- U, Y' L( F/ W: q4 v
    整个空间实际可使用面积只有60平米,但经过设计师的改造却拥有卧室、儿童房、起居室、卫生间、厨房,以及足够的储物空间,完全秉承一句话:“麻雀虽小五脏俱全”,整个空间有条不紊,开阔明朗,通过巧妙地分隔,使空间分割后又有一定的关联。
' o8 _! B* ^8 C- z' s    无需宽阔的空间与大型的陈设,收纳就要量身定做,既实用又美观的收纳,不仅体现出有规有矩的空间美感,更使空间扩大了许多。
: Q4 _: w, V0 j6 h    温馨的居家气氛不仅仅通过软装来体现,空间设计中运用弧形门洞,淡雅的墙面添色不少。整个空间采用杏色为主体基调,空间的家具布置与空间的配合简洁统一,完美体现了温馨的气息。讲求风格,在造型设计上不是仿古,也不是复古,而是追求神似。
, ]0 c6 e" g6 ?6 C/ G0 r    对装修的态度,代表着优雅而庄重的生活态度,而不仅仅是家具的仿古、昂贵,简约、实用的装修风格才会造就温暖的家。( {; J% `) z( a9 `# J
    致热爱优雅生活的你,喜马室内设计与您一起,创造与发现生活的美。. p9 Y7 J5 z4 F* g" L
    我们在这里,你在哪里?
南通0

该用户从未签到

 楼主| 发表于 2015-1-9 14:37 | 显示全部楼层 来自:江苏
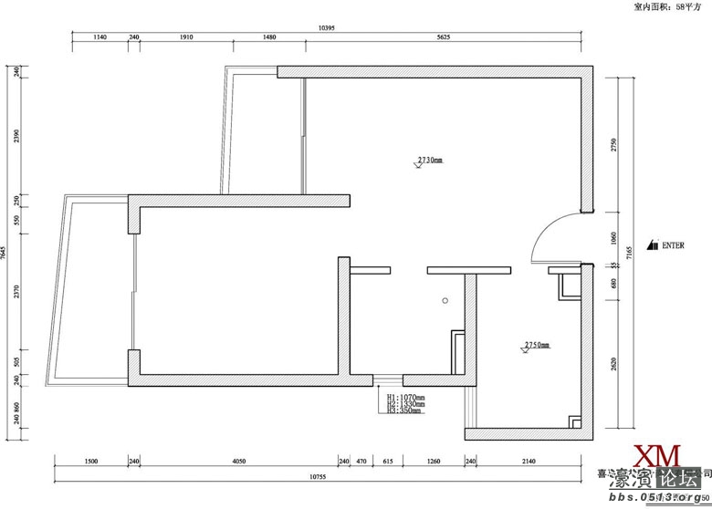
    原有户型分析:3 A. k8 _1 E/ i6 S2 _  D9 w
    整体空间为一室一厅并包含两个阳台,适于单身人士或两口之家。因此本次设计主要思路为如何在整体空间中加以整合分割使其更加适用于本住户,并将空间加以分割,提高空间利用率,做到空间合理化分配。
) Y" @  ^$ C& e% S, _% H
12.jpg
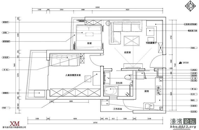
    更改户型分析:
9 [8 I. l" l6 }8 N; A* U将原有两厅与相邻阳台进行整合减小空间公用面积后加以分割为一室两厅,配合原有格局,使间功能布局完善,让空间格局分配更加适用于本住户。划分后的两室两厅使空间变得更加紧凑实用, 并且整个空间除去明显的高柜等收纳工具,在床下、餐厅座椅等地方更是增加了意想不到的收纳功能,完美解决四口之家的收纳问题,增加设计亮点。
# N6 i" {' D8 n" d+ b& s* R
13.jpg
4 V3 x7 j, e8 }4 r
回复 支持 反对

使用道具 举报

匿名
发表于 2015-1-9 17:27 | 显示全部楼层 来自:江苏
提示: 作者被禁止或删除 内容自动屏蔽
回复 支持 反对

使用道具 举报

匿名
发表于 2015-1-9 17:27 | 显示全部楼层 来自:江苏
提示: 作者被禁止或删除 内容自动屏蔽
回复 支持 反对

使用道具 举报

匿名
发表于 2015-1-10 10:38 | 显示全部楼层 来自:江苏
提示: 作者被禁止或删除 内容自动屏蔽
回复 支持 反对

使用道具 举报

该用户从未签到

 楼主| 发表于 2015-1-13 10:29 | 显示全部楼层 来自:江苏
认真读完这篇文章,便可发现设计师真的很用心
回复 支持 反对

使用道具 举报

匿名
发表于 2015-1-15 15:43 | 显示全部楼层 来自:江苏
提示: 作者被禁止或删除 内容自动屏蔽
回复 支持 反对

使用道具 举报

匿名
发表于 2015-3-3 15:12 | 显示全部楼层 来自:江苏
提示: 作者被禁止或删除 内容自动屏蔽
回复 支持 反对

使用道具 举报

您需要登录后才可以回帖 登录 | 注册

本版积分规则

手机版|无图版|站务联系 | 商务合作 | 平台公约

信息产业部备案:苏ICP备05014191号-1 经营性ICP许可证:苏B2-20110445 苏公网安备 32060202000307号 © 2001-2019 0513.org All Right Reserved.

投诉争议 技术支持:第一互联 GMT+8, 2025-12-20 02:29 , Processed in 0.225711 second(s), 16 queries , MemCache On. 站点统计

快速回复 返回顶部 返回列表