濠滨论坛

点击扫描二维码

查看: 1331|回复: 0

#花半里#锦华【全案】预告:1个户型8种效果方案等你选!

[复制链接]

该用户从未签到

发表于 2014-12-21 21:51 | 显示全部楼层 |阅读模式 来自:江苏 移动/数据上网公共出口
/ V2 X" M. D; H1 O% v4 ]# M$ ]& ]
: y8 }" v: y7 B' B
#花半里#锦华【全案】预告:1个户型8种效果方案等你选!

% F- k4 t3 A9 [* b/ L  g锦华第一批全案研发的盛和·花半里户型:
1.jpg
(89㎡户型)

" g9 F' ]9 C7 [& B+ r. S" a
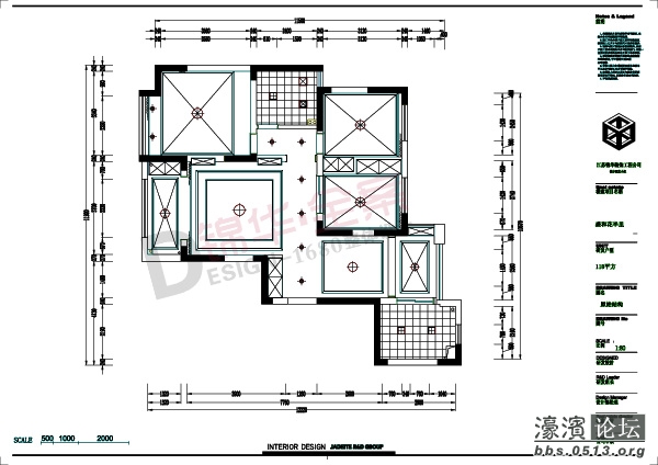
2.jpg
118㎡户型)
  Y9 O2 I1 d- g; H6 b* r1 A5 |
什么是全案:8 c  S- e) L( M4 ?2 z0 ~
8 c8 C7 N8 Z7 t2 F6 s) d
>>效果前置:
/ C& E/ D$ v7 w" w3 d3 t7 Z% Y( K$ ~) \; z$ K6 ]. d% B  D
家居不再靠想象,订单前看效果
' c/ c! V) |' c( k9 i% a  J9 N重点楼盘及预约户型,1:2的彩色效果图,最终效果心里有数。/ [' M. @" r3 Q5 F: m# a8 o

7 j% q: \! N9 d( H>>价格前置:
+ Z2 y" F# g/ T3 ]6 v8 C
) Q& R. b/ v& U4 j" C7 H投资不再心里没底,订单前明价格
! P1 p: k% M) E重点楼盘及预约户型,全案设计+全套报价,价格超了我负责。7 A1 y! J7 P' T4 a
! N2 n2 U; d- X) z  D6 M( Q6 q% ^
花半里全案新鲜出炉,成品预告:/ L4 b& A' X8 X) G" V4 \% y' q
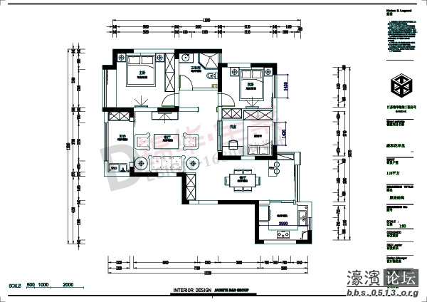
以下118㎡户型美式风格全案设计成品展示:- V, q$ c% E. @

! f: P5 A3 G% r* y( J>>平面布置图:
/ w- B7 h" c( Z
3.jpg

7 H! j! p! s2 g1 {' ?1 n, o9 \>>顶面图! c+ w7 I  X( L! _; {
4.jpg
4 `5 o6 L1 s9 \0 p$ g8 s
>>彩色效果图(其他风格会在锦华店堂看稿会发布):, K1 w9 D# u% G0 J
5.jpg
- w0 k  D: @3 B- L: _" R
>>概算及决算:1680元/平米-2180元/平米,全面概算,价格超了我负责。  g3 b5 G/ ]/ N( c- j3 }, `0 O5 @, a
$ K6 O3 s) A5 _/ W: v
该户型看稿预约:0513-68506789
; Y) T2 q" _9 j, Q1 R【盛和花半里·全案设计】其他户型预约:请点击填写信息,提交!0 {+ L% e* }% c' p4 l8 v2 o

; g9 @0 m! C' z& w9 w4 ]再也不用担心最终效果达不到预期。( G1 O) S: _* U& f8 f2 M
再也不用担心价格超到无法接受。
2 p$ U$ I) E, d( b, |  `做家装,就要心中有数!
$ h5 P( i1 s. d" K0 y- Y锦华全案!不看怎选装修?
. T/ J- z1 U0 R6 x! p
( y' _1 y8 Q. ~- f9 |4 v& s【品味生活】优博会——全城互动:(点击了解)
# ?9 i8 z8 M4 ~; Q" b' [, ~4 F
& j- B4 e0 k- W0 o: @. `南通0
您需要登录后才可以回帖 登录 | 注册

本版积分规则

手机版|无图版|站务联系 | 商务合作 | 平台公约

信息产业部备案:苏ICP备05014191号-1 经营性ICP许可证:苏B2-20110445 苏公网安备 32060202000307号 © 2001-2019 0513.org All Right Reserved.

投诉争议 技术支持:第一互联 GMT+8, 2025-12-18 08:42 , Processed in 0.167673 second(s), 16 queries , MemCache On. 站点统计

快速回复 返回顶部 返回列表