濠滨论坛

点击扫描二维码

查看: 15458|回复: 1

#万濠星城#锦华【全案】预告:1个户型8种效果方案等你选!

[复制链接]

该用户从未签到

发表于 2014-12-21 19:39 | 显示全部楼层 |阅读模式 来自:江苏 移动/数据上网公共出口
$ m) C4 `- g. o: L7 j

5 n5 O) g5 C9 [7 s+ |* X
#万濠星城#锦华【全案】预告:1个户型8种效果方案等你选!

0 l8 ~* I  \( L- j6 q
锦华第一批全案研发的万濠星城户型:
1.jpg
(100㎡户型)
2.jpg
(126㎡户型)
3.jpg
(120㎡户型)
4.jpg
(129㎡户型)
5.jpg
(142㎡户型)
什么是全案:
1 Y/ U; V5 l+ H
>>效果前置:
' G/ x9 a' |& b6 A) [1 Y: p( d4 l( i
家居不再靠想象,订单前看效果4 R' ?: I1 o/ Q
重点楼盘及预约户型,1:2的彩色效果图,最终效果心里有数。  
2 h. d$ U$ q6 |: @2 ~; z0 q3 V) `% d  W7 }3 p' Q! S
>>价格前置:8 l1 h4 P" X) X* ]/ `6 W4 z5 G

& T9 W1 t4 T0 t& q7 f$ A投资不再心里没底,订单前明价格
" K( r6 [' b9 L) y0 M7 E: ]# a重点楼盘及预约户型,全案设计+全套报价,价格超了我负责。0 Y4 B8 t- g& i) a; P* s6 |! X
5 M3 F4 e0 n7 f6 ?% i* A
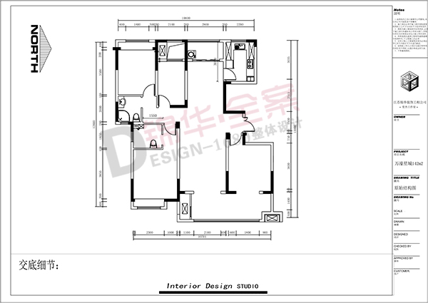
万濠星城全案新鲜出炉,成品预告:2 I& V) k9 u5 p1 V# r( u/ S% D

3 {* n2 {* e' \* e1 q, H以下126㎡户型美式风格全案设计成品展示:
" L3 V& n! s) ~0 }, j; o- Q. R! J>>平面布置图:# c$ j, a& H- `4 m7 b
6.jpg
>>顶面图9 {1 q5 H7 R1 K4 I, |$ |" E& q2 \
7.jpg

. `( S0 u! n* K! q0 z' n>>彩色效果图(其他风格会在锦华店堂看稿会发布):% w9 Q2 V9 ]; X8 ?4 ?# p
8.jpg
0 u- B' |, z$ K) g
9.jpg

' x$ b8 Y) W0 ~$ w! H; X>>概算及决算:1680元/平米-2180元/平米,全面概算,价格超了我负责
% ~4 x" \. |( D" _
2 c4 F3 l, i5 ^9 J4 |该户型看稿预约:0513-68506787
8 [9 X; l# s' M' |% E. o【万濠星城·全案设计】其他户型预约:请点击填写信息,提交!- c# G( w3 S3 W' B
- ?+ X1 m/ R8 Z7 \6 |% Q
再也不用担心最终效果达不到预期。
5 y- h* K5 s1 n再也不用担心价格超到无法接受。
) c! i" v+ {" t2 T做家装,就要心中有数!
1 U$ P4 e6 n9 J' |' p8 P$ f2 c锦华全案!不看怎选装修?0 c/ B' p4 c% Q" x* y1 R2 h

# L$ G4 x( k  f【品味生活】优博会——全城互动:(点击了解)0 K- D% D% \5 k0 C4 O7 @

- r; G% h8 U- k2 b7 i 10.jpg
  |, N* Y2 G4 ~) I4 c# x南通0
匿名
发表于 2016-6-20 16:16 | 显示全部楼层 来自:江苏
提示: 作者被禁止或删除 内容自动屏蔽
回复 支持 反对

使用道具 举报

您需要登录后才可以回帖 登录 | 注册

本版积分规则

手机版|无图版|站务联系 | 商务合作 | 平台公约

信息产业部备案:苏ICP备05014191号-1 经营性ICP许可证:苏B2-20110445 苏公网安备 32060202000307号 © 2001-2019 0513.org All Right Reserved.

投诉争议 技术支持:第一互联 GMT+8, 2025-12-22 23:11 , Processed in 0.641765 second(s), 16 queries , MemCache On. 站点统计

快速回复 返回顶部 返回列表