濠滨论坛

点击扫描二维码

查看: 1650|回复: 0

《最佳入围奖》爱蜂潮V8原创设计师——匡立体

[复制链接]

该用户从未签到

发表于 2014-12-17 14:24 | 显示全部楼层 |阅读模式 来自:江苏 移动/数据上网公共出口
: T; z- w; p& W9 d6 {

6 k- J3 f  P$ X% B2014年,爱蜂潮在家装设计的颁奖台上收货颇丰,处处可见爱蜂潮设计师荣耀的身影。此次为您带来爱蜂潮V8原创设计师—匡立体的获奖作品。3 x; t# I) s9 \8 G1 @
最佳入围奖
! \, E" u* x" V2 {/ `: F# m美式风格—匡立体
0 {2 g2 @& A# ^1 Y! x
1.jpg
$ G! }9 A7 F( L  \8 R3 q0 A 2.jpg 3 a- P$ [$ l- A6 O# J+ A/ d/ B
设计师:匡立体
毕业院校:南通大学
从业年限:8
擅长风格:欧式/新中式/后现代
设计理念:以人为本为中心,创造功能合理、舒适优美、满足人们物质和精神生活需要的室内环境!
方案效果图
效果1.jpg
效果2.jpg
设计主题:以人为本
‍设计说明:本案例是三室两厅的户型,在方案上没有追求花哨的改动和设计。主要在后期装饰和软装上花费心思。美式一般要求简洁明快,同时装修较其它空间要更明快光鲜,通常使用大量的石材和木饰面装饰;美国人喜欢有历史感的东西,这不仅反映在软装摆件上对仿古艺术品的喜爱,同时也反映在装修上对各种仿古墙地砖、石材的偏爱和对各种仿旧工艺的追求上。总体而言,美式田园风格的客厅是宽敞而富有历史气息的。
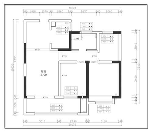
原始平面图
原始平面图.jpg
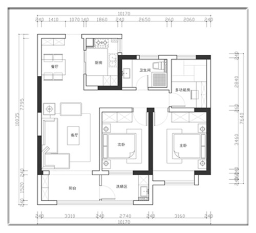
平面布置图
平面布置图.jpg
南通0
您需要登录后才可以回帖 登录 | 注册

本版积分规则

手机版|无图版|站务联系 | 商务合作 | 平台公约

信息产业部备案:苏ICP备05014191号-1 经营性ICP许可证:苏B2-20110445 苏公网安备 32060202000307号 © 2001-2019 0513.org All Right Reserved.

投诉争议 技术支持:第一互联 GMT+8, 2025-12-18 05:44 , Processed in 0.355678 second(s), 16 queries , MemCache On. 站点统计

快速回复 返回顶部 返回列表