濠滨论坛

点击扫描二维码

查看: 48378|回复: 7

主任设计师—【顾荣梅】个人简介及作品

[复制链接]
  • TA的每日心情
    开心
    2016-1-3 10:20
  • 签到天数: 2 天

    [LV.1]初来乍到

    发表于 2014-11-16 10:41 | 显示全部楼层 |阅读模式 来自:江苏
    本帖最后由 南通业之峰 于 2015-6-8 10:43 编辑 2 u, R: D) l+ a! ]
    3 b9 z$ f# f) _/ o5 G0 f
    8555.jpg 南通0
  • TA的每日心情
    开心
    2016-1-3 10:20
  • 签到天数: 2 天

    [LV.1]初来乍到

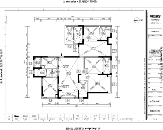
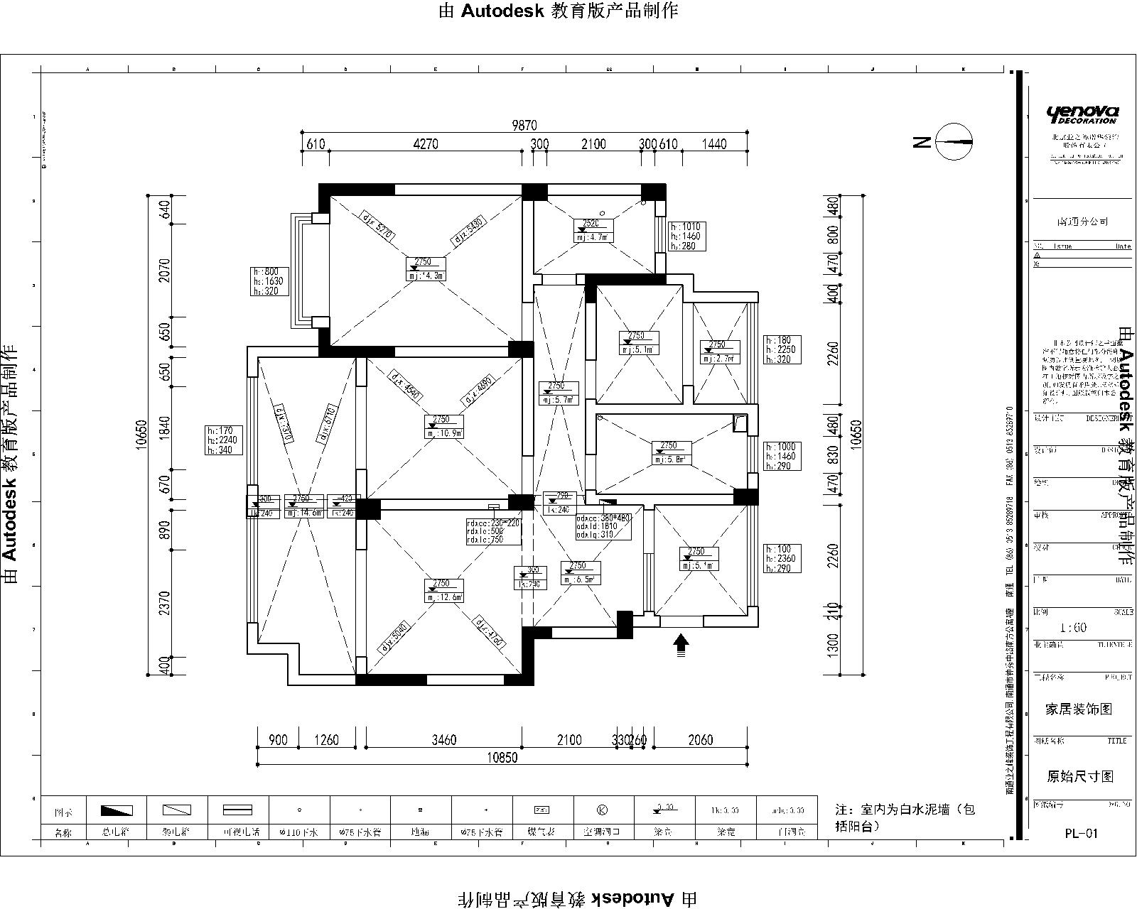
     楼主| 发表于 2015-1-7 09:23 | 显示全部楼层 来自:江苏
    工程地址: 中南世纪花城               
    户型:(32厅)                    
    面积:100                       装修风格:简欧               
      设计说明
    本方案是一套简欧风格装饰居室,通过和客户的沟通,对部分原始结构的改造,使本户型空间格局更加完善,更能满足客户的使用需求。本来是 一个大厅,但是要从功能上要把它分为餐厅和客厅两个功能空间,所以设计师用吊顶划分区域使整体空间从视觉上更有层次感。此方案最大的亮点要数电视背景墙的设计,让整个空间更有灵动感,顶与电视背景墙的造型层次分明,空间感特别强,同时也营造出丰富多彩的生活空间。
    22 副本.jpg
    11 副本.jpg
    花城10#3107-1.jpg
    花城10#3107-1_旋转.jpg
    回复 支持 反对

    使用道具 举报

  • TA的每日心情
    开心
    2016-1-3 10:20
  • 签到天数: 2 天

    [LV.1]初来乍到

     楼主| 发表于 2015-1-7 09:33 | 显示全部楼层 来自:江苏
    工程地址:万濠星城2#803               
    户型:两室两厅                        
    面积:90                       装修风格:现代
       
    设计说明
       本案为现代风格,米黄色墙纸搭配烤漆镜面一下拉伸了整个客厅的意境,米棕色墙纸直线条肌理让视觉显得得体大方,马赛克作为客餐厅空间划分的材质,亦可成为这道长墙上的靓丽背景,整套作品
    体现了设计师对于材质把控和整体色彩搭配的优秀能力!
    2222.png
    111.png
    5255.jpg
    回复 支持 反对

    使用道具 举报

  • TA的每日心情
    开心
    2016-1-3 10:20
  • 签到天数: 2 天

    [LV.1]初来乍到

     楼主| 发表于 2015-1-7 09:39 | 显示全部楼层 来自:江苏
    基本信息
    工程地址:通州御景华庭10#103                  
    户型:别墅                                   
    面积:350                            装修风格:中式                        
    设计说明
       本案为现代中式风格,中式风格中那种浓重的红木色彩在本案中并没有大范围采用,而是将其线条结合浅色的板包阵列在大背景上,让我们在欣赏中式元素时也能感到时尚的现代感同时兼具明亮大气,中式讲究天圆地方,餐厅即体现出这一幕。将简单而又规矩的套框,中式花格元素应用在背景与吊顶上,体现了设计者的独具匠心,在现代材料与古老元素的碰撞中设计出一幅让我们觉得浑然一体又十分安静,稳重,成熟的作品!
    4444.jpg
    5555.png
    111.png
    2222.jpg
    3333.png
    回复 支持 反对

    使用道具 举报

  • TA的每日心情
    开心
    2016-1-3 10:20
  • 签到天数: 2 天

    [LV.1]初来乍到

     楼主| 发表于 2015-8-20 15:11 | 显示全部楼层 来自:江苏
    工程地址:优山美地名邸29#206            
    / Z! b# t& U( B8 p, W9 t! b( O. F
    设计师: 顾荣梅           
    户型:三室两厅                                 
    面积:174                              
    装修风格:欧式                           
    设计说明
       设计师采用石材线条与套框加强了所有背景墙的立体感,巧妙的结合墙砖拼花让每个背景都充满了灵动感觉,在这种凹凸有致的设计中,我们到处都可以欣赏到光与影,点与面的精美结合,皮质欧式的家具,置于这种客厅中刚中带柔,让客厅不会显得生硬,却显得奢华大气,过道,餐厅等地方都采用石材与墙布相结合,这种繁花墙纸恰到好处的对应了主题色,视觉上就可以让业主的生活充满温馨。
    (户型优缺点)
    优点:空间比较大,可以做套间,能改成动静分离
    缺点:原户型电视背景及沙发背景比较小
    使用材料
    主料:地砖、墙砖、地板、门、墙纸、厨房橱柜、整体衣柜等
    辅料:水电材料、黄沙水泥、木工板、石膏板、龙骨、油漆等
    / ]5 c" j4 Q5 B1 E1 Q( _
    优山美地名邸29#206-Model.jpg
    优山美地名邸29#206平面.jpg
    CT.tga.jpg
    IMG_0693_副本.jpg
    微信.jpg
    7 m1 Q: g4 Y4 z: Y* k/ w" F4 K
    4 @3 D: q; K' z* H! \: s& i
    回复 支持 反对

    使用道具 举报

  • TA的每日心情
    开心
    2016-1-3 10:20
  • 签到天数: 2 天

    [LV.1]初来乍到

     楼主| 发表于 2015-9-19 15:43 | 显示全部楼层 来自:江苏
    基本信息
    工程地址:景瑞35#205              
    : ^" b! Q" [; a$ _! J: y
    设计师: 顾荣梅           
    户型:两室两厅                          
    面积:78                          
    装修风格:现代                     
    设计说明
      极简总是让人对于空间有种空,单的感觉,但是本案的设计师将餐厅发散式的做了一个弧形线条,突然一种变化的空间让本就品味格调的极简装饰风格发生了质的变化,整体由马赛克过渡的两幅背景体现了设计师在材料上的跳跃思维,抛光石材与黑色烤漆玻璃反射了整体空间,让业主居于其中也不会觉得过空,过单,生活就是这样赋予音乐般的乐趣。
    (户型优缺点)
    优点:布局合理,采光良好
    缺点:主卧空间太小,厨房太小
    使用材料
    主料:地砖、墙砖、地板、门、墙纸、厨房橱柜、整体衣柜等
    辅料:水电材料、黄沙水泥、木工板、石膏板、龙骨、油漆等

    ) Y* q# ?/ C& f- B" [" s+ `
    景瑞35#原始.jpg
    景瑞35#平面1.jpg
    客厅.jpg
    餐厅.jpg
    微信.jpg
    0 M4 g9 w" E( E: T) X. }2 x
    / E% w3 g" d. q" t* _+ C* [
    回复 支持 反对

    使用道具 举报

  • TA的每日心情
    开心
    2016-1-3 10:20
  • 签到天数: 2 天

    [LV.1]初来乍到

     楼主| 发表于 2015-9-21 16:10 | 显示全部楼层 来自:江苏
    基本信息
    工程地址:御景澜庭7#804              9 A/ k! s9 R4 l6 X6 k% m6 }1 g
    设计师: 顾荣梅           
    户型:两室两厅                             
    面积:105                             
    装修风格:现代                        
    设计说明
       本案中设计师大胆的采用空间直线划分这一特点,将实用与装饰唯美的结合在一起,采用米黄色这种淡色为主色调将业主所需求的和谐,温馨,舒适的生活彰显的淋漓尽致,生态木结合地砖划分了动区和静区,呼应这每个区域的吊顶设计,设计师又巧妙的用造型隐藏了梁,并且使得吊顶整体感觉浑然一体,总之本案是现代风格中实用与唯美装饰的精品。
    (户型优缺点)
    优点:南北通透,采光良好
    缺点:没有餐厅位置,次卧太小
    使用材料
    主料:地砖、墙砖、地板、门、墙纸、厨房橱柜、整体衣柜等
    辅料:水电材料、黄沙水泥、木工板、石膏板、龙骨、油漆等

    : `( e, d/ u: t, l9 H6 p# {, q
    御景澜庭7#804原始.jpg
    御景澜庭7#804平面.jpg
    客厅.jpg
    餐厅.jpg
    微信.jpg
    - g+ z8 P& p6 z$ t, M* V
    ! }# g+ r+ G5 O! G% i0 d
    回复 支持 反对

    使用道具 举报

  • TA的每日心情
    开心
    2016-1-3 10:20
  • 签到天数: 2 天

    [LV.1]初来乍到

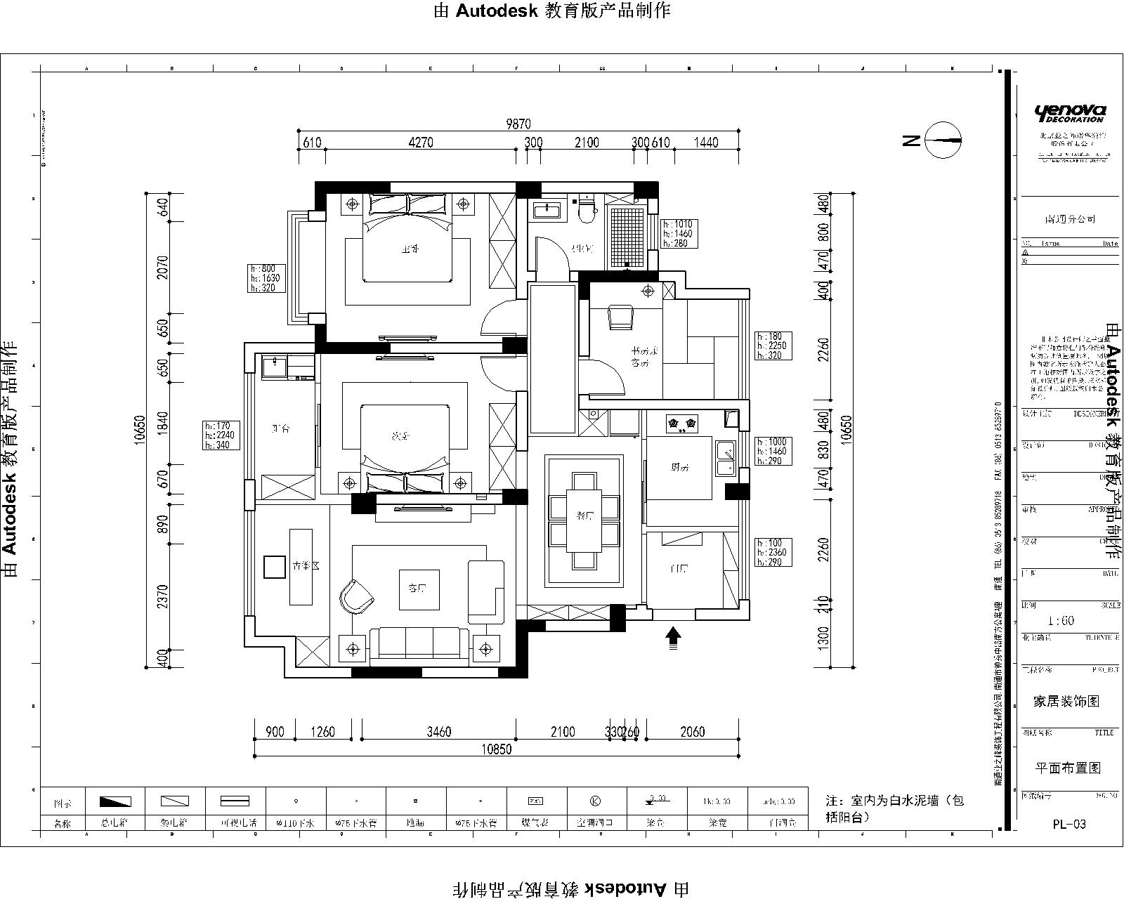
     楼主| 发表于 2015-10-9 14:47 | 显示全部楼层 来自:江苏
    基本信息
    工程地址:景瑞36#502              
    设计师: 顾荣梅           
    户型:两室两厅                           
    面积:78                           
    装修风格:现代                     
    设计说明
      层次分明兼具储藏装饰的电视背景让这个以现代风格设计的客厅变得更有实用意义和空间视觉拉伸,皮质沙发的搭配让本就冷硬的家里增添了一丝温馨,金属的回应加上灯具的装饰让家里的明度得到了很大的发挥。当你步入一个酒店式的公寓,我们就如同陶醉在现代都市的生活节奏中,本案却将现代生活节奏与实用主义充分的结合在了一起,体现了设计师独具匠心的设计能力。
    (户型优缺点)
    优点:布局合理,采光良好
    缺点:主卧空间太小,厨房太小
    使用材料
    主料:地砖、墙砖、地板、门、墙纸、厨房橱柜、整体衣柜等
    辅料:水电材料、黄沙水泥、木工板、石膏板、龙骨、油漆等
    8 H! m5 |6 o  b* C0 c! |7 C0 V# Y
    景瑞36#502原始.jpg
    景瑞36#502平面.jpg
    客厅.jpg
    餐厅.jpg
    微信.jpg
    * _1 b) b/ f3 y2 k2 u

    ; y  [+ t! V, v( d+ A* ~
    1 |, Y/ H, E5 r+ Y+ ]
    回复 支持 反对

    使用道具 举报

    您需要登录后才可以回帖 登录 | 注册

    本版积分规则

    手机版|无图版|站务联系 | 商务合作 | 平台公约

    信息产业部备案:苏ICP备05014191号-1 经营性ICP许可证:苏B2-20110445 苏公网安备 32060202000307号 © 2001-2019 0513.org All Right Reserved.

    投诉争议 技术支持:第一互联 GMT+8, 2025-12-21 17:04 , Processed in 0.188895 second(s), 15 queries , MemCache On. 站点统计

    快速回复 返回顶部 返回列表