濠滨论坛

点击扫描二维码

查看: 58774|回复: 12

首席设计师—【徐晓梅】个人简介及作品

[复制链接]
  • TA的每日心情
    开心
    2016-1-3 10:20
  • 签到天数: 2 天

    [LV.1]初来乍到

    发表于 2014-11-16 10:32 | 显示全部楼层 |阅读模式 来自:江苏
    本帖最后由 南通业之峰 于 2016-3-28 15:41 编辑 . \. ]. S* G# f2 @4 L
    ( ]' A! C; M) B! u' X  M1 T
    徐晓梅.jpg
    / S4 B/ S0 D7 Z3 v: o5 @; K! \/ c2 |+ s. q/ u# N* H' y) B
    姓      名: 徐晓梅                     
    部      门:设计中心一组
    从业时间:7年  
    毕业院校:南京艺术学院
    设计理念:空间是创意与生活连接的场域,而装饰则是运作设计这个构思过程最后呈现的一种媒介,也是赋予空间独特审美的展示权利,空间有限,创意无限。
    工作经历:2008-2011年   南京东日易盛装饰主案设计师
              2011-2013年   广州英泰装饰南通分公司高级设计师
              2013年至今   北京业之峰装饰南通分公司主任设计师
    代表作品:保利香槟国际、军山半岛、优山美地、华强城、中南世纪城、苏建学府雅居、玉兰公寓、万豪华府、德诚翰锦园……
    个人荣誉:中国建筑装饰协会高级住宅室内设计师
    南通0
  • TA的每日心情
    开心
    2016-1-3 10:20
  • 签到天数: 2 天

    [LV.1]初来乍到

     楼主| 发表于 2015-1-7 10:08 | 显示全部楼层 来自:江苏
    主材预算:24万        面积:130
    户型:四室二厅
    装修风格:美式         工程地址 :万濠新城12#703
    设计说明
    美式风格简单淡雅,轻装修重装饰。看似简单却韵味十足,美式家居风格的这些元素也正好迎合了时下的文化资产者对生活方式的需求,即:有文化感、有贵气感,还不能缺乏自在感与情调感。女主人是名教师,恰恰吻合她的内在形象。该户型根据客户的需求和设计师的精心设计,使该户型明朗,通畅,空间得到更加合理的运用和完善。
    万濠新城 原始图.jpg
    万濠新城 平面图.jpg
    411.jpg
    回复 支持 1 反对 0

    使用道具 举报

  • TA的每日心情
    开心
    2016-1-3 10:20
  • 签到天数: 2 天

    [LV.1]初来乍到

     楼主| 发表于 2015-1-7 10:10 | 显示全部楼层 来自:江苏
    基本信息
    主材预算:20万         面积:121
    户型:三室二厅
    装修风格:现代简约      工程地址 :五洲国际1#3004
    设计说明
    任何设计风格的定位,首先就是要满足的是业主的生活需要,即实用,其次才是展现品位及满足审美要求。现代简约风格是化繁为简、型随机能,简单中求艺术,使设计变得简约而不简单。现代化的生活步伐,是人身心具疲,渴望在家找到温馨、自由,不受束缚的感觉,现代简约是不错的选择:简约家居、低碳生活。:家是心灵的港湾。随着人们在旅游中感受到简约的魅力,简约但并不简单的装饰风格。当疲惫的身心对家的依恋越发强烈,人们想要的是轻松、自由的环境,“现代简约风格”自然就成为家居设计的一种风尚。注重大小色块间的组合,地域性的后期配饰融入设计风格之中。简约,不简单走进现代简约风格家居。现代人面临着城市的喧嚣和污染,激烈的竞争压力,还有忙碌的工作和紧张的生活。因而,更加向往清新自然、随意的居室环境。越来越多的都市人开始摒弃繁缛豪华的装修,力求拥有一种自然简约的居室空间。
    五洲国际1#3004室林先生雅居原始图.jpg
    五洲国际1#3004室林先生雅居平面.jpg
    1111.png
    4444.png
    回复 支持 1 反对 0

    使用道具 举报

  • TA的每日心情
    开心
    2016-1-3 10:20
  • 签到天数: 2 天

    [LV.1]初来乍到

     楼主| 发表于 2015-1-7 10:14 | 显示全部楼层 来自:江苏
    主材预算:20万              面积:118
    户型:三室二厅
    装修风格:中式      工程地址 :幸福天地5#2401
    设计说明
    中式风格的室内设计古朴典雅,能反应出强烈的民族文化特征,让人一看就容易理解其文化内涵,是有一种亲和力。所以现在广受人们的喜爱。 但是,在室内设计中采用中式设计时,要注意融入现代元素,一味的照搬古代设计范例,往往得不到好的效果,照搬照抄只会使设计看上去繁琐重叠,老气横秋,了无生趣。 只有既能体现中国传统神韵,又具备现代感的设计,才能是真正的现代中式风格。它不仅永不过时,而且时间愈久愈散发出迷人的东方魅力。
                                                                                      258.png
                                                                                        456.png
                                                                                      45274.png
                                                                                      58264.png
    回复 支持 1 反对 0

    使用道具 举报

  • TA的每日心情
    开心
    2016-1-3 10:20
  • 签到天数: 2 天

    [LV.1]初来乍到

     楼主| 发表于 2015-3-6 09:45 | 显示全部楼层 来自:江苏
    弘阳上城8#2104
    主材预算:15万        半包预算:4.8
    每平米造价:640             面积:75
    设计师:徐晓梅         户型:三室二厅
    装修风格:现代        
    设计说明
    现代风格,简洁,大气。装饰的部位较少,但是在颜色和布局上,在装修材料的选择配搭上需要费很大的劲,再者现代简约风格的装修风格迎合了年轻人的喜爱,都市的忙碌生活,早已经让我们烦腻了,我们更喜欢的一个安静,祥和,看上去明朗宽敞舒适的家,来消除工作的疲惫,忘却都市的喧闹。室内空间开敞、内外通透,在空间平面设计中追求不受承重墙限制的自由。力求创造出时代精神,独具新意的简化装饰,设计简单、通俗、清新,更接近人们生活。室内墙面、地面、以及家具陈设,乃至灯具器皿等均以简洁的造型、纯洁的质地、精细的工艺为其特征。在现代风格中,设计师大量使用铁制构件,将玻璃、瓷砖等新工艺,以及铁艺制品、陶艺制品等综合运用于室内。我们注重室内外沟通,竭力给室内装饰艺术引入新意。
                
    222.png

    & V, f! z+ r; b( H: y
    111.png
    回复 支持 1 反对 0

    使用道具 举报

  • TA的每日心情
    开心
    2016-1-3 10:20
  • 签到天数: 2 天

    [LV.1]初来乍到

     楼主| 发表于 2015-3-6 09:49 | 显示全部楼层 来自:江苏
    中海碧林湾31#2501
    主材预算: 50万         半包预算:5.8
    每平米造价:610        面积:95
    设计师:徐晓梅         户型: 三室二厅
    装修风格:简欧风格         
    设计说明
     简欧式是目前装修流行的一种风格简欧风格从简单到繁杂、从整体到局部,精雕细琢,镶花刻 金都给人一丝不苟的印象。保留了材质、色彩的大 致风格,仍然可以很强烈地感受传统的历史痕迹与浑厚的 文化底蕴,同时又摒弃了过于复杂的肌理和装饰,简化了线条。但综合上而言就是结构上的对称性,造型上多以圆和方为主,装修材料多以精细和贵气为主。
    4444.png
    333.png
    回复 支持 1 反对 0

    使用道具 举报

    匿名
    发表于 2015-3-16 23:35 来自手机WAP | 显示全部楼层 来自:广东
    提示: 作者被禁止或删除 内容自动屏蔽
    回复 支持 反对

    使用道具 举报

  • TA的每日心情
    开心
    2016-1-3 10:20
  • 签到天数: 2 天

    [LV.1]初来乍到

     楼主| 发表于 2015-3-18 09:12 | 显示全部楼层 来自:江苏
    **** 作者被禁止或删除 内容自动屏蔽 ****
    4 U8 j8 b  S7 z2 U+ o3 W0 D/ x
    谢谢您的认可,我们徐工会更加努力的……
    回复 支持 反对

    使用道具 举报

  • TA的每日心情
    开心
    2016-1-3 10:20
  • 签到天数: 2 天

    [LV.1]初来乍到

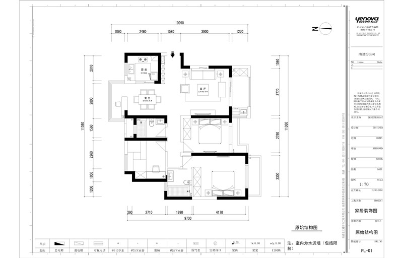
     楼主| 发表于 2015-12-10 14:51 | 显示全部楼层 来自:江苏
    基本信息
    工程地址 :碧桂园78#602      
    面积:80
    设计师:徐晓梅        
    户型:平层
    装修风格:现代      
    设计说明
    本案设计风格为现代风格。对于忙碌的现代人而言,现代简约似乎更受欢迎。简单明亮的舒适生活环境,足以消除人一天的烦恼。该户型面积,原本很小有三个房间,但是每个房间面积有不是很大,会给人感到些许的压抑,而且该房型的储藏空间也不是很多,所以我在设计的时候会考虑如使其空间感更大,让业主感觉到麻雀虽小,但是五脏俱全。把原本的主卧和旁边的另外一个房间打通,做一个套房,另外一个房间做了女儿房,女儿房里做了榻榻米,榻榻米下面可以打开收纳物品,上面铺上垫子可以直接入睡,这样充分利用了空间。
    设计说明
    主料:欧神诺陶瓷,博洛尼橱柜,欧尚墙纸,盼盼木门,浪鲸卫浴等。
    辅料:龙牌石膏板,德国洁水PPR水管,业之峰专用乳胶漆等。
    6 c) w: L: v: F
    原始结构图.jpg
    平面布置图.jpg
    ct.tga_副本.jpg
    kt.tga_副本.jpg
    主卧.tga_副本.jpg
    微信.jpg
    * }: I$ P; D9 {# w/ S& _
    回复 支持 反对

    使用道具 举报

    匿名
    发表于 2016-1-1 11:31 | 显示全部楼层 来自:江苏
    提示: 作者被禁止或删除 内容自动屏蔽
    回复 支持 反对

    使用道具 举报

  • TA的每日心情
    开心
    2016-1-3 10:20
  • 签到天数: 2 天

    [LV.1]初来乍到

     楼主| 发表于 2016-1-2 13:58 | 显示全部楼层 来自:江苏
    **** 作者被禁止或删除 内容自动屏蔽 ****
    % X/ b. o+ F$ b& m
    谢谢您!!: a5 e& g( u  e* d: E2 ?
    回复 支持 反对

    使用道具 举报

  • TA的每日心情
    开心
    2016-1-3 10:20
  • 签到天数: 2 天

    [LV.1]初来乍到

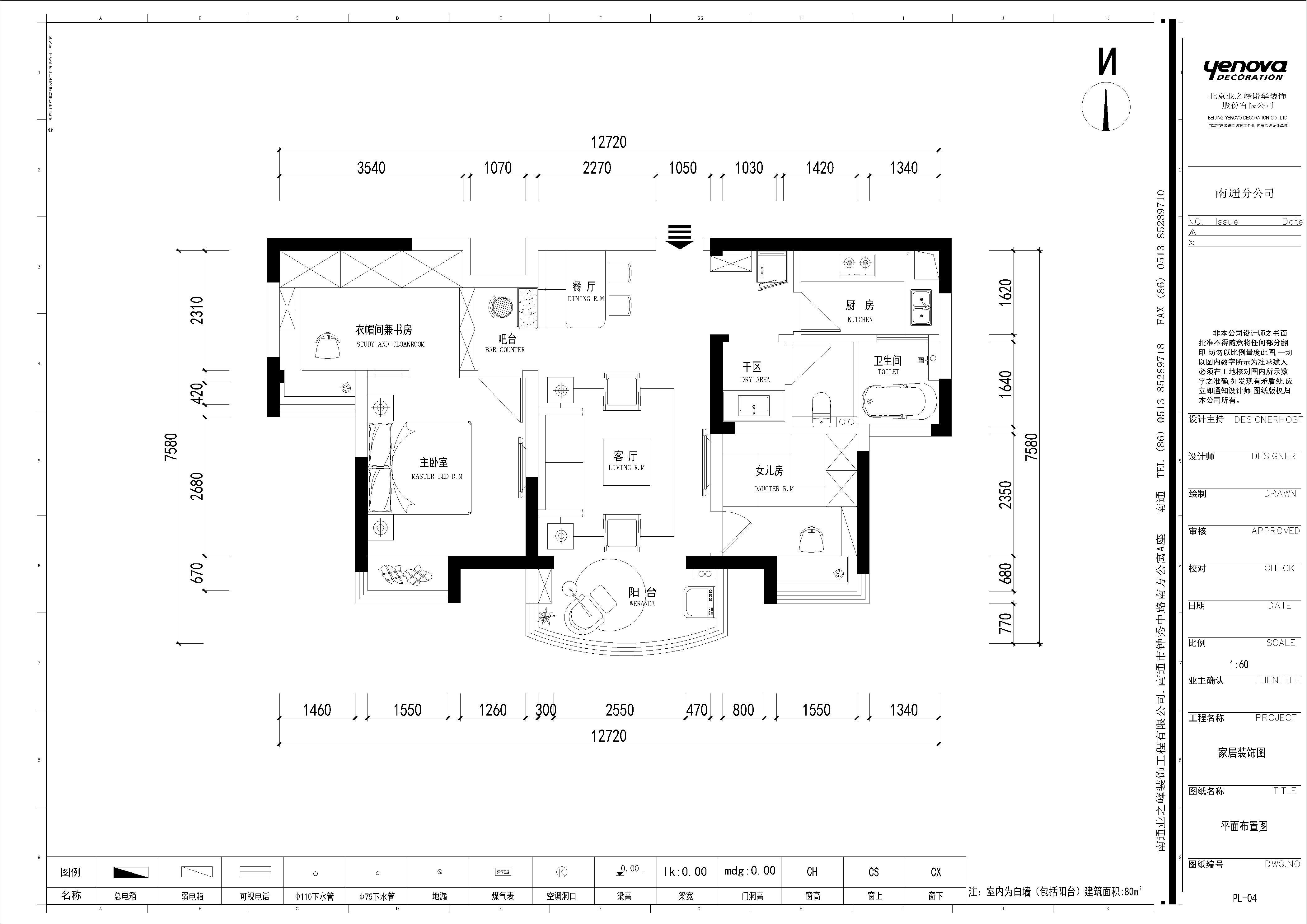
     楼主| 发表于 2016-3-2 16:35 | 显示全部楼层 来自:江苏 联通
    基本信息
    工程地址 :富锋花园18#401
    设计师:徐晓梅
    装修风格:现代简约  
    每平米造价:500        
    面积:100

    + {' s: I7 m! u1 b+ H* a+ s6 }* Z
       
    设计说明       
    本案设计风格为现代风格以简洁明快的设计风格为主调,简洁和实用是现代简约风格的基本特点.简约风格不经注重居室的实用性,而且还体现出了现代社会生活的精致与个性,符合业主的生活品位.简约中求艺术,化繁从简,以宁缺勿滥为精髓,合理的简化居室,从简单舒适中体现生活的精致.
    使用材料介绍
    主料:欧神诺陶瓷,博洛尼橱柜,欧尚墙纸,盼盼木门,浪鲸卫浴等。
    辅料:龙牌石膏板,德国洁水PPR水管,业之峰专用乳胶漆等。
    ( e, o5 c# D% x1 E0 C) C6 g2 l& C
    富锋花园18#401室刘先生雅居-Model_副本.jpg
    富锋花园18#401室刘先生雅居-Model111_副本.jpg
    餐厅.tga_副本.jpg
    客厅.tga_副本.jpg
    微信.jpg
    4 c* ^, ~: O9 c( m- z; N
    回复 支持 反对

    使用道具 举报

  • TA的每日心情
    开心
    2016-1-3 10:20
  • 签到天数: 2 天

    [LV.1]初来乍到

     楼主| 发表于 2016-3-3 15:13 | 显示全部楼层 来自:江苏 联通
    基本信息
    工程地址 :景瑞40#1303
    设计师:徐晓梅  
    面积:100
    户型:平层
    装修风格:简欧         
    设计说明
    本案的设计风格为现代风格,依据主人的个人喜好进行设计,以间接的形式来满足人们对空间环境那种感性的、本能的和理解的需求,设计中强调少即是多,舍弃不必要的装饰元素,用最直白的装饰语言来营造空间的个性和宁静.为业主提供一个提供一个舒适的居家环境.
       
    使用材料介绍
    主料:欧神诺陶瓷,博洛尼橱柜,欧尚墙纸,盼盼木门,浪鲸卫浴等。
    辅料:龙牌石膏板,德国洁水PPR水管,业之峰专用乳胶漆等。
    , f) J' {0 R! E
    景瑞40#1303室司女士雅居-Modelhhh_副本.jpg
    景瑞40#1303室司女士雅居-Model_副本.jpg
    kt.tga_副本.jpg
    ct.tga_副本.jpg
    微信.jpg
    # L) x* L- r$ n+ O5 `" `! ^& U
    回复 支持 反对

    使用道具 举报

    您需要登录后才可以回帖 登录 | 注册

    本版积分规则

    手机版|无图版|站务联系 | 商务合作 | 平台公约

    信息产业部备案:苏ICP备05014191号-1 经营性ICP许可证:苏B2-20110445 苏公网安备 32060202000307号 © 2001-2019 0513.org All Right Reserved.

    投诉争议 技术支持:第一互联 GMT+8, 2025-12-22 05:48 , Processed in 0.271682 second(s), 20 queries , MemCache On. 站点统计

    快速回复 返回顶部 返回列表