濠滨论坛

点击扫描二维码

查看: 52166|回复: 4

主案设计师—【胡小虎】个人简介及作品

[复制链接]
  • TA的每日心情
    开心
    2016-1-3 10:20
  • 签到天数: 2 天

    [LV.1]初来乍到

    发表于 2014-11-16 10:23 | 显示全部楼层 |阅读模式 来自:江苏
    本帖最后由 南通业之峰 于 2014-11-21 10:23 编辑 * B. ^* w& m" L, {: J( i9 c
    , ~/ w- {0 a" V" n
    QQ图片20141116102351.jpg . U& l, p9 X4 h( h) e
    3 ^& d: z- @# S3 C
      
    南通0
  • TA的每日心情
    开心
    2016-1-3 10:20
  • 签到天数: 2 天

    [LV.1]初来乍到

     楼主| 发表于 2015-1-7 10:19 | 显示全部楼层 来自:江苏
    工程地址:皇家花园6#1801                  
    户型:平层    面积: 121         装修风格:  美式        
    设计说明
    整个户型非常好,南北通透,尤其是客厅在中,拥有大阳台,本身不需要多大的改造。本品现代美式风格,在利用马赛克和古典的美式壁灯将背景墙点缀的十分有韵味,配合石材与墙纸也体现了现代家居的美感,浅色的整体外包搭配深色的家具让整个色调和谐统一。
    111.png
    4111.png
    4541.png
    5522.png
    回复 支持 反对

    使用道具 举报

  • TA的每日心情
    开心
    2016-1-3 10:20
  • 签到天数: 2 天

    [LV.1]初来乍到

     楼主| 发表于 2015-1-7 10:21 | 显示全部楼层 来自:江苏
    工程地址:万豪星城9#404                 
      
    面积: 104           装修风格:  现代        
    设计说明
    这套作品现代而又大方,空间整体浅色调让我们视觉上非常开阔,也会让业主在这种局限的空间里不会压抑,必定带动和谐愉快的生活节奏,本作品设计师大胆的采用米棕色为主色调,搭配墙纸,硬包,艺术玻璃,金属质感家具,布艺沙发,石材等,让这个风格的现代感十足,并且温馨
    1111.jpg
    5222.jpg
    4444.jpg
    回复 支持 反对

    使用道具 举报

  • TA的每日心情
    开心
    2016-1-3 10:20
  • 签到天数: 2 天

    [LV.1]初来乍到

     楼主| 发表于 2015-3-9 14:03 | 显示全部楼层 来自:江苏
    工程地址:万豪星城9#806          设计师:  胡晓虎         
    户型:平层    每平米造价:(不包括主材)   
    面积: 82             装修风格:  现代         
    设计说明
    整个空间以黑白灰为基本色彩基调,简单大气的线条切割,背景墙木纹砖以及规矩镜面拼接的运用让我们一眼可以看出设计师的细心雕琢,这种极简主义风格凸显出现代快节奏生活中极其缺乏的慢节奏!块与块之间拼接,并不感觉到生硬,空间由其拉伸的十分透彻,体现出户主严谨有秩的生活习惯,极简主义现代风格是当下很多年轻人和商务人士的首选,因其将空间打造成裁切风格,多数如同现代风格酒店一样极简风格,又不缺乏家庭的温馨,欣赏本案时,每个人的心都会宁静下来,但是又不缺乏时尚,这也是将简单做的不简单的灵巧之处。
    222.png
    111.png
    回复 支持 反对

    使用道具 举报

  • TA的每日心情
    开心
    2016-1-3 10:20
  • 签到天数: 2 天

    [LV.1]初来乍到

     楼主| 发表于 2016-1-6 14:30 | 显示全部楼层 来自:江苏
    : Z# p) l: `& T2 ~* ]/ G
    7 L# d  z' q3 t! t5 a
    基本信息
    工程地址:中南世纪花城31#1701         
    设计师:  胡晓虎         
    户型:平层   
    面积: 120            
    装修风格:  新中式     
    设计说明
        风雅吴地,水墨江南,留下无数文人墨客的行踪,也留下人们印象中的一副浓淡相宜的水墨长卷.,就是我们要在此案中表达的思维与意境.根据业主对淡雅、自然生活的追求,对中国五千年文化的推崇,我们大量运用带有浓郁中式元素的符号语言,去繁存简。借助中国古典建筑的设计手法,在业主的客餐厅运用“借景话室”,力求体现中式的韵味与思想。
    客厅大量采用木纹板材与民族特色的标志符号结合,体现浓浓的中式风味,背景墙配以古青玉更显庄重与优雅。沙发背景的山水画造型让人身临其境,置身与此室,已好像聆听到大自然的呼吸。
    本案所体现的是一种文化,是亲切自然,是朴实丰富,不是传统文化符号的堆砌,不是中式家具文化简单的临摹,这是从心底对传统文化的诉说。
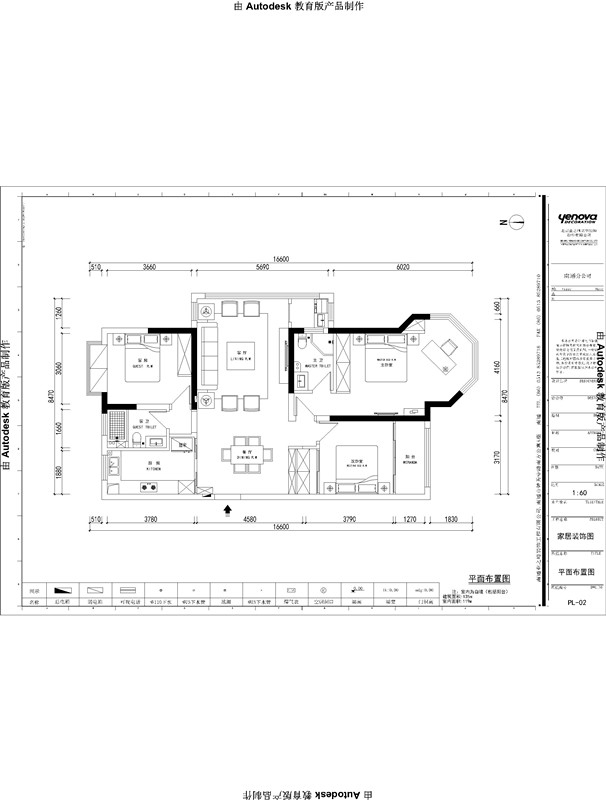
    户型图说明
    (户型优缺点)缺点:厨房区域比较小,次卧储藏间区域利用率不高。         
      优点:各区域划分明确,私密性很好,客餐厅和主卧区域比较大气!采光通风效果良好。
    ; Z4 A0 y5 P5 `0 b/ n) U
    原始结构图_副本.jpg
    平面布置图_副本.jpg
    客厅_副本.jpg
    餐厅1_副本.jpg
    8888.jpg

    ! b4 X1 O( b- e  ?
    回复 支持 反对

    使用道具 举报

    您需要登录后才可以回帖 登录 | 注册

    本版积分规则

    手机版|无图版|站务联系 | 商务合作 | 平台公约

    信息产业部备案:苏ICP备05014191号-1 经营性ICP许可证:苏B2-20110445 苏公网安备 32060202000307号 © 2001-2019 0513.org All Right Reserved.

    投诉争议 技术支持:第一互联 GMT+8, 2025-12-22 05:48 , Processed in 0.200464 second(s), 15 queries , MemCache On. 站点统计

    快速回复 返回顶部 返回列表