0 n$ v M( V: n& @$ R% R6 C' y
8 z3 L! A- p# p# X [万濠星城]江景之旅 ——(二)设计篇
+ C7 [1 h. V( z; s/ h 女业主今年30左右,典型的江南美女,男主人帅气有为,家里有3个既活泼又可爱的孩子。好幸福热闹的一家子哦。 
- D0 h8 T0 h. \ 星城周围交通便捷,特有的美式街区到了夜晚更是让人沉醉。 ( 这座玩具城堡像不像童话里出来的?) 在星城有红星幼儿园,通师一附朝晖校区,启秀中学,有了这三学校,娃儿上学不用愁了 Q( Y2 N+ k. y0 w, I8 z
- B4 y/ r1 s, ^2 C& ^- m" }
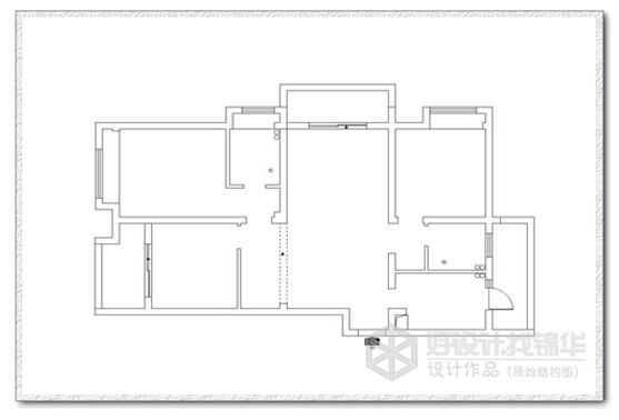
 美女业主说自己爱干净,可是这个家的空间利用,可把让她给愁坏了,不停和我抱怨。 1、北阳台空间空着在那里,可真是浪费了。 2、主卧室太小,只能放下1.5的床,人住在里面都不舒坦,更不要提储藏空间了 3、卫生间里有个小飘窗,占有了不少空间,让卫生间感觉好小。
; w8 O2 Q; u: P; a0 h6 g( ~0 m
5 Z8 A) B1 a5 A0 x$ n! `
( H7 S. u+ {' V3 d+ C
- z9 \% v, e5 P0 I8 S: ?0 ?6 c( t铛铛铛,,,解决方案新鲜出炉啦 1、北阳台利用起来了。放上洗衣机,洗衣的地儿不用愁了,而且也扩大了厨房的操作空间,不显得那么拥挤了。 2、卫生间变大了。把整个飘窗敲掉,可以做成一个淋浴房 3、主卧室空间变大,而且增加了储物空间。借用了一部分卫生间的空间,终于能放下美女业主梦寐以求的大床;看见没,还增加了个柜子,不怕冬天的被子没有地方放了。 4、客厅活动空间更加宽阔。将客厅的阳台打通,将整个客厅向西移动,坐在沙发上就可以看到浩瀚的长江。 5、三个孩子的休息空间不用愁了。大女儿单独睡一个房间,小女儿和小儿子可以睡另一个房间里,上下铺就可以解决问题,再也不担心孩子休息空间过于拥挤了。 & k3 }/ I6 f) S2 k0 R8 y: T! N
* b" b9 ]6 q7 C9 ]3 R
' c; F5 X0 u4 E/ X ]
8 H; d2 M$ u7 ]* P- T! s: F% q3 U* q& C( d1 D, q x0 L
美女业主很开心地告诉小刘:“我真的很开心,空间问题终于解决了,再也不用担心三个孩子玩耍的空间过于拥挤,也不用愁东西摆放的凌乱不堪了“。 + c* e' h- h' G+ P
5 E9 A K% Z# L7 |0 L
/ n/ i1 F, l: Y& e" d$ R
- ~' L, r: R/ r" E4 F |