濠滨论坛

点击扫描二维码

查看: 48028|回复: 5

主任设计师—【施育松】个人简介及作品

[复制链接]
  • TA的每日心情
    开心
    2016-1-3 10:20
  • 签到天数: 2 天

    [LV.1]初来乍到

    发表于 2014-2-22 11:02 | 显示全部楼层 |阅读模式 来自:江苏
    本帖最后由 南通业之峰 于 2016-3-28 16:39 编辑 1 W7 G! R) b6 n4 v, R

    6 }. R; P0 m" i5 G0 g 1施育松 周亮亮 (87).jpg * @+ i: ~$ @' M
    姓        名:施育松) y. @/ A3 q& l; ~! s  b+ }* \& w" f
    设计理念:% B+ S, h% @: R& j8 j, m% G; q2 m
    用心生活,用心设计!3 `5 Q3 w" t9 A& M% Q6 h
    服务过的楼盘:, p1 X( D5 [. ?) I
    苏建花园城、新城小区、绿城玉兰公寓、万濠华府、优山美地、英伦上院、水榭花都、金色城品、金和家园……
    0 [7 m* q  H! e+ V个人荣誉:
    + U& }7 y# B9 c! _2009年湖北优秀设计师
    + m. j2 e/ S% Z% {/ s2010年全国青年室内设计大赛优秀作品( [6 d3 O! B# W: H7 N2 {
    2011年度中国室内设计学会年度最佳室内设计师
    ! s( c/ U8 I- q- m: g$ ?6 \) H$ r, {: ?
    南通0
  • TA的每日心情
    开心
    2016-1-3 10:20
  • 签到天数: 2 天

    [LV.1]初来乍到

     楼主| 发表于 2014-2-26 13:57 | 显示全部楼层 来自:江苏
    3 G# q! c0 ^% h" i. L2 r
    8 V# a/ [3 k8 j, B1 f
    装修地址:翠湖湾6#
    建筑面积:125
    户    型:三室两厅
    风    格:简欧
    设计说明:
        欧洲文化丰富的艺术底蕴,开放,创新的设计思想及其尊贵的姿容,一直以来颇受众人喜爱与追求。简欧风格从简单到繁杂,从整体到局部,精雕细琢,镶花刻金都给人一丝不苟的印象。一方面保留了材质、色彩的大致风格,仍然可以很强烈的感受传统的历史痕迹与浑厚的文化底蕴,同时又摈弃了过于复杂的肌理和装饰,简化了线条。整体营造出大气,豪华的品质及感官体验!
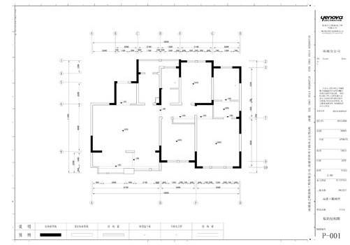
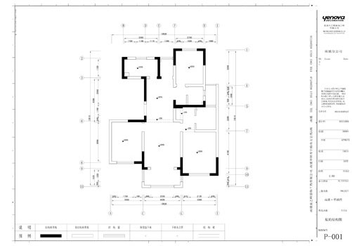
    原始结构图:
    原始结构.jpg
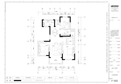
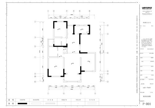
    平面布置图:
    平面布置.jpg
    效果图:
    1客厅.jpg 6 P# p* ?% p: G9 F/ W: f2 a1 ^
    2餐厅.jpg
    9 M9 A) T9 F3 R, i! _0 }$ v3 P$ y
    4 y; g5 ?, |+ G: T
    回复 支持 反对

    使用道具 举报

  • TA的每日心情
    开心
    2016-1-3 10:20
  • 签到天数: 2 天

    [LV.1]初来乍到

     楼主| 发表于 2014-2-26 13:59 | 显示全部楼层 来自:江苏
    : ]1 S3 j+ d# B4 R. K4 `
    0 Q1 r; F- V8 _- ^
    装修地址:翠湖湾6#
    建筑面积:125
    户    型:三室两厅
    风    格:现代简约
    设计说明:
        简约、质朴的设计风格是众多人群所喜爱的,生活在繁杂多变的世界里已是烦扰不休,而简单、自然的生活空间却能让人身心舒畅,感到宁静和安逸。藉着室内空间的结构和重组,便可以满足我们对悠然自得的生活的向往和追求,缔造出一个令人心驰神往的写意空间。
    原始结构图:
    原始结构.jpg
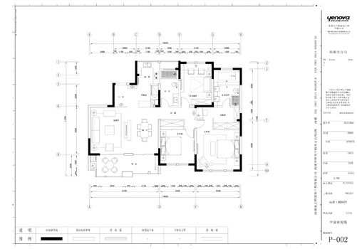
    平面布置图:
    平面布置.jpg
    效果图:
    1客厅.jpg
    2 S& n& B$ e( V3 o8 _# L& x
    2餐厅.jpg
    0 ]1 I6 b& p( m6 {' {# [5 l
    & u2 A6 G9 [; L* W
    回复 支持 反对

    使用道具 举报

  • TA的每日心情
    开心
    2016-1-3 10:20
  • 签到天数: 2 天

    [LV.1]初来乍到

     楼主| 发表于 2014-2-26 14:01 | 显示全部楼层 来自:江苏
    4 s# C( k' M- s6 t! i! J. M1 R! s4 ~1 f) K
    装修地址:橡树湾50#
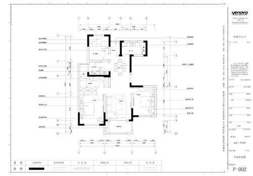
    # q% u/ M/ n+ ?: n: }  L6 Y6 |原始结构图:
    . C/ U* I; O( f. {0 W, y 原始结构.jpg 1 l# e4 K; Z0 ^( m

    & W# c: a9 v. Q5 }) D平面布置图:
    2 O1 r9 [; t/ A2 Y; D 平面布置.jpg ) c) |$ [# g; _- X+ `/ W/ I1 h, H
    8 l( m) q( B2 {+ V7 o: x. I4 h
    效果图:
    8 z% Q' e& L) p, [# s 1客餐厅.jpg ) C: }! v, j+ q" H3 k; R$ p
    5 B. z2 _6 n. }2 N. g
    2客餐厅.jpg
    3 w  Z- J6 ~/ I, h

    7 w2 J, k; o+ i$ ` 3主卧室.jpg
    % z+ m5 m# `% D, L
    ! l/ g4 ^1 D$ a! x4 u3 ?6 t
    回复 支持 反对

    使用道具 举报

  • TA的每日心情
    开心
    2016-1-3 10:20
  • 签到天数: 2 天

    [LV.1]初来乍到

     楼主| 发表于 2015-8-24 14:18 | 显示全部楼层 来自:江苏
    $ ~4 O1 c! C" O, a$ |0 h9 K; N" h
    ; U# l5 j7 T7 {* S
    基本信息
    工程地址:军山半岛42#               8 ?3 s! @# m! z* z" `' b
       师:施育松            
        型:三室两厅两卫一厨           
        积:138                     
    装修风格:日式风格                  
    设计说明
    日式风格追求的是一种休闲、随意的生活意境。空间造型极为简洁,在设计上采用清晰的线条,而且在空间划分中摈弃曲线,具有较强的几何感。
    户型优缺点
    优点:整体房型方正,各功能布局合理,主卧功能充足,双阳台布局合理。
    缺点:厨房面积偏小,次卫功能不全

    ; V; N& k' Q% R" U" o; D
    主要材料
    主材:实木橱柜,全抛釉地砖,实木地板,进口墙纸
    辅材:业之峰专供强弱电线,业之峰专供防水腻子,业之峰专供墙保,第二代“峰之润”金装净味防霉内墙漆

    2 b7 L, S1 ?" ^- M0 T: o. t3 ~, Q
    1原始结构图.jpg
    2平面布置图.jpg
    客厅.jpg
    餐厅.jpg
    微信.jpg
    . m/ W$ ?& l. ~* W* V5 H
    回复 支持 反对

    使用道具 举报

  • TA的每日心情
    开心
    2016-1-3 10:20
  • 签到天数: 2 天

    [LV.1]初来乍到

     楼主| 发表于 2015-8-26 10:10 | 显示全部楼层 来自:江苏
    基本信息
    工程地址:橡树湾45#1004                  - s- ^  T% \" o! b. B% \8 a2 ]
      师:施育松            
        型:三室两厅两卫一厨              
        积:122                     
    装修风格:简欧风格                  
    设计说明
        简欧风格是欧式装修风格的一种,是经过改良的古典欧式主义风格。相对于拥有浓厚欧洲风味的古典欧式风格,简欧更为清新,也更符合中国人内敛的审美观念。
    简欧风格从简单到繁杂,从整体到局部,精雕细琢,给人一丝不苟的印象,一方面保留了材质、色彩的大致风格,仍然可以很强烈的感受传统的历史痕迹与浑厚的文化底蕴,同时又摈弃了过于复杂的肌理和装饰,简化了线条。
    户型优缺点
    优点:整体房型方正,各功能布局合理,主卧功能充足。
    缺点:厨房餐厅空间偏小,餐厅阳台利用率不高
    主要材料
    主材:实木橱柜,全抛釉地砖,实木地板,进口墙纸
    辅材:业之峰专供强弱电线,业之峰专供防水腻子,业之峰专供墙保,第二代“峰之润”金装净味防霉内墙漆
    - R) o5 n! U, a+ Q$ G
    1原始结构图.jpg
    2平面布置图.jpg
    客厅.jpg
    餐厅.jpg
    微信.jpg
    9 W, t9 d9 J1 R
    回复 支持 反对

    使用道具 举报

    您需要登录后才可以回帖 登录 | 注册

    本版积分规则

    手机版|无图版|站务联系 | 商务合作 | 平台公约

    信息产业部备案:苏ICP备05014191号-1 经营性ICP许可证:苏B2-20110445 苏公网安备 32060202000307号 © 2001-2019 0513.org All Right Reserved.

    投诉争议 技术支持:第一互联 GMT+8, 2025-12-20 22:11 , Processed in 0.226896 second(s), 14 queries , MemCache On. 站点统计

    快速回复 返回顶部 返回列表