濠滨论坛

点击扫描二维码

查看: 5768|回复: 1

肖武刚设计师 设计作品

[复制链接]

该用户从未签到

发表于 2013-5-4 09:55 | 显示全部楼层 |阅读模式 来自:江苏
8 s0 j  l' h' h& i  _6 {4 Y3 j  n
& u" e/ g5 k. M+ i6 q" h
设计师简介:
姓    名:肖武刚
所属公司:南通盛典瑞家装饰 尚层国际设计事务所
从业年份:10年
获得奖项:
华润杯(武汉赛区)设计大赛二等奖
威能杯(武汉赛区)室内设计大赛一等奖
金意陶(石家庄赛区)室内设计大赛二等奖
主要作品:
东郊庄园别墅/兆丰嘉园别墅/军山半岛别墅/玉兰公寓复式大宅/新城小区大宅等
5 d% B) A) l, ]0 c+ e4 e8 l
2012.7.19_9.9.37_8988.jpg
舒适生活,写意人生,
——金九华府别墅 设计案例鉴赏
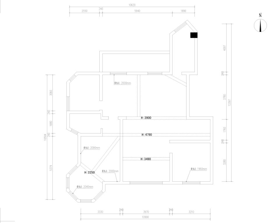
编者按:业主对整体装修要求大气、奢华、浪漫,风格定位为欧式。别墅本身是阁楼结构,原楼梯的位置不合理即浪费了空间也让客厅难以布置。餐厅的位置在进门的空间里让人感觉拥挤。二楼北边的层高只有二点二米,南边空间达到三点二米,结合这些因素,在和业主细致的沟通后,设计师肖武刚对整体空间有了系列的构想。
原始结构2楼.jpg
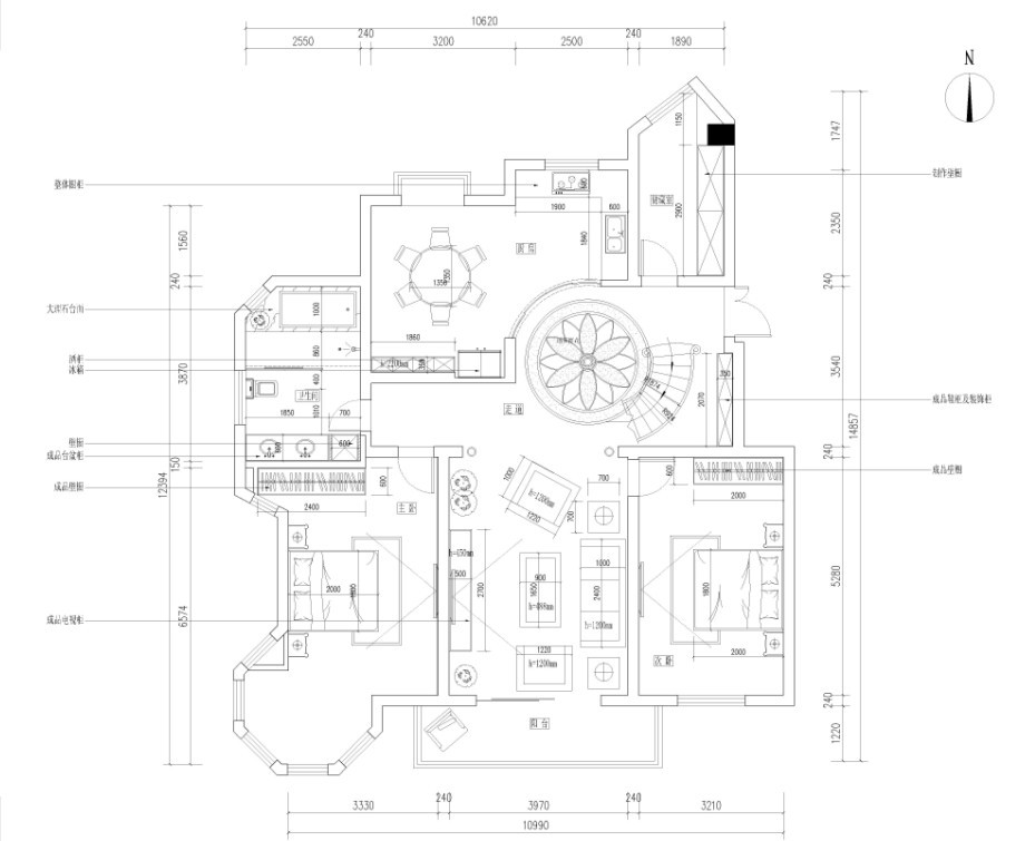
9 r5 C1 P" u% q6 ? 平面方案2楼.jpg
4 x4 i; ^! A" m7 D0 ~. F 餐厅.jpg
3 p* |' d3 c* L3 R+ n! j  奢华欧式风格  大气人生态度
本套作品为华丽欧式,方案结合阁楼的高度对楼梯的重新布局,使一楼空间多了一个朝南的大卧室。弧型楼梯和厨房及餐厅的弧型移门配合地面的拼花使整个门厅空间个性,视觉舒适。作品中大量采用了红木质结构配合浅色调系的搭配,既彰显出整套别墅的雍容华贵,又进一步满足了业主对装修的具体要求。欧式的家具配合中式古典色系完美的诠释了浪漫、奢华的风格定位。
��釈x��X@9 �? 挤。二楼北边的层高只有二点二米,南边空间达到三点二米,结合这些因素,在和业主细致的沟通后,设计师肖武刚对整体空间有了系列的构想。- a5 j; [! Y) b2 u  M$ f9 w
卧室.jpg
9 a. p# U! @. w0 E: Y- P
细致软装配饰  充实生活空间
客厅棕色沙发、木色的墙饰、淡雅的软包沉稳大气,顶部精致的水晶帘及茶色镜子配合中间的水晶吊灯呈现出象牙色的光辉,雍容华贵、精致璀璨。餐厅和厨房流动的线条吊顶配合地面的拼花以及大面的镜子使整体空间豪华气派,营造了一个舒适精致的进餐环境。房间整体以淡雅温馨的色调配上柔和的灯光,蔓延在镜面上的精美雕花彰显出华贵的质感,营造浪漫舒适、美梦成真的的气氛。书房配合三米二的层高,设计师在吊顶设计采用了木梁加木板抽缝式吊顶。华丽的家具,让人耳目一新,却又能从中体会到返璞归真的休闲生活。
餐厅.jpg , T& h$ w, ]' s3 T3 ]+ z' }
" n) S  s9 o& l3 {/ G
绿色健康生活  节能环保宗旨
考虑到节能环保,大部分灯光都采用了LED灯和节能灯管,为了提高生活品质,本套别墅采用了新风系统,中央空调系统,中央吸尘系统,和智能中央音乐系统。难能可贵的是没有对别墅承重结构做任何的改动,增加了施工及日后维护的安全可靠性。随着人们生活水平的提高,对绿色生态的消费理念日益认同,人们越来越重视家居环境的环保健康,板材产品的甲醛释放量已经成为广大消费者极为关注的问题。本案所有材料都采用了E0和E1级,使得本次项目施工及验收的环保标准达到国际上最高要求,有效的防止释放出甲醛等有害气体,成为威胁人类健康的隐形杀手。
/ L' ]9 I' e" \, m
南通0
原始结构1楼.jpg
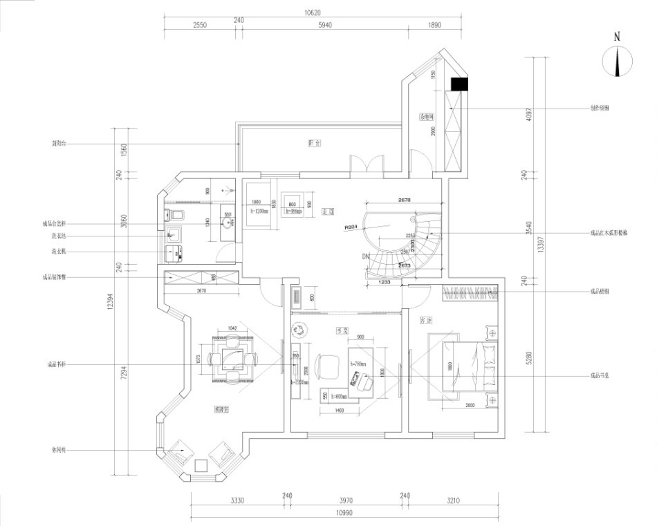
平面方案1楼.jpg

该用户从未签到

发表于 2013-5-4 18:17 | 显示全部楼层 来自:江苏
随着人们生活水平的提高,对绿色生态的消费理念日益认同,人们越来越重视家居环境的环保健康。。。2 S# x6 d! |- U, ^- F, d( j; C9 Q
回复 支持 反对

使用道具 举报

您需要登录后才可以回帖 登录 | 注册

本版积分规则

手机版|无图版|站务联系 | 商务合作 | 平台公约

信息产业部备案:苏ICP备05014191号-1 经营性ICP许可证:苏B2-20110445 苏公网安备 32060202000307号 © 2001-2019 0513.org All Right Reserved.

投诉争议 技术支持:第一互联 GMT+8, 2025-12-20 09:38 , Processed in 0.172992 second(s), 13 queries , MemCache On. 站点统计

快速回复 返回顶部 返回列表