濠滨论坛

点击扫描二维码

查看: 59698|回复: 21

首席设计师—【白金】个人简介及作品

[复制链接]
  • TA的每日心情
    开心
    2016-1-3 10:20
  • 签到天数: 2 天

    [LV.1]初来乍到

    发表于 2013-4-27 11:00 | 显示全部楼层 |阅读模式 来自:江苏
    本帖最后由 南通业之峰 于 2016-3-28 16:35 编辑
    % f7 \& m, A7 s) g2 u" Q$ V1 \) P% [( U* \/ t
    QQ图片20150413102728.jpg
    姓    名:白金
    工作年限:五年
    学    历:本科
    设计理念:功能决定形态,细节决定成败,为您思想空间,让您私享空间。
    服务过的楼盘:天虹花园、城市嘉苑、兆丰家园、高迪晶城、万通城、五山新苑、中港城、全景大厦、星彩动漫娱乐城、简单名店、景瑞望府等
    : I& `/ X& H/ I

    + E- f2 h$ g; E4 F" v7 o/ K

    ' J6 ~% Z, z- o1 n1 B+ P) k8 C. I& G2 }& b) p3 C- ~5 }/ E% ]

    + D- f- S2 Y0 H- d- [7 D
    6 j! r. _4 h7 [8 ?! m# ?2 F9 ]& F6 Y8 Z8 e9 K3 v  w: r( Y
    4 C$ _  F1 k" c2 _4 P; |
    ! [. i, v5 F! {  S- f: K  R8 C
    0 W" b5 |6 p% f8 N
    南通0

    该用户从未签到

    发表于 2013-5-3 08:31 | 显示全部楼层 来自:江苏
              为呵护家里的宝宝和老人别忘了芬兰的芬琳漆哦9 m3 @$ g% R1 G( ]1 E0 ?
    它有国际上最苛刻的环保认证M1认证和国际欧盟顶级环保认证·欧洲生态标志认证
    回复 支持 反对

    使用道具 举报

  • TA的每日心情
    开心
    2016-1-3 10:20
  • 签到天数: 2 天

    [LV.1]初来乍到

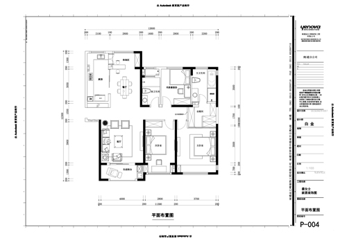
     楼主| 发表于 2013-5-12 09:57 | 显示全部楼层 来自:江苏
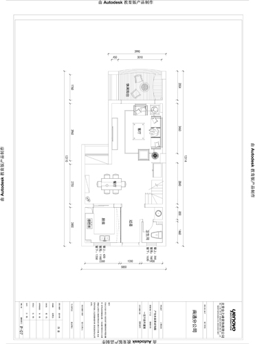
    工程地址: 景瑞望府48#1401
    面    积:140㎡                 
    户    型:三室两厅两卫                        
    装修风格:简欧                     
    设计说明:
        该户型南北通透,户型较为规整,动静区域划分鲜明。在设计时将厨房、餐厅以及北阳台打通,做成一个整体的敞开式厨房以及就餐空间,将北面空间充分利用。在整体色调上以米黄色为主,运用墙纸、石材、软包等材质对比,大气中不失温馨,充分体现了主家的生活品位。
    原始结构图:
    景瑞144罗勇军-Model.jpg
    平面布置图:
    48-1401.jpg
    效果图:
    【1】客厅1.jpg
    【2改2】餐厅.jpg
    【3】卫生间.jpg
    【3】房间.jpg

    % V4 [* V4 b- O0 S2 }0 S
    回复 支持 反对

    使用道具 举报

  • TA的每日心情
    开心
    2016-1-3 10:20
  • 签到天数: 2 天

    [LV.1]初来乍到

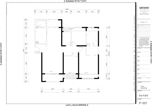
     楼主| 发表于 2013-5-26 14:49 | 显示全部楼层 来自:江苏
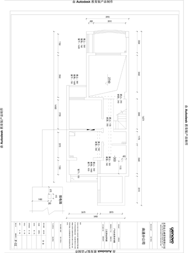
    工程地址: 幸福新居4#703
    面积:119                    
    户型:三室两厅两卫                                             
    装修风格:简欧                     
    户型解说:
        该户型过道区域面积较大,设计时将其利用。客厅朝北,采光一般,改至南边阳光厅,采光良好。原主卫生间为暗卫,没有窗户,通风、采光比较差,不适合做卫生间,设计时将其取消,做储藏间使用。
    设计说明:
        该户型做了较大的调整,结合主家的喜好,将风格定向为简欧风格,把朝南的一个次卧改成客厅,做成阳光厅,原客厅位置做一个多功能区域,设有酒吧区及榻榻米,使空间使用更加灵活。在整体色调上以米黄色为主,材质上石材、镜面、软包、墙纸等结合巧妙,大气中透出活泼与温馨。
    原始结构图:
    原始结构.jpg
    平面布置图:
    平面布局.jpg
    效果图:
    【1】客厅.jpg
    吧台.jpg
    # t1 v  ^5 ?' {: y0 m& L7 X
    回复 支持 反对

    使用道具 举报

  • TA的每日心情
    开心
    2016-1-3 10:20
  • 签到天数: 2 天

    [LV.1]初来乍到

     楼主| 发表于 2013-5-26 14:52 | 显示全部楼层 来自:江苏
    工程地址: 景瑞望府46#703
    面    积:110                  
    户    型:三室两厅两卫                                          
    装修风格:简欧                     
    户型解说:
        该户型南北通透,餐厅较窄,设计时将其扩大。过道处一整面承重墙是设计的重点。两个卫生间都比较小,将其合并成一个大卫生间,功能区齐全。主卧与次卧都借用卫生间位置扩大,使其布局更加合理。
    设计说明:
        该户型较为规整,动静区域划分鲜明。风格定向为简欧风格,在设计时将餐厅和书房那面墙打通,做一个敞开式书房,使餐厅面积扩大,书房用玻璃移门隔断,使整个空间更加通透。沙发背景的镜面运用使空间得到拉伸,使空间达到成倍增大的效果。在整体色调上以米黄色为主,体现出温馨的家庭氛围。
    原始户型图:
    原始结构.jpg
    平面布置图:
    平面布置.jpg
    效果图:
    【2】客厅.jpg
    【1】餐厅.jpg

    # N& K" s. `) B7 B& ^1 ^# @& K, V
    回复 支持 反对

    使用道具 举报

  • TA的每日心情
    开心
    2016-1-3 10:20
  • 签到天数: 2 天

    [LV.1]初来乍到

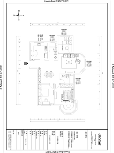
     楼主| 发表于 2013-6-17 15:45 | 显示全部楼层 来自:江苏
    工程地址: 景瑞望府48#1703
    面    积:110                    
    户    型:三室两厅两卫                                            
    装修风格:简欧                     
    户型解说:
        该户型南北通透,户型较为规整,动静区域划分鲜明。厨房北面镂空区域现浇后,包入厨房内,使厨房空间扩大。在设计时将餐厅以及北阳台打通,做成一个整体的敞开式就餐空间,将北面空间充分利用。小孩房将原设备平台利用作为学习区,主卧室衣帽间做适当调整,提高空间利用率。
    设计说明:
       该设计风格定位为简欧风格,整体用清新的白色基调,加以米黄色墙纸与灯光的点缀,使得空间更具温馨感,电视背景墙适当的运用石材和镜子,这两种都属于比较亮而通透的材质,跟餐厅背景的镜面呼应,提升空间的灵动感,沙发背景运用墙纸、板包、软包等材质对比,造型协调,并且与沙发等软装的融合更加和谐,大气中不失温馨,充分体现了主家的生活品位。
    原始户型图:
    景瑞48-1703原始结构.jpg
    平面布置图:
    景瑞48-1703平面布置.jpg
    效果图:
    【2】客厅最终.jpg
    【1】餐厅最终.jpg
    房间.jpg
    9 ~3 F+ I& }" h) z3 r- v( ^
    回复 支持 反对

    使用道具 举报

  • TA的每日心情
    开心
    2016-1-3 10:20
  • 签到天数: 2 天

    [LV.1]初来乍到

     楼主| 发表于 2013-8-16 14:38 | 显示全部楼层 来自:江苏
    工程地址:保利香槟国际1#1708
    面    积:129                 
    户    型:三室两厅两卫                                          
    装修风格:欧式新古典                     
    户型分析:
        该户型结构较为规整,动静区域划分明确,进门处将厨房那面墙打掉,做开敞式厨房,使整体空间更大气,客厅、餐厅、厨房、北阳台四个区域全部畅通,在通风、采光方面没有任何死角,更适宜家居生活。
    设计说明:
       该设计风格定位为欧式新古典风格。运用了砖、石材、软包、板包、镜面、马赛克等材质对比,既突显了欧式风格的华丽,又别具现代时尚感。餐厅镜面的运用使空间更敞亮,整体色调以浅色为主,加入适当的黑白对比,使空间更加明快,经典,华丽而不浮夸。
    原始结构图:
    保利原始.jpg
    平面布置图:
    保利平面.jpg
    效果图:
    1111gai.jpg
    22.jpg

    ' m' C% l2 E: W& G  Z0 y+ n% g
    回复 支持 反对

    使用道具 举报

  • TA的每日心情
    开心
    2016-1-3 10:20
  • 签到天数: 2 天

    [LV.1]初来乍到

     楼主| 发表于 2013-8-16 14:44 | 显示全部楼层 来自:江苏
    工程地址:城市嘉苑57#102
    面    积:185㎡                 
    户    型:复式                                                           
    装修风格:现代美式                     
    户型解说:
        该户型结构较为规整,动静区域划分明确,楼梯朝向做了适当的改动,厨房的门改到餐厅的位置,使进出更方便,而且进门处多出了鞋柜和储物柜的位置,使空间利用更加合理。二层过道现浇弧形平台,利用挑空处借出休闲区。
    设计说明:
        该设计风格定位为现代美式风格。以简约、舒适以及实用性为主,没有任何浮夸的造型,大面积运用墙纸点缀,适当加以实木线条收边,以衬托主家的实木家具。整体空间大气,简约而不简单,充分体现出主家崇尚自由的生活态度以及品位。
    平面布置图:
    城市嘉苑57102-1.jpg
    城市嘉苑57102-2.jpg
    效果图:
    城市嘉苑1副本.jpg
    城市嘉苑2副本.jpg

    * p. U2 j5 |+ G/ T( D- u0 s, ?
    回复 支持 反对

    使用道具 举报

  • TA的每日心情
    开心
    2016-1-3 10:20
  • 签到天数: 2 天

    [LV.1]初来乍到

     楼主| 发表于 2013-8-16 14:47 | 显示全部楼层 来自:江苏
    工程地址:银州皇家花园2#202
    面    积:92           
    户    型:两室两厅一卫                                          
    装修风格:新中式                     
    户型解说:
        该户型三室朝南,为常规两梯三户的中间户型。进门处走廊较长,采光较弱,设计中利用门洞和灯光进行弥补,使其更通透。厨房外销阳台包入厨房里,使厨房面积增大,可放置一张小餐桌,利用率更高。
    设计说明:
       该设计风格定位为新中式风格,整体色调清爽明快,设计以实用性出发注重使用功能与美观相结合,整体造型协调,门、地板与家具等软装色调一致,融合更加和谐,大气中不失温馨,充分体现了主家的生活品位。
    原始结构图:
    银州皇家花园-0.jpg
    平面布置图:
    银州皇家花园-1.jpg
    效果图:
    客厅.jpg
    全景.jpg

    * g2 [7 w2 F* n' ]9 ~2 ^  J
    回复 支持 反对

    使用道具 举报

  • TA的每日心情
    开心
    2016-1-3 10:20
  • 签到天数: 2 天

    [LV.1]初来乍到

     楼主| 发表于 2013-10-14 14:22 | 显示全部楼层 来自:江苏
    工程地址:中南世纪花城17#907
    面    积:119㎡               
    户    型:三室两厅两卫                                               
    装修风格:现代简约                     
    户型分析:
        该户型为三室两厅两卫,主卧室有独特的八角阳台,户型较为规整,动静区域明确,南北通透。
    设计说明:
        该设计风格定位为现代简约风格。客厅电视背景墙选用大面积的地砖上墙,仿天然石材纹理,高端大气,沙发背景用硬包做衬托,软硬结合。餐厅生态壁纸和休闲阳台生态木的运用凸显了悠然、闲适的气氛,让家庭更有氛围,也体现了主家豁达而浪漫的情调。
    原始结构图:
    花城1.jpg
    5 y+ B# j6 n* z% F* S5 S6 O
    平面布置图:
    花城2.jpg ! D2 N3 U2 G. ~4 X) e
    效果图:
    【1】客厅副本.jpg
    2 h0 e" E: c! C& \* Y5 l0 |% e
    【2】客厅副本.jpg
    # c8 D5 m: V& T% q' ^. o. |2 K
    【4】房间副本.jpg
    " }! [! b, Y- K" T& |8 E" h8 y' ?6 u
    【5】房间副本.jpg 1 e# l7 u8 k2 a8 V
    & @$ x$ M- ~: U% N3 X
    回复 支持 反对

    使用道具 举报

  • TA的每日心情
    开心
    2016-1-3 10:20
  • 签到天数: 2 天

    [LV.1]初来乍到

     楼主| 发表于 2013-10-14 14:24 | 显示全部楼层 来自:江苏
    工程地址:中港翡翠城14#2201
    面    积:115㎡                     
    户    型:三室两厅两卫                                               
    装修风格:现代简约                    
    户型分析:
        该户型为三室两厅两卫,由于主家是四代同堂,根据要求把北边储物间做为书房兼儿童房使用。四个房间相对紧凑,两个卫生间面积较小,设计时注重使用功能。
    设计说明:
        该设计风格定位为现代简约风格。运用了砖、硬包、墙纸、花格、不锈钢、马赛克等材质对比,整体简洁而雅致,又别具现代时尚感。主卧室隐形门的运用使客厅沙发背景更加整体,家居色调以浅色为主,加入适当的黑白对比,使空间更加明快,暖色调灯光营造出温馨的家庭氛围。
    原始结构图:
    1.jpg , ^6 C" G8 f+ V
    平面布置图:
    2.jpg " N; W( I& x. L; Z
    效果图:
    客厅副本.jpg
    ' ^8 V+ g3 M- X
    餐厅副本.jpg
    2 j$ k, Q2 P; S# {
    主卧副本.jpg
    5 r5 G  I9 t. `+ C. j, u7 `, l
    书房副本.jpg
    ; j! e6 L& H& y- e2 k  o$ @" V% k- \

    : V6 q; K) s; O8 I7 |
    回复 支持 反对

    使用道具 举报

  • TA的每日心情
    开心
    2016-1-3 10:20
  • 签到天数: 2 天

    [LV.1]初来乍到

     楼主| 发表于 2013-11-20 14:16 | 显示全部楼层 来自:江苏
    工程地址:中南世纪花城10#1801
    * r% K3 Q( P0 N6 T, s* N原始结构图:; [& y2 |; r4 F9 M
    花城10#1801吴先生-1.jpg
    1 q( W2 {8 @0 }8 n+ B

    8 J" i$ Y9 x/ e+ S) l5 C平面布置图:- @+ p* z; |' S$ W) @0 ~! z; ], ^, Q
    花城10#1801吴先生-2.jpg * G* v" S4 Y. M  N  J

    ! ]2 B1 K; t; v2 O% `, t' d效果图:' E" x$ O1 u1 Z4 q9 X5 K
    【1】客厅副本.jpg
    . v: ]: b' G, P0 ]2 P. h
    " y# {5 T) P9 }$ H  a1 a+ m. X$ G
    【2】餐厅副本.jpg 9 H! f" q. T2 [# S# Q4 h
    * k% Y% A& o. H) Z- x
    【3】房间副本.jpg ! c) {& W9 q+ @: f

    ; T  q# S. Q7 ?5 q4 q  e
    回复 支持 反对

    使用道具 举报

  • TA的每日心情
    开心
    2016-1-3 10:20
  • 签到天数: 2 天

    [LV.1]初来乍到

     楼主| 发表于 2013-11-20 14:25 | 显示全部楼层 来自:江苏
    工程地址:绿墅湾2#1704
    9 S0 E2 z1 h# \2 I) ~* K5 a原始结构图:
    1 H( Y7 n* c3 U6 a 绿树湾-1.jpg 8 C0 n+ U: ~  ^& N; k; P
    # O: u  j. B0 V8 N3 r" x6 c
    绿树湾-2.jpg
    5 R6 ^9 y8 U: J0 x$ `2 u
    " N3 W! G0 E3 ^$ ]& y5 B
    平面布置图:% \, J# ~- m7 b. }
    绿树湾-3.jpg
    3 y- o; Q& c$ w5 }
    8 A1 C8 n: v3 J0 M/ m9 ?0 v" f. Z1 h5 ^
    绿树湾-4.jpg
    * g7 d  h$ T3 u. U6 f/ H2 s
      ]0 e" M$ Z, e" [) m0 t+ l- ]% l
    效果图:7 Q: N1 b" l/ y2 C
    客厅副本.jpg / p8 u' B1 l9 r- `/ |. j0 R
    2 j( t5 w( g) R8 m6 q1 X
    客餐厅副本.jpg
    " y3 w$ N8 P( q. j) \6 E% j
    : Y$ x. f) J4 V0 t8 p/ `
    书房1副本.jpg
    2 i- i" j% C- Q, i9 r
    ! b3 ?# }- R3 P7 Z7 {
    回复 支持 反对

    使用道具 举报

  • TA的每日心情
    开心
    2016-1-3 10:20
  • 签到天数: 2 天

    [LV.1]初来乍到

     楼主| 发表于 2013-12-16 09:38 | 显示全部楼层 来自:江苏
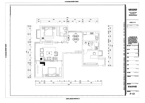
    工程地址:景瑞望府48#1901
    面    积:130㎡                  
    户    型:三室两厅两卫                                       
    装修风格:简欧                     
    户型分析:
       该户型南北通透,户型较为规整,动静区域划分鲜明。厨房北面镂空区域现浇后,包入厨房内,使厨房空间扩大。在设计时将餐厅以及北阳台打通,做成一个整体的敞开式就餐空间,将北面空间充分利用。小孩房将原设备平台利用作为学习区,主卧室衣帽间做适当调整,提高空间利用率。
    设计说明:
       该设计风格定位为简欧风格,整体用清新的米色基调,加以灯光的点缀,使得空间具温馨感,切实符合主人的要求。电视背景一墙纸装饰,简单大方又不失品味。餐厅背景加以原石上墙,提升空间的灵动感,大气中不失温馨,充分体现了主家的生活品位。
    原始结构图:
    原始结构图.jpg
    9 ]) |' R2 b' `  g. D5 O
    平面布置图:
    平面布置.jpg 7 g5 W7 t4 t5 z8 F% I. v/ G' B
    效果图:
    客厅副本.jpg
    2 G, m7 S- e+ b  O- G1 w* ?! x; Z
    过道客厅副本.jpg ! u4 k' \: G" r' q+ |+ q
    餐厅副本.jpg 3 p/ _, P+ i* Q; c

    $ W" }2 \6 L4 d# `; h/ @
    回复 支持 反对

    使用道具 举报

  • TA的每日心情
    开心
    2016-1-3 10:20
  • 签到天数: 2 天

    [LV.1]初来乍到

     楼主| 发表于 2013-12-16 09:44 | 显示全部楼层 来自:江苏
    工程地址:桐树湾2#1302
    面    积:118㎡                     
    户    型:二室两厅两卫                                    
    装修风格:简欧                    
    户型分析:
       该户型南北通透,户型较为规整,动静区域划分鲜明。厨房北面镂空区域现浇后,包入厨房内,使厨房空间扩大。在设计时将餐厅以及北阳台打通,做成一个整体的敞开式就餐空间,将北面空间充分利用。小孩房将原设备平台利用作为学习区。
    设计说明:
       该设计风格定位为简欧风格,整体色调大气,加以灯光的点缀,使得空间更具温馨感,切实符合主人的要求。电视背景一配以板包装饰,加以微晶石,使整体的品味提高了一个层次。餐厅的背景配上罗马柱更添意味。整体的设计大气中不失温馨,充分体现了主家的生活品位。
    原始结构图:
    原始图.jpg 0 F+ a; g) l- B  Q( ]( A2 e* o) B
    平面布置图:
    平面布置图.jpg
    3 H/ Z9 l+ `9 j/ V2 x1 ^
    效果图:
    田园客厅gai副本.jpg * X! _8 C6 I) p6 u0 U
    田园餐厅gai副本.jpg
    # q  a6 f9 `5 T# ^9 G9 y  p
    书房.jpg 8 ~& E- d5 J7 d2 o% c
    卧室副本.jpg
    1 N- D1 K  j5 K3 n9 b9 ^" ]

    . P0 M% m! [$ ?. z( E
    回复 支持 反对

    使用道具 举报

  • TA的每日心情
    开心
    2016-1-3 10:20
  • 签到天数: 2 天

    [LV.1]初来乍到

     楼主| 发表于 2015-8-1 15:22 | 显示全部楼层 来自:江苏
    基本信息
    工程地址: 景瑞望府43-1503               
    4 V5 O+ Y0 c) ]# Z6 A, l: ?3 H- `
    设计师: 白金
    户型:三室                           
    面积: 106                        
    装修风格: 现代                    
    设计说明
    业主为一对中年夫妇,因为要和老人一起住,所以要求三房都保留,设计师为了能有个书房的位置,将厨房后的空地包到次卧室里作为书房来用。业主喜欢现代简约风格,但也喜欢欧式的线条,设计师根据业主要求,为其设计的是欧式风格配现代家具。客餐厅各自独立,使家里布局分布很明显。整个家里除了客餐厅背景运用了玉石、镜子、木线条之外,全部为墙纸,使整个家里温馨而舒适。

    7 K  h( B& \+ L: B) u
    户型图说明" J0 E& d! q! T# c2 |* X
    (户型优缺点)
    缺点:入户门对着墙角。            
      优点:户型较规整。
    咨询热线:15896261588 0513-80201598 QQ:979020611
    原始结构图.jpg
    平面布置图.jpg
    KT副本.jpg
    8 E" M3 X# w# r9 Q* h! F
    ) H( z/ b9 m5 _
    CT.tga_副本.jpg
    / `! P* q. N0 l2 p

    , E9 `7 t" B$ N2 v
    , h8 a6 g& J8 k  [' \  X6 R7 e
    回复 支持 反对

    使用道具 举报

  • TA的每日心情
    开心
    2016-1-3 10:20
  • 签到天数: 2 天

    [LV.1]初来乍到

     楼主| 发表于 2015-8-1 15:27 | 显示全部楼层 来自:江苏
    基本信息
    工程地址: 苏建阳光新城22#302              
    0 b! I( s4 g' o
    设计师: 白金
    户型:三室                           
    面积: 116                        
    装修风格: 现代                    
    设计说明
    业主为一对年轻夫妇,因为经常会有朋友来家里玩,所以北面的房间做敞开式榻榻米兼书房,业主喜欢现代简约风格,但也希望家里看着通畅华丽,所以设计师根据业主要求,为其客厅的电视背景与沙发背景都运用了石材、板包,其它墙面则是浅咖色墙纸,使整个家里温馨而舒适。
    户型图说明
    (户型优缺点)
    缺点:南北不通透。            
      优点:户型较规整。
    ! g7 O: h& Y" i6 c9 q2 Y
    咨询热线:15896261588 0513-80201598 QQ:979020611
    原始结构图.jpg
    平原布置图.jpg
    客厅.tga.jpg
    餐厅.tga_副本.jpg
    0 r* l) _5 l3 K# e

    5 U$ u. D3 k7 k4 l1 Q! Z% I
    回复 支持 反对

    使用道具 举报

  • TA的每日心情
    开心
    2016-1-3 10:20
  • 签到天数: 2 天

    [LV.1]初来乍到

     楼主| 发表于 2015-9-4 09:38 | 显示全部楼层 来自:江苏
    $ {( k0 O( W' d9 t. I: u* k( s2 @
    + H1 Q$ u# o& \/ W3 k9 {
    基本信息
    工程地址: 中南世纪花城22#1001            
    + o; K5 P3 @0 [. J' E8 }
    设计师: 白金
    户型:三室                        
    面积: 122                        
    装修风格: 欧式                    
    设计说明
    这套房子的主人为一对中年夫妇带着刚结婚的儿子与儿媳,男主人是做生意的老板,比较喜欢清爽一点的欧式,为了营造美式氛围,设计师为其电视背景选用比较透亮的微晶石,家具选用乳白色的欧式家具,整体给人一种清爽舒适的感觉,也使整个家里温馨自然。
    户型图说明
    (户型优缺点)
    缺点:过道对着窗户,没有阳台。            
      优点:户型规整,南北通透。
      A/ a- c+ r( U+ N- K8 y  q0 V
    原始结构图.jpg
    平面布置图.jpg
    客厅.jpg
    餐厅.jpg
    微信.jpg
    # I" A, \+ v/ T4 n8 _& V
    . T( {* `1 P* O3 F, \# ^

    & X; Y4 j7 c' }- n6 Y
    . ~0 _, Z  [) i' X
    回复 支持 反对

    使用道具 举报

  • TA的每日心情
    开心
    2016-1-3 10:20
  • 签到天数: 2 天

    [LV.1]初来乍到

     楼主| 发表于 2015-9-6 16:58 | 显示全部楼层 来自:江苏
    基本信息
    工程地址: 骏和棕榈湾8-1008              
    7 `  I6 Q- S: l/ W5 J. D1 F
    设计师: 白金
    户型:三室                        
    面积: 104                        
    装修风格: 美式                    
    设计说明
    这套房子的主人为一对年轻夫妇,他们一直以来都对美式风格的家具比较喜爱,所以家里也打算以美式的感觉来装饰。为了营造美式氛围,设计师在客餐厅的的顶上都运用了假梁做以装饰,再加上客厅背景的小砖、生态木,及餐厅木质卡座的整体结合,美式风味十足,给人一种轻松舒适的感觉,也使整个家里温馨自然。
    户型图说明
    (户型优缺点)
    缺点:餐厅较窄。            
      优点:户型规整,南北通透。

    8 |& e$ [; A8 x& _4 A* [
    原始结构图.jpg
    平面布置图.jpg
    客厅.jpg
    餐厅.jpg
    微信.jpg
    9 z' J; ^. X1 {

    ; U8 ?; v' Z& [+ I. S
    回复 支持 反对

    使用道具 举报

  • TA的每日心情
    开心
    2016-1-3 10:20
  • 签到天数: 2 天

    [LV.1]初来乍到

     楼主| 发表于 2015-9-7 16:25 | 显示全部楼层 来自:江苏
    - g0 T; v- }5 J
    7 E7 Q) A$ g4 x- l$ |9 @- n, v
    基本信息
    工程地址: 万濠星城18-1202         9 q$ u& I1 q; S3 i1 T1 u$ |
    设计师: 白金
    户型:三室                          
    面积: 122                        
    装修风格: 欧式                    
    设计说明
    这套房子的主人为一对中年夫妇带着刚结婚的儿子与儿媳,比较喜欢清爽一点的欧式,为了营造美式氛围,设计师为其电视背景选用比较透亮的微晶石,家具选用乳白色的欧式家具,由于餐厅比较窄,所以设计师采用了镜子作为背景,使餐厅在视觉上变得宽敞,其余部分以墙纸为主,也使整个家里温馨自然。
    户型图说明
    (户型优缺点)
    缺点:过道对着窗户,没有阳台。            
      优点:户型规整,南北通透。
    7 ~# M2 o3 ^2 r3 L+ n
    原始结构图.jpg
    平面布置图.jpg
    餐厅.jpg
    客厅.jpg
    微信.jpg
    , N; S% U" [, ?9 m+ i( t4 ~) R

    6 R' O/ W3 e* o  q& Y  n
    回复 支持 反对

    使用道具 举报

  • TA的每日心情
    开心
    2016-1-3 10:20
  • 签到天数: 2 天

    [LV.1]初来乍到

     楼主| 发表于 2015-10-10 16:30 | 显示全部楼层 来自:江苏
    基本信息
    工程地址:金水湾12#201      
    设计师:白金           
    户型:三室两厅                  
    面积:150㎡                 
    装修风格:中式           
    设计说明       
    本案的业主为一对中年夫妇,因为喜欢红木家具,所以设计师为其选择的是中式风格。中式风格的沉稳、务实也比较符合这对夫妇的气质。
    设计师的重点主要在这个下沉式客厅的设计。运用了横向的护栏来区分客餐厅空间,给人一种另一空间的感觉.。业主也对此很喜欢。设计师在多处运用木线条来营造中式氛围,给人一种舒适、宽敞的感觉。
    户型图解说
    (户型优缺点)
    优点:格局方正,布局合理
    缺点:餐厅在卫生间门口% x: Y  q& W, _- r6 W2 {6 {7 \4 E
    使用材料介绍
    主料:地砖、墙纸、大理石、地板等。
    辅料:龙牌石膏板,兔宝宝木工板,峰之润净味墙面漆,进口奥松板,业之峰专用电线管,上海洁水水管,金星轻钢龙骨等。
    # K$ E6 w# C6 D$ `8 D. z
    原始结构图.jpg
    平面布置图.jpg
    客厅.jpg
    餐厅.jpg
    微信.jpg

    . C3 a8 d- H5 T1 }
    回复 支持 反对

    使用道具 举报

  • TA的每日心情
    开心
    2016-1-3 10:20
  • 签到天数: 2 天

    [LV.1]初来乍到

     楼主| 发表于 2015-10-11 14:58 | 显示全部楼层 来自:江苏
    基本信息
    工程地址:天龙逸园6#201      
    设计师:白金           
    户型:三室两厅                  
    面积:112㎡                  
    装修风格:美式           
    设计说明       
    这套房子的主人为一对年轻夫妇,他们一直以来都对美式风格的家具比较喜爱,所以家里也打算以美式的感觉来装饰。为了营造美式氛围,设计师在餐厅背景采用美式风味的背景,加上美式家具的完美搭配,美式风味十足,给人一种轻松舒适的感觉,也使整个家里温馨自然。
    户型图解说
    (户型优缺点)
    优点:南北通透,格局方正,布局合理
    缺点:厨房、餐厅布局不合理
    使用材料介绍
    主料:地砖、墙纸、大理石、地板等。
    辅料:龙牌石膏板,兔宝宝木工板,峰之润净味墙面漆,进口奥松板,业之峰专用电线管,上海洁水水管,金星轻钢龙骨等。
    ) v( n$ N! b& S3 ]/ Y9 p5 B$ u
    原始结构图.jpg
    平面布置图.jpg
    餐厅.jpg
    客厅.jpg
    微信.jpg
    - A1 e) j. w% D! U( L: T1 a
    回复 支持 反对

    使用道具 举报

    您需要登录后才可以回帖 登录 | 注册

    本版积分规则

    手机版|无图版|站务联系 | 商务合作 | 平台公约

    信息产业部备案:苏ICP备05014191号-1 经营性ICP许可证:苏B2-20110445 苏公网安备 32060202000307号 © 2001-2019 0513.org All Right Reserved.

    投诉争议 技术支持:第一互联 GMT+8, 2025-12-21 17:04 , Processed in 0.449436 second(s), 16 queries , MemCache On. 站点统计

    快速回复 返回顶部 返回列表