濠滨论坛

点击扫描二维码

查看: 5400|回复: 19

业之峰装饰恭祝启东申港公寓25#1101开工大吉!

[复制链接]
  • TA的每日心情
    开心
    2016-1-3 10:20
  • 签到天数: 2 天

    [LV.1]初来乍到

    发表于 2012-6-23 16:56 | 显示全部楼层 |阅读模式 来自:江苏
    本帖最后由 南通业之峰 于 2012-6-23 17:47 编辑 3 K9 H6 D: Q$ Z6 ?2 d" D' q. B7 i
    4 S& [2 n1 g5 J  T: `
    设计前言:
    8 B7 D$ s, B- D/ H$ W6 Q装修地址:启东申港公寓25#1101  ]1 S* {/ h4 O! L7 C) @& [1 a9 c
    房屋面积:280㎡
    2 F* m+ `4 Y& q1 ]# @2 a+ ]装修风格:现代简约% o  R  T3 n5 v; ?! b! j$ \* |" M
          业主是个有品味的音乐老师,业主本人对现代简约风格情有独钟,喜欢简约而不简单。设计师跟业主沟通大半年的时间,从材料到家具的选择,最后我们设计师将给业主设计的现代简约风格取名为:春夏秋冬。这套作品终于在大家满心期待下正式开工了,在此我们表示祝贺!废话不多说,给大家上几张图。
    * A1 E* b5 Z0 e" N  @. Y# A一楼原始结构图:
    4 L; @( Q' T+ R9 |" ?4 V$ ]2 J 一楼原始结构图.jpg
    # U5 i. {. f/ s. R, {4 T& n8 x1 r/ C二楼原始结构:
    / m. U" ]0 }# |: ~ 二楼原始结构图.jpg 9 r3 l9 b! `* l! `4 \3 v$ I  b
    阁楼原始结构:% Y; D# F0 u! t
    阁楼结构图.jpg
    2 A. Y4 _% Y# g7 o" G
    $ C' \8 N* H- N) c. a8 b9 c( t* c8 S
    南通0
  • TA的每日心情
    开心
    2016-1-3 10:20
  • 签到天数: 2 天

    [LV.1]初来乍到

     楼主| 发表于 2012-6-23 17:03 | 显示全部楼层 来自:江苏
    " n* w/ E( F& X3 q& d$ M/ u% W2 o5 i
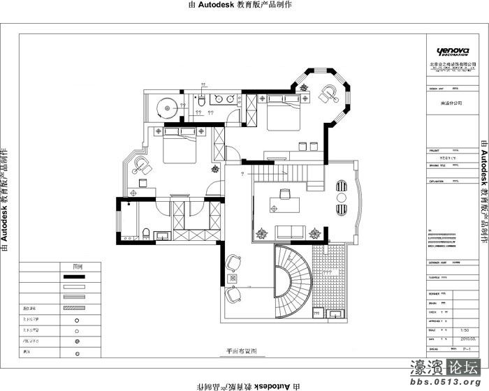
    紧接着再给大家上平面方案:
    # Y0 r- W: ?8 A3 v$ o3 c一楼平面方案:
    " R+ i% _8 K7 o8 j: X! O4 _& f! h 一楼平面方案.jpg $ ]7 Q  m% e# M
    二楼平面方案:
    / H' \* f+ L6 m$ u- G 二楼平面方案.jpg 5 ]: J8 z2 ~. s  e# ~# m
    阁楼平面方案:
    ; H) `. C) z2 z, G/ C 阁楼平面方案.jpg : O0 e; ~5 B1 o1 f, N: j0 h$ Z; L

    9 Z- Q  k. ], F$ \2 h8 C3 U" o$ V3 H7 \  E; M8 [, @4 \: U* a
    ) r, P* X) F: y  m* O1 O
    回复 支持 反对

    使用道具 举报

  • TA的每日心情
    开心
    2016-1-3 10:20
  • 签到天数: 2 天

    [LV.1]初来乍到

     楼主| 发表于 2012-6-23 17:15 | 显示全部楼层 来自:江苏
    : M; D0 f7 Q$ R8 o$ E) k
    南通业之峰 发表于 2012-6-23 17:03 ) v0 V6 b% N% n5 \0 T, v
    紧接着再给大家上平面方案:# @8 K' b: ?/ W" e( a7 c( _( T' R
    一楼平面方案:
    - m7 g+ S; \/ C8 x1 i! Z& _) I! k2 K
    & m$ ]5 C3 z6 |$ W* r" h
    最后给大家欣赏一下效果图:
    8 }+ o( c& l; w4 Y6 c3 B$ a6 s一楼楼梯:) w# ^. O/ y% }7 L. k; ~
    一楼楼梯.jpg
    1 |. l# S* T4 r; p1 V" t. a$ Z一楼客厅:
    & e1 H- q* @6 `( J8 z, f 一楼客厅.jpg
    * p: y2 L9 o3 l8 D- @; x1 ^一楼餐厅:  T' U0 ]. r. X1 \
    一楼餐厅.jpg ) A$ k. ?& w% @$ I
    一楼卧室:
    ) w; k+ L: F8 V, |* v$ \- S' F# | 一楼房间.jpg 4 T5 r+ _' l7 F  C
    二楼小孩儿房:
    5 N  o* y  h# P3 k( a: l 小孩房.jpg 1 G$ E1 M! m8 p
    二楼过道:
    0 t! `# }- u8 n9 z* i7 o" \3 E 二楼过道.jpg
    $ b# P/ T5 ^8 ?: U  P放映厅:5 ^5 t/ A' d- E- _' [
    放映厅.jpg
    ! T8 v% i  m4 j) S/ \健身区:
    4 _- B9 P* E+ X3 b1 v( T  Q 健身房.jpg
    5 `' i' P) O8 Y0 b/ i
    1 X9 x) J8 N& x2 x: ?
    ) f+ C" [; g/ g# Y- U
    回复 支持 反对

    使用道具 举报

    匿名
    发表于 2012-6-24 00:56 来自手机WAP | 显示全部楼层 来自:江苏
    提示: 作者被禁止或删除 内容自动屏蔽
    回复 支持 反对

    使用道具 举报

    匿名
    发表于 2012-6-24 08:39 | 显示全部楼层 来自:江苏
    提示: 作者被禁止或删除 内容自动屏蔽
    回复 支持 反对

    使用道具 举报

  • TA的每日心情
    开心
    2016-1-3 10:20
  • 签到天数: 2 天

    [LV.1]初来乍到

     楼主| 发表于 2012-6-24 09:17 | 显示全部楼层 来自:江苏
    李科照片.jpg
    : s3 y! |) F6 b% T( [5 v8 f. k本案例设计师简介:9 q; a4 {5 P( O9 p8 }6 s. g+ F
    姓      名:李科& ?  I/ J6 G6 H3 ~4 w
    职      务:南通业之峰装饰首席设计师+ ], U0 f+ H, i% a7 ~# d
    工作年限:  9年
    6 N4 X- v# X) [0 G工作经历:中国建筑装饰协会会员,南昌装饰协会高级会员! U( ^7 d0 j: z9 L% K& @  v
            2000年毕业于湖北美术学院环艺系
            2000-2003年 任职于深圳居众装饰
            2003-2004年 任职于上海博赞装饰南昌分公司
             2005     进修于中国美术学院哲学系
            2006-2008年 任职于北京龙发装饰南昌分公司
            2009年至今任职于北京业之峰装饰南通分公司首席设计师
    2010     进修于清华大学室内设计
    荣获2009大金杯家居设计组 创意设计奖
    荣获2010年南通电视台第一届家装设计 10佳优秀作品奖
    荣获2011年南通电视台第二届家装设计 10佳优秀作品奖
    荣获2011红星美凯龙家装  设计优胜奖
    主要代表作:
    居住类:江海名苑,博园岚郡,军山半岛,优山美地,成开国际学院样板房,
         黄埔豪庭样板房,万科长岛印象别墅,绿地山庄别墅群
        公共类:武汉格莱美酒吧,太平洋联邦地毯,武汉艳阳天大酒店
    9 s: v' ~- C% I2 H. p+ t; [
    回复 支持 反对

    使用道具 举报

  • TA的每日心情
    开心
    2016-1-3 10:20
  • 签到天数: 2 天

    [LV.1]初来乍到

     楼主| 发表于 2012-6-25 09:58 | 显示全部楼层 来自:江苏
    回复 支持 反对

    使用道具 举报

    匿名
    发表于 2012-6-25 12:06 | 显示全部楼层 来自:江苏
    提示: 作者被禁止或删除 内容自动屏蔽
    回复 支持 反对

    使用道具 举报

    匿名
    发表于 2012-6-25 12:44 | 显示全部楼层 来自:江苏
    提示: 作者被禁止或删除 内容自动屏蔽
    回复 支持 反对

    使用道具 举报

    匿名
    发表于 2012-6-25 16:23 | 显示全部楼层 来自:江苏
    提示: 作者被禁止或删除 内容自动屏蔽
    回复 支持 反对

    使用道具 举报

  • TA的每日心情
    开心
    2016-1-3 10:20
  • 签到天数: 2 天

    [LV.1]初来乍到

     楼主| 发表于 2012-6-27 14:14 | 显示全部楼层 来自:江苏
    谢谢!
    回复 支持 反对

    使用道具 举报

  • TA的每日心情
    开心
    2016-1-3 10:20
  • 签到天数: 2 天

    [LV.1]初来乍到

     楼主| 发表于 2012-6-27 14:14 | 显示全部楼层 来自:江苏
    **** 作者被禁止或删除 内容自动屏蔽 ****

    * c9 Y1 f+ r' T$ y+ X4 t谢谢!
    回复 支持 反对

    使用道具 举报

    匿名
    发表于 2012-7-3 08:02 | 显示全部楼层 来自:江苏
    提示: 作者被禁止或删除 内容自动屏蔽
    回复 支持 反对

    使用道具 举报

  • TA的每日心情
    开心
    2016-1-3 10:20
  • 签到天数: 2 天

    [LV.1]初来乍到

     楼主| 发表于 2012-7-4 10:30 | 显示全部楼层 来自:江苏
    **** 作者被禁止或删除 内容自动屏蔽 ****
    5 X# x( |% ^  z1 }. P3 K7 ^
    呵呵~~~
    回复 支持 反对

    使用道具 举报

  • TA的每日心情
    开心
    2016-1-3 10:20
  • 签到天数: 2 天

    [LV.1]初来乍到

     楼主| 发表于 2012-7-4 10:34 | 显示全部楼层 来自:江苏
    - F0 M3 k/ F0 L5 o$ l! O
    - \  u1 l8 O1 X- r4 _- h! M! p
    ) Q! R  [: R9 |' K7 |1 R
    ; a- ?2 t+ _) e( [7 q
    8 X) y0 X" K7 k
    回复 支持 反对

    使用道具 举报

    匿名
    发表于 2012-7-5 11:51 | 显示全部楼层 来自:江苏
    提示: 作者被禁止或删除 内容自动屏蔽
    回复 支持 反对

    使用道具 举报

  • TA的每日心情
    开心
    2016-1-3 10:20
  • 签到天数: 2 天

    [LV.1]初来乍到

     楼主| 发表于 2012-7-29 09:21 | 显示全部楼层 来自:江苏
    再顶起来
    回复 支持 反对

    使用道具 举报

    匿名
    发表于 2012-8-2 08:46 | 显示全部楼层 来自:江苏
    提示: 作者被禁止或删除 内容自动屏蔽
    回复 支持 反对

    使用道具 举报

    匿名
    发表于 2012-8-2 17:13 | 显示全部楼层 来自:江苏
    提示: 作者被禁止或删除 内容自动屏蔽
    回复 支持 反对

    使用道具 举报

    匿名
    发表于 2012-8-4 10:06 | 显示全部楼层 来自:江苏
    提示: 作者被禁止或删除 内容自动屏蔽
    回复 支持 反对

    使用道具 举报

    您需要登录后才可以回帖 登录 | 注册

    本版积分规则

    手机版|无图版|站务联系 | 商务合作 | 平台公约

    信息产业部备案:苏ICP备05014191号-1 经营性ICP许可证:苏B2-20110445 苏公网安备 32060202000307号 © 2001-2019 0513.org All Right Reserved.

    投诉争议 技术支持:第一互联 GMT+8, 2025-12-19 12:56 , Processed in 1.483843 second(s), 22 queries , MemCache On. 站点统计

    快速回复 返回顶部 返回列表