- 阅读权限
- 255
- 精华
- 最后登录
- 1970-1-1
- 在线时间
- 小时
- 主题
- 好友
- 相册
- 分享
- 日志
- 记录
- UID
- 811356
- 帖子
- 0
TA的每日心情 | 慵懒 2014-6-28 08:44 |
|---|
签到天数: 9 天 [LV.3]偶尔看看II
|
1 h" m& x* m7 m6 e8 q
- V% ^, `1 G9 w6 ]* a2 G. q
; f% d) W! u, x& @3 |
: p5 Y9 F1 k0 ]) \--------
9 r9 k* x, U8 z5 q3 j) T5 o
- T0 J, [1 F8 _) C y0 q5 a( C2 g) z. |7 x4 I一手精装房 h+ \3 `! ]+ y) [3 X# i" K
面积 / 270㎡' k4 W/ G0 t! c
风格 / 轻美式风5 B2 g% e7 I2 R. {
户型 / 五室两厅两厨三卫
8 ]: j2 h7 A8 [硬装设计 / 印象水仙
3 @/ s( ]6 V& ]" b2 \5 W- o1 I软装设计 / 印象水仙 1 y& F" X/ S0 Y: k( _8 [
施工单位 / 印象水仙
$ Q" l+ I4 m. e2 N" ?( m( Y" @8 z: m0 H9 Z, U) g4 b) j( y: K
♥
, F5 c1 y, U) J
$ Q. {0 R, S9 [4 _, `9 A
6 V K, A7 x6 i' g4 O
# L0 N3 k% }6 P" o% g! c" O4 \
本案是精装房,四口之家,主家期望设计色彩明亮,可以有自然的感觉,从而给予小朋友一个轻松舒适的成长环境,风格更倾向于自由浪漫的美式风格,考虑父母偶尔来住,空间需要满足三代人的居住需求,在原来的硬装基础上,将瓷砖、地板、木门做了更换,吊顶也重新改造了,另外设计师增加了很多收纳空间,便于三代人的日常生活。7 u/ u" X, Z5 w) w$ G% z. \
4 @8 E5 m! @* v7 y3 d- a为了让空间主人有独立的个人空间,设计师还做了独立的套房设计,包括卧室、书房、衣帽间、卫生间,这也保证了屋主隐私,同时给予他们生活便利。
4 ?0 N2 K- O/ H+ _0 {0 G. k/ g" ^0 U- [5 l& l7 v5 ~% |5 n
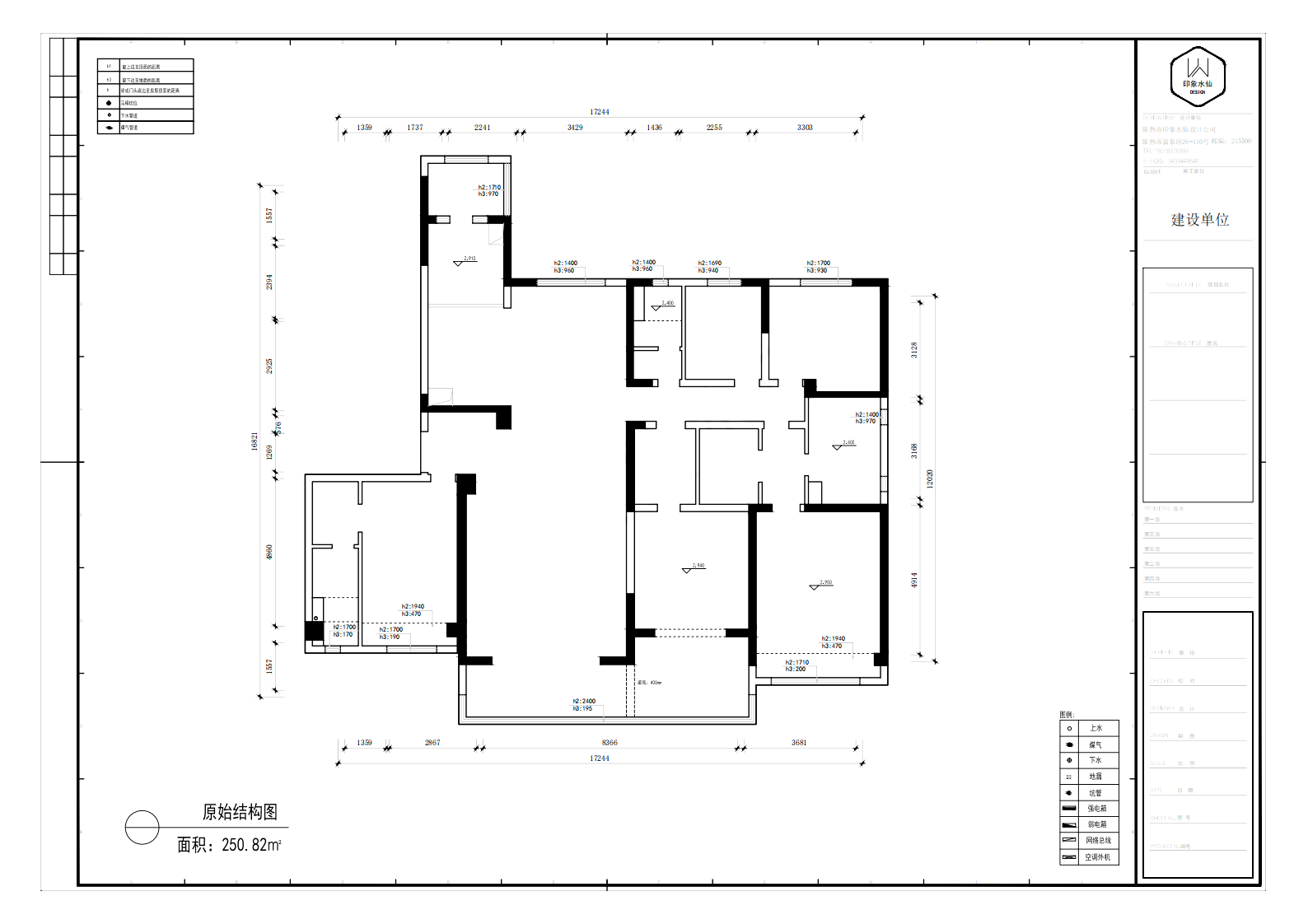
原始结构图0 w; G1 G( S, Y+ ~! f
; X6 x- M: Z6 f3 ^( B( |( q
9 I `$ C7 ]( {7 Q+ A
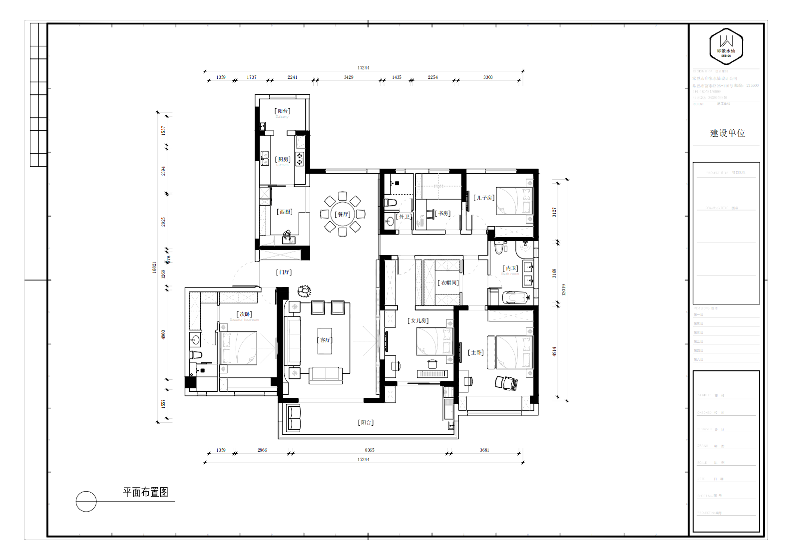
4 [% F4 `! w" I( c h4 ^! M+ D平面布置图
' @0 ^2 _5 z1 m$ D
' N& @7 {- @' Z# U7 g
/ [6 c( `6 g+ q3 O, M8 x
4 T, d( X7 C6 y: C& a
Living Room
z% P- g v3 O, Q2 S6 O7 D# H4 `# O
- O( G7 q: i' [5 g$ T" ^5 V
1 Z' y0 T9 ~/ w0 {. w7 j" v
6 ^, x$ w# n K( a# u
7 ]0 r. x) r" [& g. J: i1 C揽景入室,客厅的设计看似低调,却无处不透露着细节与巧思;沙发背景选择清新的蓝色,与白色石膏板结合,干净利落,增加了空间层次与立体感;美式壁灯如点睛之笔,电视背景做了对称的艺术造型,赋予整个空间优雅温馨的气质。9 V2 h" U) v2 O* k
4 C; V( U' P0 O
* c) A, ~" L9 v% w# s" g% A* a7 @( z1 F+ F+ Q* q9 y1 o
影仪展示区域# g' I5 H. g5 v0 ^- c* a8 ?. C1 j
" E/ ^! E# t* a7 g; ?. L
! B+ r3 G$ U8 w; z7 [
6 Z. g4 e3 h# ] F" @/ s. Y& o
米白色的皮质沙发,精致的美式吊灯,结合实木茶几,散发唯美的端庄感,黄色单人椅更是让空间多了一份活力与俏皮。) c5 u: o8 `8 G) m8 [# J
! W) s+ |8 V5 U4 {' E4 w6 b
1 W' F. m8 B: {/ ?
! H9 r- g) @. y- y/ b4 J" Z2 v
Dining Room& C1 u5 ^ g/ L9 f# q' T
$ g+ S: O9 f& q( k* ~
8 Q' w6 H L/ g- i5 Q; M, E
4 G3 s9 ~- g' ^* P7 }0 ^客餐厅之间没有进行区域分隔,开放式的西厨区域,空间开放而舒展,以求最大化通透视觉。餐桌延续经典美式的棕色调,浅咖色的皮质餐椅带来优雅而高级的味道,将空间变得沉稳而令人安心。- x, \# G- {/ o' R- M6 `( x1 P5 V
# [# y/ o4 Q$ ]6 [1 cCorridor; o8 a! ^( Q% `* X6 g
( C, ~: L8 B- p- C% r' [; F
/ q) n/ K0 z1 J9 e" c7 [( q. L9 o, ?# J( s) Z+ t# o( c
过道以开放式布局,保证了大面积空间的通透感,并以相同的配色延续空间的整体性。
_7 k8 E4 r1 t. J7 E) F C4 \ A9 H. j- z) E7 ~6 ^
Bedroom# W0 F) a8 N5 U$ g3 \3 t
. [/ [3 l7 J6 m: X$ e) C! s: [
6 n! D* Z4 p9 d2 Q4 a
2 Q0 T7 b4 ?5 H8 ^! Z: N5 @( R主卧床头背景选择蓝色乳胶漆,简单却不失温柔,棕红色的实木家具,结合拼色暖色系窗帘,触摸舒适的床品,岁月的温柔一如既往。精致复古的吊灯,似乎也在娓娓诉说关于爱的故事。' v, ?9 O) q5 t# o/ s
8 H# j0 \, p |$ i8 rKids Room 1
9 D0 x' E9 F4 ]1 c% u
4 [6 b8 X+ U5 A* p
; K8 z G7 ~ |) s; R% e
/ u- b, |/ n/ u! h3 I1 R带了甜美的粉,与白色、浅咖色、灰色错综搭配,辅以简洁温暖的小吊灯,小小的空间洋溢着简洁明快又略带慵懒的少女风情。( z$ t5 b" F$ \$ K4 X* m6 e9 V
j- |7 T3 n5 h aKids Room 2
. Y- | h8 j; p7 L" O
; s0 l# q8 M l5 ]* o3 H0 [$ V1 g
Q* g- L1 \& G
I: N6 C- R' f男孩房选择蓝黄对比色,更显活泼灵动,一整排白色定制衣柜搭配局部深蓝色柜体,将一年四季的衣物合理收纳,井然有序的生活,更加轻松舒适。
" r9 l; }( d% i K5 `, l9 B! p/ ^. o& V2 e2 e1 l+ U
Parents Room3 _# L9 Z7 v$ a: r
+ L# X# C6 \0 d1 @% W
, P; s2 A8 S: l8 _1 j& g
$ t' H8 T* ^( u老人房,墙面选择低调的浅灰色,温柔的拼色窗帘,结合实木家具和温馨的床品,每一处都在细说着生活的美好。夜半,渲染上一层朦胧,让每一场美梦都变的柔软甜蜜。
+ D8 N# I4 s6 o9 H! l* j |9 x& q
5 ? H9 z2 A' q! `7 eStudy
8 H% U7 P+ J! ?3 }- k5 W1 x! s6 c1 W
" ]5 Z: h. W9 U2 n
; l. m- r- J+ B# k; P1 m! f一张橘色单人椅,点亮了整个空间,利用上层空间排放书架,视野通透,再者定制了榻榻米,满足收纳的同时还提高了空间使用率。4 c- ~+ v( w3 M8 g8 K
, w( e1 H! m6 W9 Q1 t& y
. ~. Q- B8 I1 k9 n1 i7 _& k- s9 v* J$ n' Y
- z: k' N# ?" r" D4 l
3 h& f9 a. r8 B$ ~4 ~( g
南通0 |
|