- 阅读权限
- 255
- 精华
- 最后登录
- 1970-1-1
- 在线时间
- 小时
- 主题
- 好友
- 相册
- 分享
- 日志
- 记录
- UID
- 811356
- 帖子
- 0
TA的每日心情 | 慵懒 2014-6-28 08:44 |
|---|
签到天数: 9 天 [LV.3]偶尔看看II
|
5 S0 x% c3 L! X* d6 l
7 f, }6 T0 Y9 [$ X- n8 s/ I0 T: g
% D/ p6 x. y5 \
) J# R2 U* E" n$ O- ~# T
学区老房也有春天! Y% {1 I) [7 {- E- ]. D2 v
Renovation of old houses
4 {: T+ E1 `3 A/ G8 Q1 B
7 n _; @4 B1 T& R F2 \面积 / 81㎡ z4 I) X* u+ s& h7 x- M3 a6 \
风格 / 现代风3 `6 l B' e+ e3 R$ { N, R- Y+ G
户型 / 两室一厅一厨一卫2 `% ]( z/ T3 A% S" n
硬装设计 / 印象水仙! ?* X0 c- ]6 E& C" e% E
软装设计 / 印象水仙
- R8 X. v8 ]/ O施工单位 / 印象水仙 , h: c. \4 P9 A
! c+ `9 E) V0 j+ \: I" N
9 I4 _7 a7 Q1 j/ G) G, {) m/ p" t" Y
, u: b6 ]7 k [6 g: D. }# {. t
" y* ?7 y! H4 z7 K这是主城区的一套学区老房,屋主是幸福的一家四口,女业主经营一家教育机构,男业主的职业是医生,老大上四年级,老二上幼儿园,屋主喜欢无印良品风格,希望自己的家简约温馨。" `( Q( |! q3 S9 I4 B# O/ d7 C
- q' v( P* n8 q
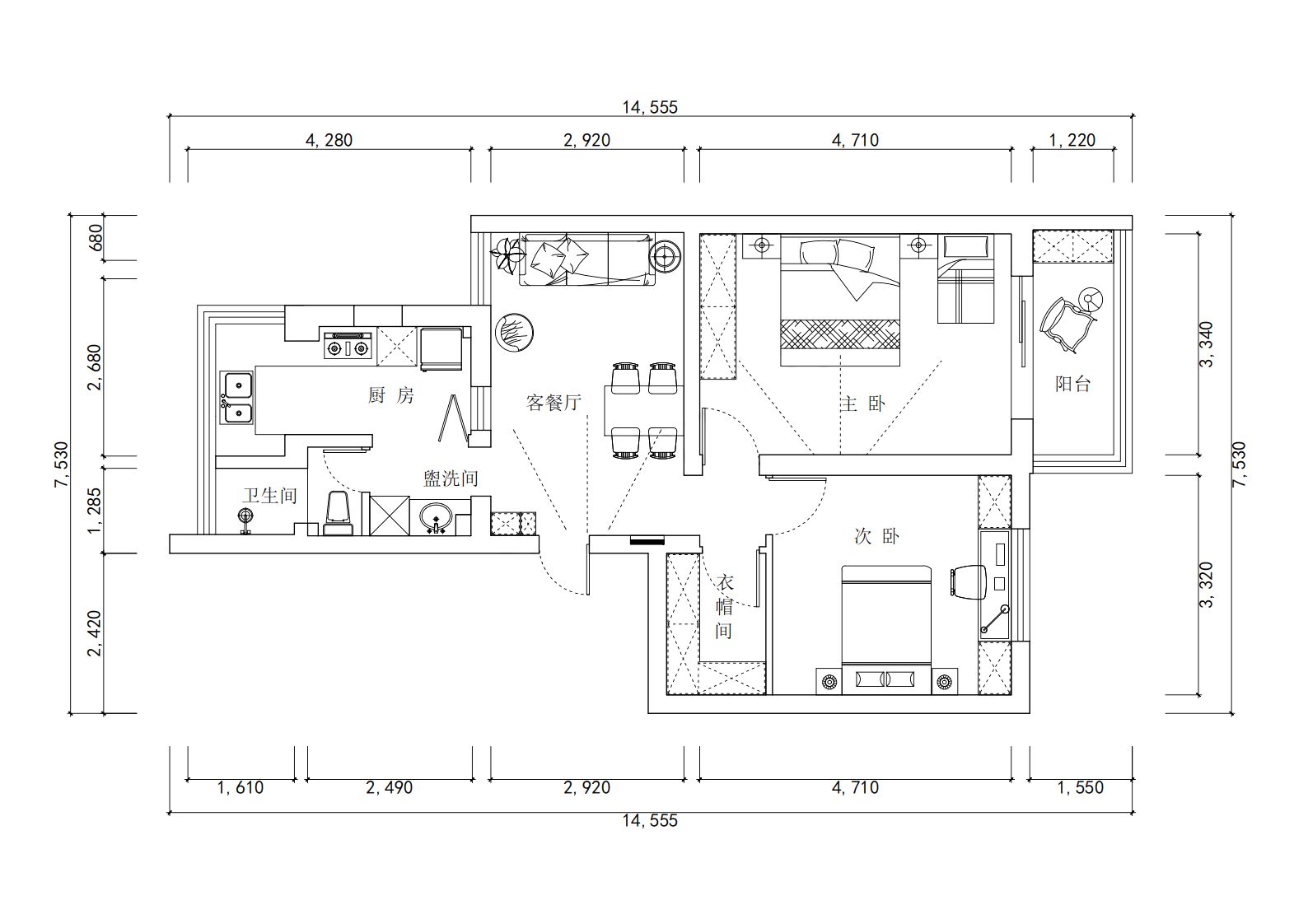
老房客餐厅一体,光线很灰暗,厨房和卫生间空间不规整,设计师从光线和布局出发,看改造后的完工实景可以看到一个明亮且互不影响的客餐厅独立区域,厨房和卫生间的改造设计也非常符合屋主的日常生活;还有房子纯粹是给孩子学习用的,空间过滤掉了所有的娱乐功能,但屋主希望一家人可以窝在一起看电影,就设计了投影功能,温馨满满。' @' m4 Y: E$ O! ]( ~
5 M6 N P6 y7 ^9 K, V2 u
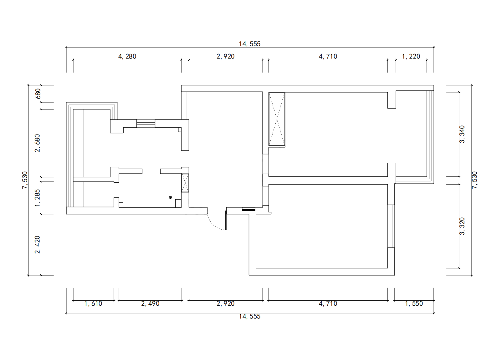
, T4 E' n& |3 I3 U/ q原始结构图' y& R+ W9 f( T3 S; C- }) F
, Q4 [9 o& q" _: E# b$ c. C& F
平面布置图0 Y5 u8 \( {( ]* |6 X
: c! s/ z% d) ePOECH
1 @# Z5 y) R0 n& U } _' O0 K. S1 E) j! T% \* N
, ^/ Z4 O" r! W1 w, l( P, d% U
# b- B- b- h% y2 @) D8 Z! S进门处设计师考虑屋主收纳的需求,选择双侧可开的柜子,原木色让主家一回家就能感受到温馨的气息。
* m6 _4 K+ N" F" Q
2 ?+ Z8 @! T$ Y: W( MLIVING ROOM
' y( Z0 _9 S5 v3 i# Y6 o Q3 q" c9 g/ Y- b4 ]
- j( g4 u9 @3 c6 Y( Q8 X
@8 r y- I# a4 J5 E
客厅空间硬装上使用白色与灰色相结合,软装采用跳跃的颜色来搭配,增加生活氛围。
1 ~, G% p& c3 J. ]# e5 C+ Q# I1 L! A J$ j5 T
. Q; L% c' W& y4 E8 _( J9 ~3 V$ S( m6 M( _6 S' z1 V
1 p$ v8 `4 |. k0 P
H# f$ m+ y. q3 N# W, l1 w" P: w/ n原木色边柜,在浅色系空间温柔大方,这幅装饰画的选择,使整个空间都由此活跃起来,绿植的加入,也让空间遍布生机,局部亮色的点缀,给予居住者独特的愉悦感。
, ]8 L& C1 q5 s# O. a: z2 W
1 i* X' i0 @7 W6 @* @ f: U0 ]
3 ?% a3 T9 D8 O8 u2 O! t5 r0 e5 x" z f
DINING ROOM% K& {. L) Q2 B. r" N
8 I- z1 u0 W) ~+ F" L$ Y7 g
4 H, Q- \3 j( x4 M
1 L+ N! ~9 {3 a V/ e+ x& L+ O
空间布局的设计,客餐厅比邻也并不觉得拥挤,反而一家人窝在这里,非常的温馨。4 e1 j' m+ H4 P) k
1 j/ a/ ?; Q. x$ X餐桌椅选择白色和原木色相结合的设计,简约温馨;周围的软装配合灯光效果传达出浓浓的生活气息。) K) s& [2 u5 @+ R }
. r2 \8 a% v9 l5 h! h! z* }2 }& B
* s W4 x5 g' C+ Q9 \
" u4 m) O% \6 x$ M) R% o9 U; u% }( bKITCHEN7 ~; a4 F3 z7 m" w8 C7 ^# m% V
% N# x2 J& o+ y g' ~: u& t [2 f
6 v* [. q8 F5 J% I7 `- s& q. d: d* V2 h
厨房的地砖、墙砖、吊柜,设计师均选择浅色,在视觉上更显明亮宽敞,原木色的加入让厨房氛围温和起来。
! Z0 s6 J8 Q! A6 v6 c0 {& Z2 t4 O# d# E& O ~: V8 l2 N6 F6 R
! N5 z8 w: ^& ^7 a9 I4 S1 N3 ], D
& ~$ k `; r. H7 G. S8 L+ h
在屋主入住后的厨房也不再是冰冷的家居摆设,而是被生活气息包裹,两人一同品尝人间烟火。
1 [6 s2 b+ ?0 V& B. W2 x+ ?7 _( g' F; o, _) m4 v. i2 @
* C3 J; i/ O4 u4 `
7 E! W4 S& c# l& q/ D: T$ mBEDROOM 1
) w) ^% h- [: i' ~/ a# U: \7 h/ k0 ?1 m+ i
* a3 O; F# p" M6 p+ f2 g, n2 N4 F9 j( c! y \
主卧在保留整体灰色调的基础上,加入了相对跳跃的色彩,适合屋主带二宝居住,考虑到后期二宝需要独立睡觉,需要提前预留一个空间放二宝的床,这个空间完全满足了屋主后期的需求。) d! p( B. t; d0 S8 B, } y
" J' E' c3 K; c: [) y1 r1 s
家具选择原木色平衡着整个空间,使空间视觉感受非常温暖;吊灯的点缀让空间不经意间透露甜美气息。: }* W0 b' w A4 E) l
0 L V, v$ _( H2 ]" N
( J9 R' M. A9 S- k# d$ s+ i0 v# P% L
# z1 X. ~) L% u0 J1 [8 `/ M+ y
. ~5 p% y7 P2 k7 s N; M
* z! a: o# C* ^
9 J% P6 V* I( k& m; ^( V- N. H
阳台区域设计了简约的书桌和收纳柜,原木色延续卧室家具的色调,阳光洒落的那一刻,温馨满满;移门的设计,独立书房的空间腾出来了,适合屋主安安静静地办公、学习。' g, d' n' n* L, ^( C
$ F2 S( v1 n- o! i' X6 q9 y
0 x! V0 P! T' i+ P! r" E
* Z( ~9 l/ N0 j' h; L
CLOAKROOM0 ^" D/ i% j$ [3 r9 z
7 ~2 `8 `0 m5 d# q3 b
! d! i! X* J3 X* }6 f+ r+ e1 o5 N" E
% l' Z6 F4 }& [6 v! A( C' l/ m0 C主卧里隔出一个衣帽间的空间,满足了屋主的收纳需求,房子虽然不大,但一点不影响屋主想要衣帽间的需求,嘻嘻。9 B7 l. \) C# o0 S7 i% M' t
) a" S( E, b6 f8 {7 H
BEDROOM 2
% j& G6 }+ Y- i7 o0 O6 L7 g3 D1 o( o) K8 o2 b( ~
; y9 l# i8 ~% S3 L! A( i: b3 l$ P! d6 C9 ~5 s3 y0 ~
- ]% m+ m) S3 Z
3 d7 h: R7 F) G: K次卧是留给大儿子居住的,选择暖色木地板,无声的温馨感把空间包围;床头背景以墨绿色质感的艺术漆渲染出静谧而浪漫的氛围,搭配黑色木质床,整体用色上时尚高级。! [, h% f' }: I$ f$ A2 a) n
- d7 E" M0 b8 E6 i+ `% [3 N
8 ?/ X! C0 i' T1 b- z) i: \3 l
4 P3 @/ G3 K7 K5 q0 A: E9 P原木色收纳柜及书桌的设计,稳重不乏热情,精致舒适,满足儿子对家的畅想。
6 H* e/ F a8 A0 S9 C2 n* w# j' S' Y" b. f
, d7 D) I! U& ~' e0 Z* q7 L" F$ U
% L0 Z7 y) b' d' V' g* O+ ^+ E
WASH ROOM
x! _4 W/ I$ e
7 r" d. w- T# u; B
9 m% Z5 l. { w2 B! J8 ~( a: R# D0 S* v2 Z( A3 ?" l$ R) ~
卫生间以白色、黑色、木色为主,空间清爽整齐、大方雅致,干湿分离的设计,更适合屋主的生活需求,灯光的设计结合空间卫浴的选择为,为空间注入现代的气息。
7 X2 o# [! L s. c3 z. I6 L& t4 S" u) ?. S; ~& E4 f, I
" D" o- P |. D
3 d( H# m& j! C$ D! }2 w& S6 V5 P8 t* X" x% M1 ?' F/ L2 b
( B7 J d# h* ]7 f# r6 b
南通0 |
|