濠滨论坛

点击扫描二维码

查看: 23035|回复: 0

重阳特辑丨对父母的爱,都藏在这些“小心思”的设计里

[复制链接]

该用户从未签到

发表于 2020-10-25 12:19 | 显示全部楼层 |阅读模式 来自:江苏
$ [7 W( f9 x- G3 k: B+ F3 Q6 \+ L
" p: T7 S+ X2 f' V0 M. k8 ?
遥记童年时,坐在父亲肩头,借着父亲的高度看更远的世界。而母亲对我们总是呵护备至,万般包容,用最伟大的方式,向我们表达人世间最温暖的爱。
! |2 n9 k; |' k7 S1 _7 |
渐渐,我们长大、离家,甚至成为了别人的父母,才深知父母给我们的爱是多么纯粹,不求回报,只愿我们过得好。

( G" C' x# T: ?( B2 }  ^
微信图片_20201023113351_副本.jpg
! v) T; c$ E7 X
- u0 B* |1 j  s
农历九月九日,为传统的重阳节,也称“老年节”。古人登高插茱萸、赏菊花,而在物质经济发展迅速的今天,除了尽量能够抽出空来陪陪老人尽尽孝心,如何为老人设计家居,为晚年的父母营造一份健康、舒适、平安的幸福空间,也是作为儿女的重要课题。
7 t2 Q5 c9 B6 [3 y. \3 R
微信图片_20201022165244_副本.jpg

/ {* l: h  T) [; J8 ^% @- r
$ U3 h+ }, m. n5 }6 {4 [0 B
今天我们来说说打造老人房需要注意的那些事儿。

+ I% _% `4 W# Y. d' e3 F  z7 K  ^+ I, q) [: a+ ]

' C9 e8 B1 B" B, K
01
一个安全的空间

- f% e, N8 n( r7 a1 [

2 y7 N0 e, V( q3 d
' O5 X/ y" Y% b# x& _. ~4 F
人一旦步入中老年,骨骼脆,一不留神,就容易伤筋动骨。在装修房子的时候,居家设计细节要留心,给父母一个高品质的晚年。

) ?* w* A4 G" S5 B
// 老人房放置在一楼

. D7 d5 N) s" v% O' R3 A
对于别墅装修,大多都会考虑将老人房放置在一楼,对于腿脚不便的老年人来说,省去了上下楼的麻烦。
5 h* m2 m/ t0 d
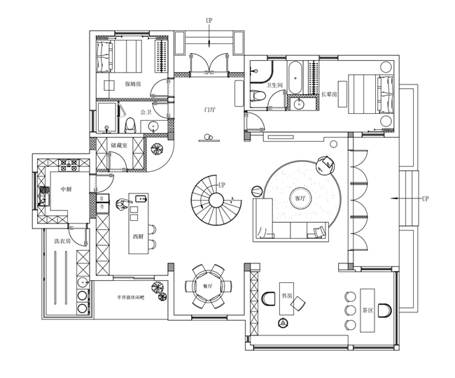
● 案例一
本案为新海通花园别墅户型,考虑到老人生活的便利性,老人房放置在一楼,同时留一个保姆间,方便家政及照顾老人起居。

9 ?) d  `& z$ e" {: D/ Z
新海通花园1平面_副本.jpg
3 i4 ?; T- C8 d! U0 L6 S
● 案例二
本案为顺发御园别墅户型,将老人房放置在靠近楼梯电梯的位置,便于老人行动。
8 a6 [6 r2 o1 R) O: m% A6 F+ l
顺发167-一楼_副本.jpg

2 Z5 J7 |  t- @/ l
// 玄关
# Y8 B, Z0 g1 ]: L" s
如果老人腿脚不便,不适合蹲下,玄关处可放一个穿鞋凳,既满足日常进出门换鞋,又可以满足收纳需求。
. y; |0 o4 |& a4 b% M4 ~* `" M
DSC_3768_副本.jpg
9 ^( B7 T" D) F2 @4 d" }" v$ g" Y
在进门口安装感应灯,打开门或者从屋内走到这个区域,此处就自动亮,晚上不用在黑暗中到处摸索开关。

/ }4 U# h  B/ t& n) d
DSC_3771_副本.jpg

* K4 P! d: `! K4 Q4 L
// 卫生间

9 A+ n! k3 W% _; a
在马桶、淋浴房旁边的墙上安装防水材质的扶手,防滑安全,更能方便父母的使用。

, w+ u* s) N4 |8 z
u=3314224858,2346195442&fm=26&gp=0_副本.jpg
; R$ ?' X1 i9 q: @- _3 D
地面注意使用防滑砖,保障父母不滑倒摔伤,另外浴室还要铺设防滑垫。
( k: M' B# m$ T
老人房卫生间_副本.jpg

, A0 Y+ T; Z5 u: L) l9 O
浴室门、卫生间门向外开,如果里面有人晕倒、摔倒在地上,向外开能够节省出不少时间。

0 r4 K2 G3 O8 q2 Z; v0 c9 a' h8 {
微信图片_20201023173125_副本.jpg
; X/ C; f; ]( L0 o. K7 c$ H1 w( h
// 卧室感应灯

7 K0 z  Q0 x, M! C/ i7 ?- z
老人经常起夜,所以装修的时候,如果能在床下安装一排感应灯带就很棒,一下床就自动打开很方便,同样的理念可以用在老人卧室通向卫生间的过道。

- s+ M/ E. Z: d2 H2 z
640_副本.png
4 @5 D" n( }1 q9 A6 o) M4 {" F

. F" R- m$ l* R# C# v
02
父母喜爱的舒适配色

/ R4 m2 [& G) ~, z) Y
营造适合老人居住的家庭氛围,配色很重要,颜色会给人带来情绪变化,所以有老人在的地方要注意避免使用会引起情绪焦虑的配色。
7 S7 y  w2 r2 C. k
// 色调舒适
0 O% _. F$ `+ {
一般来讲,老人房的用色以暖色为主。色调选自然景色系,如蓝灰、绿灰色、米黄等柔和的色调,给人一种舒适感。

- z$ n/ Y- z- ?9 `* R0 Y
微信图片_20201023174714_副本.jpg

) p" f, F2 b6 g
以白色调为主,稍微在床头和细节处点缀些墨绿色,打造一间让人心情平静的卧室。
$ V. O5 j, x4 u& J. Z9 b
微信图片_20201023174836_副本.jpg

$ }' X& q( o9 F8 y7 B. z0 E
为了方便老人的行动,室内的布局尽量简洁大方,家具靠边、沿四周摆放,留下足够的行动空间,同时也要避免脚下细小的杂物,以免在无意中绊倒老人。

9 ~3 v- K$ }3 v, k7 d$ s
微信图片_20201023162659_副本.jpg
- v; D9 [8 f$ E, r) ~8 B' c/ W
// 忌过于跳跃鲜艳的颜色

4 J; `; V; I" F8 v7 \
适当跳跃和艳丽可以增加空间情调,但太跳跃或艳丽的颜色对于父母来说,可能会不太适应,大面积艳丽的颜色从观感上过于刺激了,缺乏宁静感。当然可能防不住有喜欢大红大紫这种喜庆颜色的父母,那么用局部点缀即可。
1 e! V+ F) A4 i4 J2 \
yhn_副本.jpg

5 ^1 `  p' V- Y" L5 [, n4 s2 h; }; r9 ^, _; C
03
尊重他们的兴趣爱好

/ S+ d" Y& y4 I* n; I5 n
人到老了才知道有一项个人爱好有多重要,它能充盈人生,让每一天都过得有意义,比如有的父母喜欢唱歌、看书、练书法等,所以,装修房子时,有意识的帮父母培养爱好,才是最大的孝。
& [- {$ ~' x% b" j1 L' ?$ g3 R* G
// 小菜园
3 f3 _% C6 p3 r/ i3 [0 o
别墅基本上都带有花园,可以在花园里圈一块地,让老人种植一些瓜果熟菜,这样父母退休后的生活会更充实,还能锻炼身体。
7 h/ C. k9 R1 D& U8 K: Z" Q  @
顺发167园林_副本.png

1 `% F* z, r) ~5 \9 ]
△ 顺发御园别墅庭院的菜园设计

0 X6 g+ \9 G/ h& x, [8 Y4 c, `8 _
微信图片_20201023183112_副本.jpg 微信图片_202010231831121_副本.jpg
! d2 ]7 Y- Z: k9 B% e! L* o9 i$ C
△ 东郊庄园别墅庭院开辟出一块菜园区域,绿色蔬菜健康卫生。
+ D" i$ v" d# Q" P: G1 u2 P
// 品茶区

$ j9 V" g" X. H* y# Z8 f
很多别墅在设计时,会在地下室设置一间茶室,也有的在一楼阳台放置一个品茶空间,方便父母使用,茶余饭后,宾客至来之时,围坐窗前,品茗、赏景,悠然自得。
" Q$ H5 m2 }3 p; h8 K; ~% J/ ?: `
微信图片_202010231840581_副本.jpg

% W9 L! p, A1 }4 g% ~
圆润的弧度,流水线条造型,体积大却不厚重,不易刮伤擦伤。

4 m) @# w8 G$ U* |$ G6 T' E* y5 H4 Z& h
微信图片_202010231748361_副本.jpg
% B2 N6 ~$ B4 ~8 f: k' g
// 书法区
* |* k/ o- |. @& J9 n
如果父母喜欢写字、练书法,书房则是不二之选。

) [5 F/ H0 s$ v7 C3 X
D42A6187_副本.jpg

' {) ~% X& c9 V1 o1 d' i* J* r( K; d: }' y- I; v5 ^2 y
爱父母
就是在家的每个角落都有爱的影子
那些藏在设计里的“小心思”
会让他们感受你对他们的爱
9 d$ ^$ N9 d6 x7 E

3 a6 m* S; w* L# Y/ q- V: Y, |
关于居所的美好想象2 x+ i. T. x2 W' I( ^
在这里都能找到专属设计方案
如何筑造一个美满幸福的家
尽在星杰国际设计
咨询专线:400 800 6811
地址:圆融中心31F星杰国际设计

0 J2 y; R2 m4 m5 A: ?9 e$ C" ?
微信截图_20190506110457.png

; P: n! ~# ~+ V3 K6 r4 ^$ t$ Y- A# C) ]% S0 j
南通0
您需要登录后才可以回帖 登录 | 注册

本版积分规则

手机版|无图版|站务联系 | 商务合作 | 平台公约

信息产业部备案:苏ICP备05014191号-1 经营性ICP许可证:苏B2-20110445 苏公网安备 32060202000307号 © 2001-2019 0513.org All Right Reserved.

投诉争议 技术支持:第一互联 GMT+8, 2025-12-13 20:20 , Processed in 0.789277 second(s), 13 queries , MemCache On. 站点统计

快速回复 返回顶部 返回列表