- 阅读权限
- 255
- 精华
- 最后登录
- 1970-1-1
- 在线时间
- 小时
- 主题
- 好友
- 相册
- 分享
- 日志
- 记录
- UID
- 811356
- 帖子
- 0
TA的每日心情 | 慵懒 2014-6-28 08:44 |
|---|
签到天数: 9 天 [LV.3]偶尔看看II
|
! ~! ?1 B4 N; Q8 ~9 X5 d) e
7 `( O- U$ \) c6 C e* g
" Y. w. K" q0 A- M2 {; W9 Q印象水仙 × 精装房改造
2 b n" F- n- e6 v4 x! a- j W7 Z- v+ a) c9 J
) P" H5 _# [) K! {! l
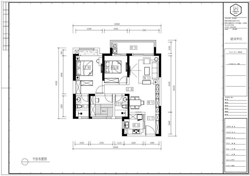
面积 // 103㎡
8 |6 t) L* m# ~: I6 s风格 // 现代轻奢
1 J. { D5 J0 e0 I户型 // 三室两厅两卫一厨‘* G% `' S: y2 E6 m/ S* c9 X
软装设计 // 印象水仙
6 _ h% K$ X, @4 z" I施工单位 // 印象水仙) {) i9 `; i; a
; i! K# P2 A4 b' K" M
) N( |% P4 ~. i8 i- r, C; z
+ ^/ b% v" W9 \ w, c6 s8 b- O5 g7 M1 ~0 [' J/ |
1 T. R/ x9 x. O/ `本案是一套三居室的精装房,屋主希望设计师在不改动空间结构的基础上,利用软装提升新家的设计感。除此之外,屋主还希望新家的每寸空间得以充分利用,强化实用性。
2 f5 M' Q, }( Y; @) J
3 L2 u+ N9 q7 a% M/ z0 k v% E) [; a0 E, F+ Q+ T
对于设计师来说,即使既定的精装房户型布局如出一辙、不便改动,但通过设计却还是可以变成专属于空间主人的“独一无二”。设计师的理念也恰好与屋主不谋而合,也正是基于这份默契与信任,屋主将新家装修全程均交给了设计师把控。
' [1 t3 y3 H/ r# [" i K$ t. K! `- J; s, o. f! S$ y0 A" Q" S% X
8 P/ h0 ~* h7 d" r8 j
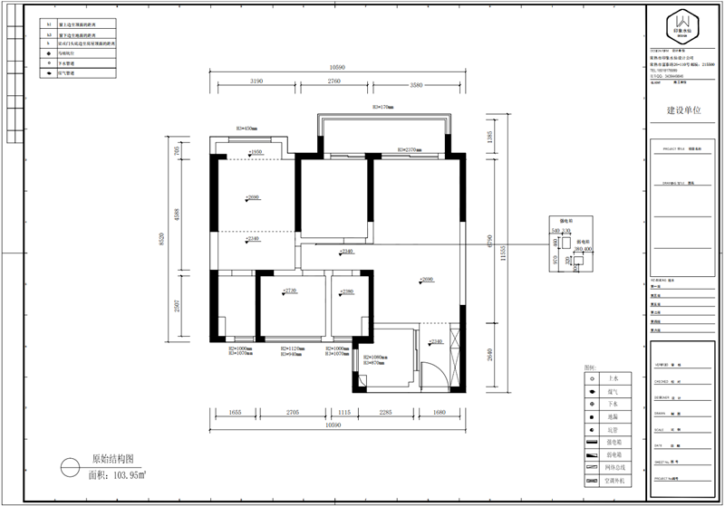
原始结构图8 Q j* E4 z2 ?2 ?8 d
, D1 W B, G- T$ t
2 k4 u9 T0 {+ i
0 v9 k1 Z4 H$ U( q) V" C* K' H8 ~( a3 k
' g/ ?7 o& ?: S! i
平面布置图
- a2 l( G7 q6 ]$ Y$ T- A2 W# d6 Z" s) L/ F: w; `: l
+ A1 n& S7 x2 s# H7 ]
! q* i" z& f8 ?9 Q& u9 H
+ ~0 P i" }3 Z! D
) F" X# ?+ `. v* K% G4 `. L1 X在本案中设计师利用硬包和调色漆来改变空间基调,软装家具也在色彩及材质上为设计加分,而定制柜子既美观又可以增加收纳空间,再加入少许配饰点缀,专属于空间主人的奇妙宴会便开始了。0 E0 p2 P! o4 A* t$ k1 P! Y
8 u: |. X$ C. v8 u0 G9 E3 R8 B( J8 q" s) Y1 w4 Q% i( W- p
& A$ Y2 d1 O2 P7 E7 N5 b! O( E
5 r+ ^1 o7 p$ \改造前
% Y4 b$ s2 p2 c( m6 J. v1 b* x6 F: R F
$ p: O: V% G( u) H) l8 d( H6 Y
9 N3 `8 X/ H1 X
. H' v" ?0 o: Q; J8 E& J6 Q$ ^
: z9 f; t# i& g/ e; l8 v
# d4 a% ^% o0 `7 O4 T- @# E d. u
( F/ @! F: l+ m% c
# R& u/ z0 `- H" @+ V8 y2 i, V" D
3 q' w; J) U" Q: d. s T7 i% B
- {; P- Z, l I9 E- G! P; }/ V, m. G1 P
: J, y; _" s v& I3 @: M
- e- [; R9 D3 X; g3 S8 e* o7 q5 c2 a7 O. V, n* i* N K8 }- |" a5 U) v
改造后1 |& [0 c( C6 Z; c- R1 T: L5 C
! P# k" F( d: I# h9 H! K Z+ E' _' y5 e9 a, L% D- b
Living Room
& @! i" Y, F& c0 x7 f V& T, F# u# ]7 R* S1 n, z
6 A$ Z* s$ [- y9 Z
5 a6 Y# n5 Z- O& Q$ b& ` c
" P$ D" A. l, Q9 n2 s
. {$ _ d) y2 J4 H/ ?# F9 {0 W
* v5 C* x" `4 f5 d. e
8 m! @3 Z$ ?: _2 l) M/ f4 t
$ S; g' R- F D0 m6 G光滑精致的米色皮质沙发,空间每一个细节搭配都展出优雅的气质;金属、水晶与大理石碰撞产生的一缕奢光唤醒了沉睡中的我们,每一个微小的细节都倒映着生活的美好...
( E: z+ T q5 v) A. h4 X
9 W/ I4 @+ b5 }& h; ^" T
/ @& q6 @7 O: J v$ K- }0 h7 U
* u3 L3 a" h* e0 v( ?5 A" p( {) y2 N* Q
5 B, h/ d( B% M5 W1 y1 t
1 w4 t) p: U# z( g0 D8 K作为休闲空间,客厅自然需要主打舒适放松感,因此设计师为背景墙披上温和的色调,配合精心选择的金属线条,整体和谐地衍生出一种高级感。
! T9 x) V' V1 U( N5 j+ M# O
0 i; d/ a9 \$ C5 m+ H6 ^7 J( U% u) ^7 I2 h) X% b4 @
Dining Room
9 e- [8 h9 x6 k& F2 Y) [, u
4 _1 n) ~1 k D7 |
; y( p3 j3 ^3 H4 _
; w- |9 a0 V) f% k( l# y: C
1 _* ^7 {8 d$ f7 Z1 K- a, r5 G
9 Q1 h" y; F+ a7 m, V* r B
餐厅空间的餐桌椅不一定就要墨守成规,造型、色彩、材质上均可大做文章,整排金色吊灯设计拉伸空间,两幅艺术壁画点也强化精致气息,一整排深色柜子更是凸显出一种满满的高级感。
7 [2 |2 K# E; I4 I2 l4 I6 U. t, V' a( R) Y0 u0 v
6 u- D$ ~0 N$ L$ u9 A
Corridor
" M+ @: e) D& v; ^. x3 P( x5 X* A1 ^9 B; ^/ s9 h- j# O
4 k! O) Z2 R: ?( ?, t
& q6 s% ?* ~4 v6 F7 ~- ^- m9 i2 P9 j1 g8 G/ m
8 F0 H/ A0 L' G4 L) J7 K. |* y: N. [- z灯光有时候也是一种“调味剂”,过道的优雅气氛便由此渲染,搭配浅色调空间气质也得以提升。 {9 y0 @/ w9 U5 u r) L# h
$ T" T# `2 y$ q5 N9 o( P1 o* D
; U& E/ k/ r1 X m) j- c& {Bedroom1
- Y9 r" z1 X6 t: M$ {% b
# N- F: m8 }) @0 n- f( |4 Z; o- T$ E$ v0 ]
5 _- l9 V7 S; w. x! n" ]9 l; o6 |2 Z/ g: I* c# ?
5 g3 p0 y) X/ D- ^
为贴合屋主夫妻喜好,主卧装饰少之又少,但因为背景墙金属线条的加入而避开了千篇一律,慵懒意境由内而外发散开来。
6 |, O5 w) T. P' p+ X5 @4 ~ Z. J' L& g7 p: n# o. `; M
- r! L6 O: h9 w) \. v: P* Y
9 ^2 ]: ~# v" C3 |2 @6 X
' \( U2 E. p0 h* u9 \3 M
3 m8 P% c2 u! c( ]$ |
用家具软饰平衡整个空间,使之给与业主协调舒适的视觉感受和居住感受;灯光的点缀让主卧不经意间透露浪漫气质。; K# U$ Z5 ?% \9 G2 R5 Q
3 }7 ]$ B( C! @- T# }0 q: u
( s$ y. r& P' U, h1 U7 z, Q# _0 R& N
& k2 |$ c5 V- ?8 {
( Z6 X X) `% x5 z
: h/ _. B5 \! e1 i* r' HChildren's Room 7 f' ~7 u _" M9 t
* R- u/ {* A2 _; b7 e
6 E5 r& r) w# q! e3 Y2 h j2 ~# P
) y1 u9 Y8 N- R% j8 J4 ^$ H8 _! E/ ~$ z
; g3 }2 e5 R! f' x, y' P, x! F E% p* |! s# k/ I$ B" ?
女儿房有温柔清新的少女感,床头背景的石膏线和床靠背给空间增加立体感,再以拼色窗帘、射灯和金属吊灯提升整体质感。! |- E/ V( W; j
( m, v n D2 `: j& I) [; j0 M w% ~& O! m5 `: @% C
Bedroom2 7 } {! i+ c7 o/ N" n' H
* I$ K Y1 U: ~ h/ ~% k
+ t7 ~: J! _* L. `
$ s* L' n2 W! J+ ?3 W- R) Q. x$ T5 ^" v
- Z. S2 H/ `, z1 x
次卧最大的功能就是储物,灰白拼色的书柜和橱柜,以及榻榻米下都具有大量的存储空间;这间朝北的房间是给偶尔来居住的父母准备的,同时为了提高空间的利用率,也兼具了书房的功能。
~* Q6 d% t& N1 P6 {1 r" L5 x( s) o3 n- U
- j: x/ s/ n0 O1 _; k p" W* ^南通0 |
|