- 阅读权限
- 255
- 精华
- 最后登录
- 1970-1-1
- 在线时间
- 小时
- 主题
- 好友
- 相册
- 分享
- 日志
- 记录
- UID
- 811356
- 帖子
- 0
TA的每日心情 | 慵懒 2014-6-28 08:44 |
|---|
签到天数: 9 天 [LV.3]偶尔看看II
|
: q4 m4 t/ y& m7 b
+ w0 _# J& l% w/ I7 p※ 面积:142㎡: H% [ A( t( Q' k7 q
※ 风格:现代风# Q& b, ^7 ~: u2 r+ f$ ^8 b
※ 户型:四室两厅两卫一厨
+ [7 |2 e# a/ B※ 硬装设计:印象水仙
V- B/ S% X6 N※ 软装设计:印象水仙 2 I+ ^" Y0 U3 B. W( ~; {
※ 施工单位:印象水仙 2 h8 a }. y) t& a O: K5 {% w
& L* M! N0 R6 F. ^, ?$ I4 W! P0 m
3 m+ L) j( H6 }; u: [7 S" n$ A# w2 V/ l
本案是一个142㎡的四居室学区房,空间主人是非常幸福的一家四口,男女主人都是非常顾家的性格,有类似的爱好,喜欢看书、收集及下厨。整合空间主人的需求后,设计师将风格定位为屋主偏爱的现代极简风,空间布局也做出调整,以满足一家四口的生活理念。7 ?; Y* Z' \! V( Q+ l% V' P
# N0 M, _+ x6 p! n: P4 V" n) r6 n
结合设计感与舒适性,在配色上设计师选择了较为柔和的色彩以避免视觉疲劳,装饰也删繁就简避免累赘,但因为设计师在材质上的用心,并不会觉得单调,反而将空间层次及设计质感诠释地恰到好处。
e/ d8 v) @5 Q8 p
# P" O# T; a( d
- P4 b) d7 F& T% A( i% e/ U6 Y' [9 W8 d6 W- M1 d5 @
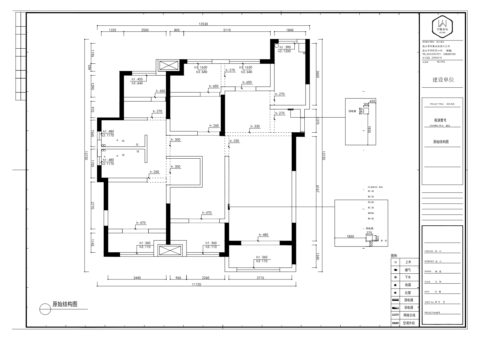
/ 原始结构图 /: f! _( Q: z; q& e+ N3 j, @6 \4 \
" D2 ?( \" ^, Q. s! |
& Y# ~* e" l" V2 Z5 b' C: L" j/ I. F9 ^+ y d9 {6 ^
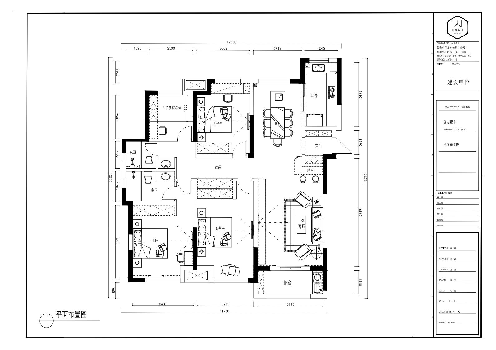
/ 平面布置图 /
`& n- v* I, Z( }( }! d
1 M2 j! a8 h, f: P6 d5 Z
, }9 B( q6 P. W' T; o& d, S* ]% y3 K+ S$ o$ ?
/ Living Room /
! |1 Q: G" H0 H; T' j■
! C/ Z5 R5 n3 @) B: q: K {$ o6 N
# ^$ y) Z" i0 F* k. t' p; p4 j
7 g7 C' ]) [" Z, |! a( b1 _' y
+ T! Y1 _: s' w
( v7 Z2 ^5 d; I2 ^( c0 ~
m" B1 g# L3 C7 l! t- |2 @
客厅中的层次感,在第一眼中便能分明地呈现;木质的电视墙与地面相连,黑色隔层贵上摆放着的奖杯,意义非凡。红色单人躺椅搭配白色毛毯,使得空间更加温馨;灰色皮沙发的慵懒情调,把简单的陈设衬托得风情万种。. P0 H8 W( H( }) I
6 y3 H( m4 X$ a& G0 Z9 d* K
3 `) m ^$ ?- u5 c1 |
+ h$ H: h+ l: N# }/ r
% n+ l# `( X/ \( U4 e# N# X9 x
$ v2 N( ^5 l+ z# C整体来说,客餐厅作为公共区在住宅内占较大的占比,所以空间氛围的打造尤为重要。
7 ?& B( @0 g( \ p7 s. w2 Y7 |' x' ?" T$ _4 ^4 E# G
9 H* W: X5 p5 U5 D2 M% s
/ A. b5 M! m; C* L; W3 O" Q9 T- N# U
; Y+ w9 A7 I: ] D/ Y3 f
. H: H) p9 w* S: Q$ r7 z( S
吧台柜的设计,可以让主家在这里看书、喝咖啡、享受甜蜜生活。( r) y! k+ S8 D2 ~$ q6 g
' c# ^* Z5 j5 ~ Y- F* |
6 E$ _2 B5 u. c, G( h6 |& S
- b/ }7 y: g' a; x0 V
/ Dining Room /+ K( h1 q9 f3 j* ^: e/ `& d. q
■
' C6 n2 |% k8 ?* M
" g1 A9 m" U* Z" V2 l3 m
6 K' s0 O8 ]6 H& `8 n
2 k6 V9 A9 c6 x& t1 u- L2 {2 H" v
+ {0 K0 S3 s1 ?
# d2 B( K2 Y3 E4 [2 ~8 M
餐厅格调满满,闲适的周末,叫上三五好友,一边吃着火锅,一边畅聊人生,再惬意不过。
8 v m# u0 R8 n3 @/ q. u
2 Z1 T; L! b0 v0 P4 ?
# R* ]; {1 F) Q- ]8 ?
* Y9 V7 l ]/ r8 t岛台的设计在实用方面合理利用空间、赋予餐厅西厨功能,在设计层次则可以营造出一种休闲轻松的生活氛围。" R* _# o0 k9 j! K
; N3 E% }7 d# `) n
" {7 r7 W. V9 j
$ ]9 M( b" v1 Y9 ?# g T
2 L# W0 A4 Q5 i
, W8 g* _& n* Q7 H/ Kitchen /
- E0 \" u& r. K5 o% Z! I8 H■
" |' V% x! G( N, _2 `6 i7 X; J% K5 }- a6 f
6 o1 Z1 y8 x# h
1 X. G9 h% F* R2 n( E, K" B* l7 M
宽敞的空间对于爱好美食的屋主来说是最佳的料理环境,整体以深色系与木色相称,干练中又不乏格调。
2 U/ H# Y6 j% [/ E- x' R7 x+ [' q$ m$ d4 R* _# R, l
/ Bedroom1 /
]& I, f, U$ e: M$ f1 ~# e" |1 h■
* Q" r$ f( |/ ~% s% ~/ J. }
( f$ _0 V* X V$ V# e% |/ [
, i% B- O1 t" x/ ?% r1 I. v1 Z
; j: N o' D+ C9 r% r4 }! {- h主卧是夫妻俩的私人空间,采用低调的木纹色温柔不浓烈,静静感受色彩赋予的空间魅力,搭配黑色壁灯、灰色床与床品,时尚不失简约;大窗户良好的采光为室内营造出洁净温暖的视觉感受。4 h4 b; y) H3 h7 y
9 v9 _0 U9 a. r6 ~6 a
' ]4 M6 k$ Q% b2 L; W3 M, J( m$ o H; H' ?+ c, o# D
/ Bedroom 2 /
0 T. ]1 s* \$ D4 o7 w■
) ?* r, Z4 z4 k- E0 z8 U: Z) O# ]# p- Q$ p- A
5 f: D# K3 q' q" Y2 F8 C: Y# H0 r" ^- r
这个房间是给父母偶尔来住准备的,色系还是比较清新雅致的,考虑空间充足,按摩椅满足了父母对生活品质的需求。
0 e9 i" r+ a6 ~& a8 s) c4 B) @' ~$ L) U7 B. U3 Y# o T/ e
/ CHIlDREN'S ROOM 1 /
1 Q9 N+ M* x$ R# ^; v* o$ C3 l■
6 G2 W7 {3 ^6 Q0 w+ N( O
* G$ [7 ? }+ V, U
# A, E/ m8 x, `. z4 _& G# z3 X0 C3 Z$ i4 ]
榻榻米则恰到好处地为孩子房带来悠闲感,没有华丽的装饰,以黄色为主色调,温馨俏皮,给人以舒适舒心的感觉,非常适合大儿子在这里休息和学习。
: x9 Q* D8 k9 r6 Q% n" j, Y0 C& B8 m5 }
3 v' ]; e: o9 N& p. U2 e/ CHIlDREN'S ROOM 2 /6 q+ Z( ^4 j0 i9 O% }
■
- \# N& N0 h2 A% W7 w$ [
/ }" G& P b* f: t* G, ~4 }6 \
. D1 B! `# m+ u% w
# q% w) N9 b. H考虑到小儿子的性格,设计师选择用蓝色卡通壁纸装点儿童房,童趣十足,特地将飘窗改成的学习区也让儿子在这里可以享受快乐的课后生活。
( W$ T) X! W2 ]# T0 T/ E1 o! l" ^
/ Balcony /
. M6 |" v% @7 F, M6 A% O2 R■6 u, j9 J$ p2 b6 R: z9 l
% N5 c# ?. T( S: j; V2 ?
) U' d q" G5 |6 J9 T
- S, l: O- H& y1 W
/ Wash Room /
0 d; p5 v e" a |/ n/ t# M% Y' }■
. `: ~4 L9 x2 v+ J1 k) ]) L4 y. j5 S. k9 n3 A# G! c$ c
: G) O7 w9 R+ p% ?8 M+ |+ e! r+ }8 A: T
卫生间设计师提炼了经典黑白灰将简约发挥到极致,实用为主,以打造高性价比。0 K S) B' M4 t& x# s' k$ a2 S
1 }; a% ~/ h1 Z" b8 A% h, n K
* [# ?. X/ B8 w% `: z' ~
+ ~; V! N3 B% g( x' ?/ t南通0 |
|