- 阅读权限
- 255
- 精华
- 最后登录
- 1970-1-1
- 在线时间
- 小时
- 主题
- 好友
- 相册
- 分享
- 日志
- 记录
- UID
- 811356
- 帖子
- 0
TA的每日心情 | 慵懒 2014-6-28 08:44 |
|---|
签到天数: 9 天 [LV.3]偶尔看看II
|
“一次偶然的相遇,也许是一个故事的开始。”
0 {+ j( |/ C7 f" p; h
7 K" { v# v- v3 I7 p
1 E: _: K; ?8 G
, y+ Q9 M0 _( R; v' L空间主人崇尚有调性,有品味的生活方式,在一次次与他的交流中,设计师也深深感知到他简单纯粹的生活态度,这恰好与干练利落的现代简约风不谋而合,一如设计师对屋主的印象及理解。$ H: }4 f" R0 \# S
3 P4 D& V" [% a7 A# h# |: {! ^/ ^; G$ n4 J$ w$ a7 K* n
本案是180m2的顶楼复式,是一家三口的改善型住房和学区房。因为业主一家只需保留三个卧室,因此设计师进行了整体的改造布局设计,将一楼设定为公共活动空间,有一间卧室做为客卧,留给父母或者朋友来住;二楼设定为休憩和学习的空间;三楼属于活动区,开了两个天窗,采光极好。+ w( ]) I- M% O6 ]) ?1 z
+ H$ v' Z- X+ n/ n$ ]% R
9 m) m$ m& g! v2 I# R
) r* k0 t# j* x( r& C) C1 ?7 v$ s6 |/ r/ L) W
面积 / 180㎡! u1 O0 z' {& ?: w$ a; `1 Y& \
风格 / 现代风
9 G. f/ @ o. V: p2 b户型 / 三室三厅两卫一厨
5 z% z* ?# {6 F6 b8 W' }硬 装 设 计 / 印象水仙/ M3 H) y5 i' l" V" m, k2 j( ?
软 装 设 计 / 印象水仙
" ?$ ~( i2 s: I+ A$ V* z: c3 v$ ?施 工 / 印象水仙
4 h; U# C/ T* F' n$ ~. ?4 |6 j1 v. Q# `( P8 u1 o& t1 C- p, w
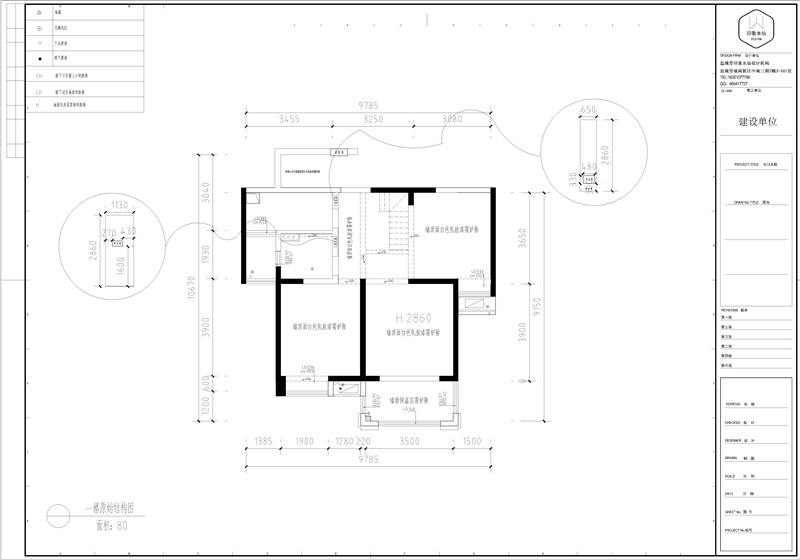
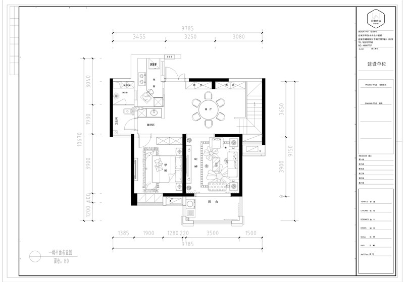
一层原始图VS平面图
% l; ?1 Y& |' D- w8 \! e: c, P3 V
! b4 ?1 C( h6 y& H5 n$ ^
4 A( M8 L7 \' V* Q6 I
) w: j+ P9 Y/ M# m6 n2 n& X" q
2 b$ X1 v" h' i8 K" ^5 G7 }2 ]& l3 J7 `- Y- B; P
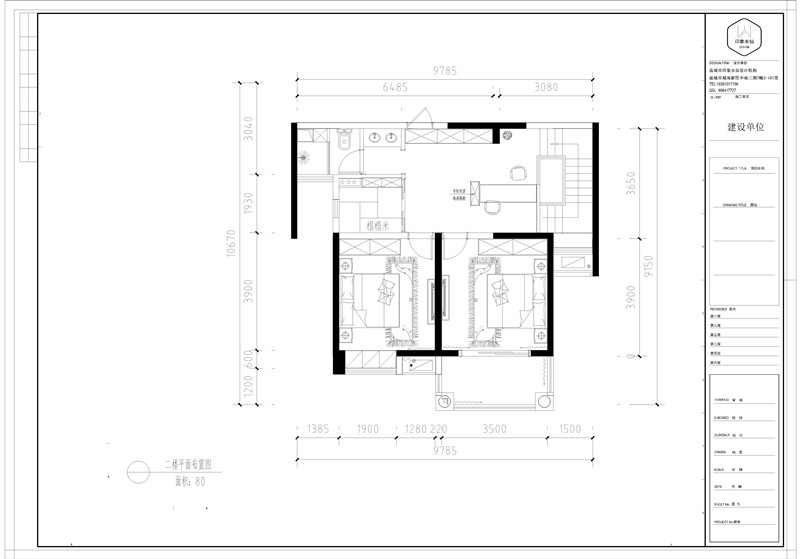
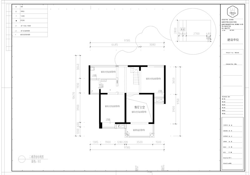
二层原始图VS平面图: |- k# ?* c- _7 S6 ^) n8 v$ D
* O5 M# M* G! G. P @. Q0 M
( n) } [6 P# X4 `2 S' ]
% Q( M: W) ~: I; Y0 u$ G
: @4 _: A1 k2 f' K
/ p2 B& T' Y2 Y3 `4 w- O* V
1F: _: v2 j+ A3 A7 I
HALLWAY$ }6 X- f0 P$ U& U/ q @* M
( s; d+ T; ]0 R5 S; M7 E, w' Q% }) S7 j0 q
1 S4 m5 L8 Q2 o9 M4 q
* I% E# ~9 h0 @! m x6 O干净利落的线条,黑白灰色打造出了高级的空间感,节奏简洁明快;少许装饰物和大面留白也与过道装饰画相得益彰。0 w( ?( H" t4 y* y! J7 y8 X) C
4 m4 M/ }' o, {. ~* [
1F6 r! Z7 A( Q* s$ L6 X& J
LIVING ROOM8 B. v P$ }# @9 G7 W% C
+ S! Q& b8 I! R7 l( k
. Z) g( b% d" Y- _8 C1 L
# k6 ]$ c8 u# A: } o/ }$ c5 l
% A* ?0 \# I0 _$ O
5 w) G- F7 c1 M客厅也是从简约出发,沙发背景墙大面积的浅灰让整体氛围趋于平静,三个几何挂饰更是显得别致个性,绿植为空间注入活力,沙发上的抱枕及茶几上的毯子,少许亮色的点缀也让整个客厅显得与众不同。: I) O' c0 I. n
! {6 H. I; e7 c1 c6 q6 H
$ L. \/ k1 R8 @ e4 T& J
3 t' r0 k0 B- t& J3 K$ C7 t4 Z) `灰色简约的电视背景结合不规则柜体的设计,自然丰富电视背景墙层次感,也与沙发背景灰色调形成对比,让空间质感更为柔和。! j( f+ ]+ `- P4 C) @; v1 f* i, N
# P9 X2 c ^3 S- c5 m! p( D
% d- A/ O$ w% K; e: D: m4 B9 y
6 o$ f( A) I1 h
一眼望去,整个客餐厅在硬装上都非常统一,软装均选择了线条利落的单品无丝毫累赘,以强调“简约”二字。. p+ E$ \. {+ x. d8 R7 \9 T, m
. C( K6 Y; Z: z0 }5 U# p+ R" c; Q. T2 e6 U* t! \4 ~& U/ l
1F
1 L+ `9 f4 z- v+ a8 P. s9 RDINING ROOM
3 K0 C* v, H# l
6 I: q. i, k! d% q" c. ?; X$ p; S2 @: _8 z8 W2 e
$ r' k! y* G2 {( O' ^
_$ M0 ]/ o1 W# ]) U3 Q
& Q' @0 |& e' j$ X& K9 _+ |
4 ~/ w2 N5 l2 m6 M! M, M干练简约的餐桌搭配上圆形金属吊灯,直线特有的秩序感与延伸感跃然眼前,圈画出理性却不乏温馨的用餐空间。4 U- R7 C1 |* k5 d5 l/ J
: ^+ z, B: _# W+ r$ E! Y4 f
% d3 j: M8 {& |: X3 s
* `( V/ A+ R# M
) O& f) I2 z: Y# I; C7 L9 k1F! v z# N' o' I: O0 y+ D
KITCHEN% L6 L) J* e- J' C7 _0 |) j5 i$ p8 T2 F
R! D/ e" I+ G$ F7 f5 d
+ d2 e! x/ b" U3 k6 s' L
# E0 J0 q3 `; w6 s5 Z! }: ]& x$ ?
7 c# @( |% }3 C6 @( r2 q, K& b厨房最注重的是实用大气,墙面选用爵士白墙砖,与拼色柜体相呼应,让不大的厨房在视觉感官上更为敞亮舒适。
J( @' e w5 e# a4 z$ f& r% N! ~) R) H7 w9 P% C$ i
1F5 ]5 X9 d2 @1 c5 I
BEDROOM 1- C# K0 B* m" ~& L3 g
8 u n; ~0 B" Z! I
+ J7 f) z* t: y W' W |% Y
5 E4 n4 C- `! [+ a2 w卧室,秩序满足卧室主人的喜好。一方天地,依旧灰色,打造简约素雅的睡眠空间,床头选择富有意境的壁画,亮黄色做点缀;深灰的大床,纯蓝色床饰做点缀,平添空间质感,给予居者一份随意的轻松感。$ j1 @2 A! x- V- F; G+ V/ ?8 V
1 ~4 z* \- A# z
8 I) l9 W# N( k( Z2 U- {# c
* n3 y* u0 |7 ~" pSTAIRS, w) ^ U b" ?, h8 P' P. B6 L
1 u5 \, v2 [7 ?+ ]
% a0 X2 A% I* i/ v& J" G8 Y! W# m7 v* n# p
地面选择爵士白大理石,搭配极简风扶手,光线的折射整个楼梯空间,满满的高级感。
3 b8 r2 a9 A8 E
- W9 S. R. X# Z; a
) Q0 r; a3 W! i9 x, Y
) V6 u/ T; h# g5 o# S% ?! V2F" |" @: y0 l5 k8 y* I, b* ?- @
CORRIDOR
# k! N+ ~0 S: W# ?. b( H
5 [3 Y0 a' p0 F2 N% l
2 c: Q- Z, I* A7 ?
' K3 I. D1 B2 y$ U2 k8 b% ~过道休闲区域,无论是安静的看书、发呆亦或是小憩,都能让繁琐工作后的主人寻找到出口,追求心灵的那份宁静。6 T$ {: g% V$ s v9 w
( L$ M3 x& b& d" T% F
: i$ l) O# }3 s A, k5 n" h
% z- r5 c3 F2 C) G+ G3 @3 o1 O4 L
衣帽间,整壁的衣柜满足了主家日常衣服、包包的收纳,搭配简约时尚的梳妆台及可爱的座椅,结合一抹亮蓝色,让空间变得更加个性,极简风的玻璃移门,串联起空间动线。
9 o# T# u* K4 Y1 n6 r; D: x Q3 G) M J7 U
0 Q: L. _6 C! D( O
; ]: ?$ l+ P! v0 J4 \& k2 z
3 W; K/ E. ~9 m. I6 ~( [5 ]2F+ W" a7 h1 s- m3 S" B
BEDROOM 2
# ^( f! K: T! ]
; M% ^7 g( i g7 L, o/ {
% Z! n* q. Y$ e9 ^/ [& U5 k8 O; @
2 p# u$ w/ a, _/ b# |* h为梦寻一处栖所,安放灵魂与自我。
* C4 K \+ G/ |( y8 x8 u5 S7 B7 v1 y5 w3 R$ y4 E8 h; {9 M$ |9 B' m
主卧对于主人的专属性、象征性更强,床背景选择了一副横版艺术壁画,搭配两侧对称的几何吊灯,灯光下,纹理与光泽并存,着手细节,让整个空间时尚个性而不失温暖。
- P3 x% T' ?6 P) g) n* \7 q8 U7 L3 V& o5 P5 \+ M
4 e! G! d2 d p7 V) @* V' A
; v8 I; f- g4 e; V* a) p
/ M9 p9 t- } n3 J" R7 u% N# B, j
2F
/ n# ^/ w+ k# M8 fCHIlDREN'S ROOM; w, g G1 _" M- |/ i2 @
! {; T0 G! M& z8 o- m( k8 n! \
2 X! x) P( h. K
0 ^" a5 Q0 { Q* G/ j% j. ~; R! o
当活泼的亮黄色遇见冷静的蓝色,儿童房便充满了积极向上的味道,空间布局细节的设计也承载家长对小朋友满满的爱。. [$ c" J. l4 Q: ^+ K
; c1 V9 w# S1 |
$ s. |+ n6 R# C( M3 ]
% n, `, y, T* ?, Z, ]南通0 |
|