濠滨论坛

点击扫描二维码

查看: 47941|回复: 0

印象水仙 |承蒙你出现,Hold tight to me,130㎡现代风

[复制链接]
  • TA的每日心情
    慵懒
    2014-6-28 08:44
  • 签到天数: 9 天

    [LV.3]偶尔看看II

    发表于 2020-1-7 14:55 | 显示全部楼层 |阅读模式 来自:江苏
    5 [( h# G& n) E( X
    + U$ a( g4 ?+ d8 G% v  e4 n% b
    FB0A9921_副本.jpg
    : J- H* ?8 i. `" s1 E) z) j* e& D
    就这样在午后,
      r; C' {" Z  L8 S' B0 A静静的贪婪的,1 ]8 |+ Z6 f& b5 |8 \! B  W* c
    享受着时光流逝,
    # @7 _1 G$ X6 J- `0 z是一种淡然的幸福。; U/ y2 d) \7 }+ X% D7 R

    . l( A) F2 a# S" x/ f  p" `( z+ x5 B
    GROUP PHOTO

    + ^2 @2 j" M) K) |! _: b
    {   合   影   }

    + j4 f) G7 z4 i$ i$ T# `; _3 o
    FB0A0016_副本.jpg

    4 }( V9 `$ U& I8 L
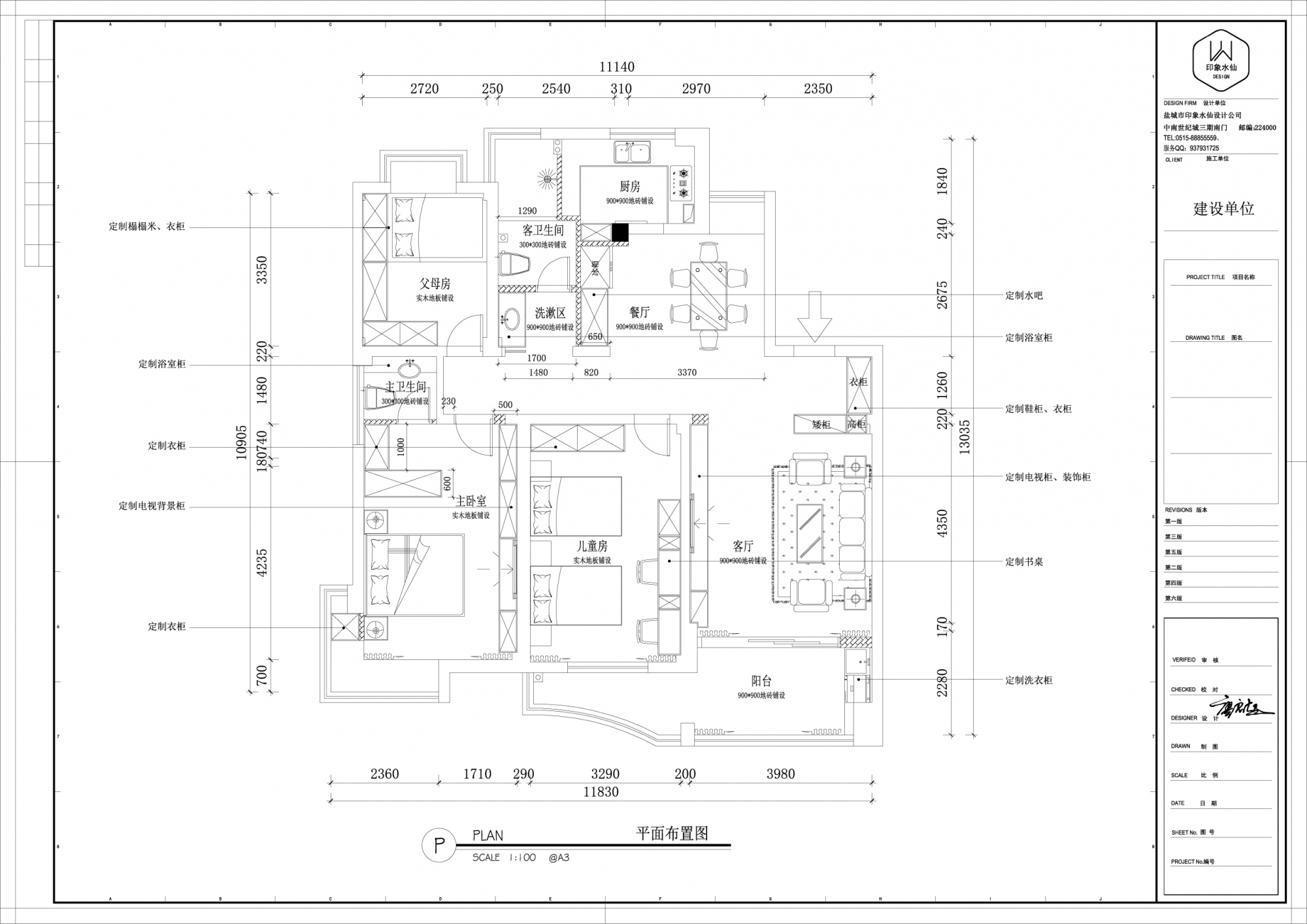
    户型:三室两厅两卫一厨
    风格:130㎡现代简约风
    硬 装 设 计:印象水仙
    软 装 设 计:印象水仙
    施          工:印象水仙

    1 _4 E" ~3 R0 d' M9 I  w
    dcc352026149851933491d03d2b0a9c.jpg

    ' k8 S% {4 k  }+ i/ D( k
    32174e89601c137e7c6df4f4a0e3d40.jpg

    2 q. R5 |5 G" o' B
    // 业主需求

    ! Y- x2 J* ]9 ~- E4 k2 K! c
    本案是四口之家,屋主希望设计师以简约为主,空间要时尚不失温馨感,也期待设计师给出不一样的设计方案。

    * ?  I# i% W# O
    // 设计灵感

    6 v) o' [, V& Z/ j" R
    简约有别于简单,简单是空荡荡,而简约是恰到好处的自然,每一处设计中蕴藏的小情调才是灵魂。

    8 G  x2 `3 U% h& ?5 j  d( R
    HALLWAY
    9 b* R! p6 |' I9 [6 O5 ]( n
    FB0A9907_副本.jpg
    ; X6 R! M- o0 s1 I5 D
    进门处设计了丰富的储物柜,客厅方向通过矮柜阻隔了客厅与玄关,避免从入口完全直视客厅,提升了屋内的隐私性。
    , L0 @2 n3 e% Q3 y, K! J
    LIVING ROOM
    7 W6 X3 K' n+ A4 D1 F
    FB0A9928_副本.jpg
    - `& {) z" z& f/ g, F" J! r0 S
    以质感、清爽为原则,整体布局简洁有序,摒弃了一切繁杂的装饰,让回到这片空间的人能从快节奏的都市生活中抽离出来。

    ! N# p" E8 l( c
    FB0A9840_副本.jpg
    1 e1 {: x6 y& ^/ k
    暖灰色的大面积铺陈定下了空间主调,深棕色皮质沙发包裹着米白色布艺坐垫,深与浅,冷与暖,既融合又碰撞。

    8 s& \5 r6 z1 p' m% p
    FB0A9836_副本.jpg
    1 F7 R  H+ O2 A3 Z
    阳光透过窗边的白纱变得柔和,给整个客厅营造了一种朦胧美,日常生活中的种种小惊喜才是滋味所在。

    8 E0 Y% \  k) W# V9 I- n+ W; K4 _
    FB0A9852_副本.jpg

    ) h: d, p( ^. v, t% o# \$ `
    FB0A9872_副本.jpg
    ) Y/ W9 v% H% Z3 V. J; w$ f4 e% D1 `
    电视背景选用爵士白大理石与柜子相结合的设计,一排电视矮柜与地面做了悬空灯带设计,更加简洁。
    - F- C1 B2 H& D4 H7 b' H
    FB0A9864_副本.jpg
    0 ~6 N  r# O% m7 s+ V$ n: G
    FB0A9860_副本.jpg
    , J& E# V( d% f5 h) W% @: A4 E3 p
    DINING ROOM

    , ~* \" q$ r9 }, r( [, F FB0A9917_副本.jpg
    " _) O( c/ k* V6 t; L3 j* z不要小觑,这每一日的平凡
    # a7 m  l. i: t6 c5 c; [

    # C0 U) w+ M8 B9 q; a4 l1 ^3 Z% T' J FB0A9902_副本.jpg ; W% H' S2 M# ?( g% V. w

    9 m) @; O5 G- A餐厅集美观与实用为一体,以咖色与灰色为主色调,再加上橘色的点缀,使得空间充满摩登时尚的气息;借用餐边柜部分空间做的大理石台面,成了业主烹茗煮茶,方便备餐的区域。. q" V9 e+ t3 N% g

    - l1 z0 t% n7 P; k! x( | FB0A9945_副本.jpg
    * n: ^) W) a( `8 j* o
    ' B4 y" I7 C, T: A  \. N生活的仪式感
    0 X2 c9 d  o% ^# C: d或许就来自于餐桌上的小花枝。
    " e% W( m: ?. {* J0 T5 B3 t# d) D
    FB0A9915_副本.jpg 6 o( k" m" E; M7 M3 N+ d1 N4 y& H

    : M3 g2 s2 S+ \4 z+ e6 d' V* V; aCORRIDOR- }2 }. z! g' U

    ! D. G- K/ [% M4 `4 @: B FB0A9890_副本.jpg + d; B2 K' Q  f  y) ?% Q: Q

    * r! @+ e# W' y7 j1 b3 I0 j, ?移步换景,从玄关、客餐厅到卧室,景与情都有着密切的联系与变化。
    1 H# |6 s; I- n2 h1 a7 l" ~3 e
    ' u' g5 U3 I9 Y' s3 P. [+ V$ |kITCHEN
    # @. l% a3 h0 ~+ l9 y1 |7 M5 y% a& {- Y1 n5 G6 `/ Z+ R
    FB0A9937_副本.jpg
    # B& a- T2 w# A% x- t, l
    " v. b. q) O' e厨房空间采用U型设计,较为宽敞,设施设备一应俱全,多橱柜的设计充分满足了烹饪收纳需求,现代风格下整体干净整洁,线条美充斥在整个环境中。
    6 Y- U: r" L% u1 w* L+ ]. c7 M! u/ e, `7 h$ s" ~& \4 `3 y
    BEDROOM
    ! Q. K7 `5 h: _  l0 \8 c1 J* p4 P" H9 P. O* |! |! |* W
    FB0A9953_副本.jpg 2 K1 P% p+ V- w9 Z

    9 Y% C; B" m# E8 t* V) T0 `  \: n3 N主卧色调比较丰富,床背景的咖色硬包做不规则分割,窗帘以蓝、黄色进行碰撞,让人眼前一亮。' t5 W6 p0 k, r
    - ^* l& W# [* N0 p' f
    FB0A9954_副本.jpg $ C, l# a3 M7 S5 u+ Z

    , I  }- ?3 V/ S) b- }电视背景设计了一整排柜子,满足了主家储物需求,空间线面结合,带来强烈而又简练的设计感。1 Z" j7 ]4 z  m

    4 i3 [# V) k, x3 N% |' K' ~ FB0A9956_副本.jpg
    # s1 ]3 q1 D, z  |: i' d& ~  q. ?. S4 f4 _& G5 ~1 J
    CHILDREN'S ROOM
    . e3 s) c$ a$ ~0 u6 S: C
    : T/ ?. r$ _  ]& l; S" U FB0A9993_副本.jpg ' y  s! b& q: C6 V: i# Q
    - \3 ?# k4 _; k# s* p
    屋主希望两个儿子可以一起成长,儿童房的床和书桌都是准备的双份,书桌和衣柜的结合,增加了收纳的同时,又让孩子有了专属的学习环境,空间通过色彩的点缀,多了些活泼跃动。4 B2 j. b* e6 U' Y& X

    1 \& Q; G8 h% _- M* z2 ^ FB0A9997_副本.jpg 7 K* ~6 |/ {( Q8 Y* [3 a
    & i' U# u- b* V( g# j' e
    TOILET
    ( _  t) q( |  N6 n& |; l8 `! R# T9 p# D8 X- {. ^% Q# I% E
    FB0A9973_副本.jpg
    9 Z2 c; Z! B+ g" F5 P, G& M$ @+ _# N* k3 S, O
    卫生间干湿分离,以简单的黑白灰搭配出时尚的洗浴空间,更符合年轻人的审美。
    # p! G8 Q" j0 U/ d' [& U8 {  W1 M) O9 F5 |7 k/ u8 p

      G9 W& {& n6 E2 X! V- K+ ?; w* E4 U; g6 t% y
    南通0
    您需要登录后才可以回帖 登录 | 注册

    本版积分规则

    手机版|无图版|站务联系 | 商务合作 | 平台公约

    信息产业部备案:苏ICP备05014191号-1 经营性ICP许可证:苏B2-20110445 苏公网安备 32060202000307号 © 2001-2019 0513.org All Right Reserved.

    投诉争议 技术支持:第一互联 GMT+8, 2025-12-15 05:39 , Processed in 0.240318 second(s), 12 queries , MemCache On. 站点统计

    快速回复 返回顶部 返回列表