濠滨论坛

点击扫描二维码

查看: 9324|回复: 5

印象水仙 | 安于麓间,遇见最美的初夏,125㎡简约美式

[复制链接]
  • TA的每日心情
    慵懒
    2014-6-28 08:44
  • 签到天数: 9 天

    [LV.3]偶尔看看II

    发表于 2019-5-10 15:11 | 显示全部楼层 |阅读模式 来自:江苏
      P- {  G6 {0 C! m9 t+ i! o2 m! V# ]6 B! @( g' E+ _' e
    e330427b3c03a936d5fb77ae4b4a55c.png

    7 d' G' F8 i1 [% e, e; K9 l7 a
    流年,总喜欢穿心而过
    遇见,似一场花开
    怡然初夏,我们在这里相遇
      i: S" l2 Z. m/ i4 u: X% O
    「 项目简介 」

    ( B: f" ?9 J' y) D
    小区:华润悦景湾
    户型:三室两厅两卫
    风格:125㎡简约美式
    硬装设计:印象水仙
    软装设计:印象水仙
    施       工:印象水仙

    & P4 z+ l; b$ ?0 t
    33d16444bc39548c2516cf2cf7e907d_副本.jpg
    " Q$ a/ s7 ^/ S
    本案屋主由老客户介绍与印象水仙相遇,幸福的一家三口,主家期望设计师可以兼顾设计感与实用性,将新屋打造成适合孩子成长的居住空间。
    9 I0 I& T* u' y$ s: o4 E
    与本案业主一样,很多业主在找设计师设计住所的时候都希望房子是以孩子为出发点,在与业主沟通后,考虑到业主喜好与小朋友的性格,设计师将风格定位为美式,用柔和的色调与精致的装饰让孩子享受舒适自由的成长氛围,在空间动线上也更利于孩子活动。
    ( t  ~6 }* F/ P2 p# j1 o& _, J
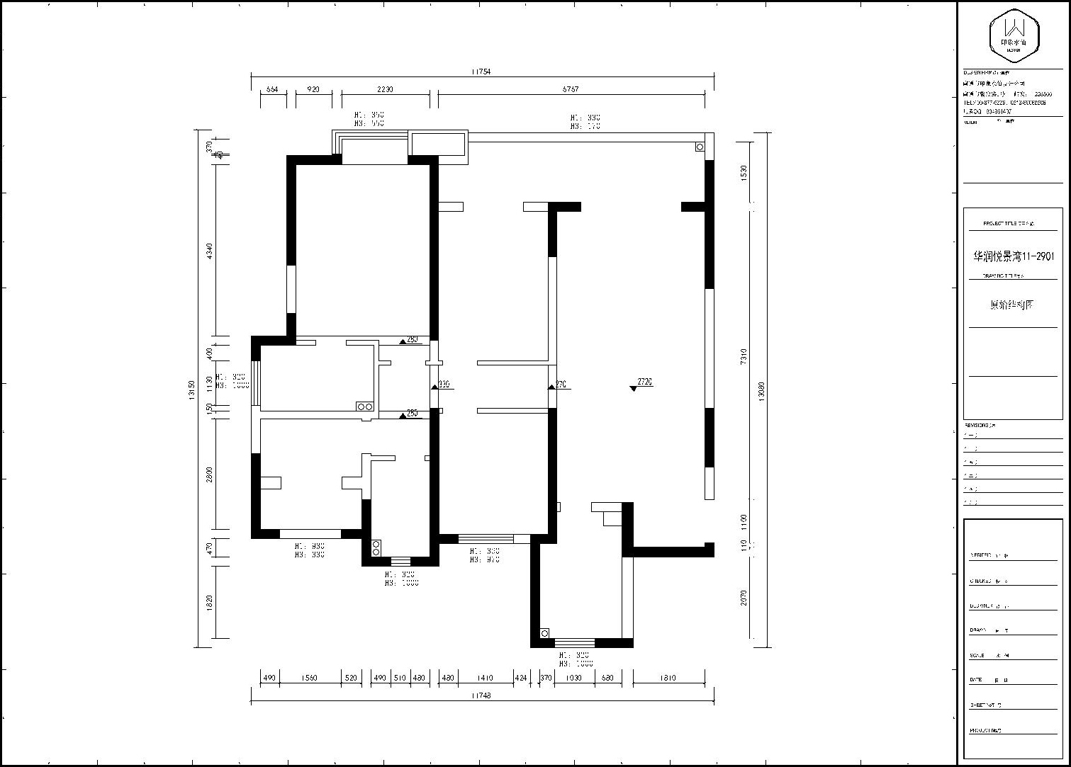
    「 原始结构图 」+ W- Q9 G' P6 c% |

    & k, _3 i% n: g. b' O2 } 98c2e2d0a078f83c43e4286d704f486.jpg
    , z2 C' j) p3 r: a3 B0 [8 j( `
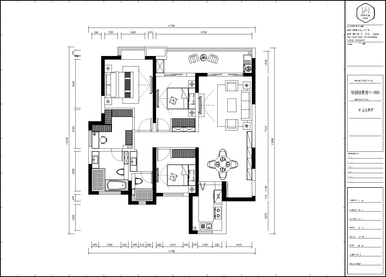
    ' w( R/ Q: |3 U「 平面布置图 」% t" H1 {; A+ J

    0 f7 [! Y/ b9 m( j9 M" q 1dfbcf56cc4d9956861067b13d5620f.jpg 2 Q7 o; R! c& K: s% c* N( [( [

    & |+ x4 p4 t; Q5 _( j: z) b玄   关- w2 H9 O; q4 n: ^7 B: N2 F

    + _# h7 e' s/ J5 x FB0A6934_副本.jpg
    ; L% \* `, {. b" J7 _
    - q4 @. |! Y& w( r
    家,从进入玄关开始。
    绚丽的金色框壁画,如鲜活空间的絮语,流光溢彩,推开家门,就是最温柔的抚慰。
    ; C  O. H* u4 H" C2 ?
    客   厅
    # P8 M0 c) z6 r- c$ j2 L( @
    FB0A6994_副本.jpg
    % ?, |: ~% ]0 k
    FB0A7003_副本.jpg
    9 |$ [9 W! i. I! A7 V
    客厅大面积的粉色构建一室的温暖基调,摘取自然的线条与律动,于空间内缓缓荡漾开来,吊灯、抱枕、绿植、地毯的完美布光组合,与户外自然光一起浮载,各类精心搭配的金属软装热情地活跃在这一空间。
    " y+ _) R* {( ^  F8 e
    FB0A6989_副本.jpg

    $ O% k0 j  B! M& [0 P& U2 M
    三人位沙发坐感轻松又显自然,经典的银钉铆边作为配饰,褶皱间隐藏不住的典雅质感油然而生。
    6 j: T& E& h* `  \. z8 Z
    FB0A7025_副本.jpg

    ) H0 r+ D6 e5 P5 O) x" X
    餐   厅
    $ M5 A: ~6 G$ ~" T  j3 A$ B9 Z
    FB0A6976_副本.jpg

    $ D- ~2 \! K" t3 ]% U
    圆桌颇有小资情调,与屋主喜爱的餐椅搭配美式韵味浓郁。墙上的装饰画也为餐厅带来艺术感,蓝色餐边柜增加收纳面积同时与灰色墙面对比提亮空间。

    8 @- f7 I8 ~4 n) m, D4 ?
    FB0A6948_副本.jpg

      D* }2 ]0 T  {3 a( _+ K3 j9 u$ \% x0 i- v' }. s& I9 _
    过   道

    , z* T* \- d' v8 t: d0 Z
    FB0A6954_副本.jpg

    9 m* r9 V3 o- O5 J* N' ^
    我一直执着的认为,饰品是有生命的,是有能量的,并且感性的,它会装着我们的记忆,见证我们的成长,美丽而生动。

    $ f% W7 s5 H+ }- l# L7 _4 u
    厨   房

    " f* T( e; I& l; G9 i, m  f# X7 A
    FB0A7077_副本.jpg

    . Y, {& y( J7 [" S$ Z! ^, F4 V
    厨房黑色定制橱柜与浅色操作面板在实用性上更为突出,耐脏耐用,金属精致把手也让轻奢感蔓延到厨房空间。
    ; R; {4 Q, T. y) X2 G8 c% Y
    主   卧
    3 e  l+ R1 _6 }8 p# l! x- C
    FB0A7109_副本.jpg
    " [& F& P& j3 J% y0 T9 b- U
    走进主卧,可以看到临近主卫旁,给女业主隔出了一套独立的衣帽间。满足家庭储物需求的同时,也在极大程度上方便了女主人的生活。

    & {! g7 w7 E* l5 ]5 R
    FB0A7113_副本.jpg
    , l. l" P' \5 o+ w1 y7 N1 |
    米白色经典美式床结合宝蓝色床头背景,用色大胆却别具风韵,整体空间的搭配,注重舒适也极具个性!
    & k9 v% q8 e/ d! p' J7 m. M) }1 |, v* e
    次   卧

    5 L, F1 w  K( n( u  u
    FB0A7099_副本.jpg
    % t& Q% \/ W$ u: f( u1 ~) f
    次卧背景以粉色为主,墨绿色的床,浅蓝色衣柜,精致的床饰,小巧的艺术壁画,彰显青春的气息。
    儿童房
      g+ d  i5 I% ?3 ~  A% k
    FB0A7139_副本.jpg

    4 G! T5 \9 Z" {7 x; S8 }4 o
    儿童房,设计师以孩子的喜好角度出发,选择了浅蓝色的定制衣柜结合墙面活泼的色彩,让整个空间更具趣味性。
    4 [! x; {- B5 k6 M& K6 d
    阳   台
    9 ]9 D, J; Q# ]) I# O
    FB0A7149_副本.jpg

    0 ~6 W( [2 M7 e$ R
    阳台的光线非常好这里非常适合读书、学习,孩子在这个小小的空间里阅读是非常惬意的。

    ' ?. {1 T/ g0 M+ j6 {
    卫生间
    4 {6 P1 C$ O, F9 a5 J/ ]
    FB0A7161_副本.jpg

    / A# x2 u* o6 l1 {
    卫生间干区采用了孔雀蓝的门板设计,带来非常强烈的时尚感,小白砖的设计,也更添一份精致,小空间也具有统一的设计感。

    / X1 s! z; R0 j8 [! D6 J6 }5 s
    FB0A7172_副本.jpg
    ; n2 k% N  z& j( O0 T2 E
    更多装修咨询,电话、微信:18115818777

    $ e' h' v+ j9 ]+ b: A# S$ h5 h8 J$ c& n# g0 l- m, d) N
    进进.jpg 6 U2 w3 {$ P. h( w, Y/ e
    8 W) P8 o& D! r7 M1 k5 F: |

    0 B9 x4 U) Y+ w, |  j. J+ k

    6 a# ^7 d5 }* @2 @% l( p
    ' a( W+ f, K/ V8 t; _& p
    ( @2 p$ m( r! g8 j

    # w$ |% Q: {( ?2 T* f5 }0 S6 p+ g南通0
    匿名
    发表于 2019-5-11 17:19 | 显示全部楼层 来自:江苏
    提示: 作者被禁止或删除 内容自动屏蔽
    回复 支持 反对

    使用道具 举报

    该用户从未签到

    发表于 2019-6-21 17:05 | 显示全部楼层 来自:江苏
    **** 作者被禁止或删除 内容自动屏蔽 ****
    / ~9 m, r$ V$ Q) N" m2 g- T8 G
    你们家哪个小区?什么进度 可以参观吗
    ; \6 v6 x: d. u- q6 D
    回复 支持 反对

    使用道具 举报

  • TA的每日心情
    慵懒
    2014-6-28 08:44
  • 签到天数: 9 天

    [LV.3]偶尔看看II

     楼主| 发表于 2019-6-24 10:02 | 显示全部楼层 来自:江苏
    初晴春天 发表于 2019-6-21 17:050 _9 S$ n3 z2 h+ U
    你们家哪个小区?什么进度 可以参观吗

    9 {8 L" V5 s9 \  [他们家是花城三期的6 c! g1 H1 F. B# g$ O' m
    回复 支持 反对

    使用道具 举报

    匿名
    发表于 2019-6-24 10:06 | 显示全部楼层 来自:江苏
    提示: 作者被禁止或删除 内容自动屏蔽
    回复 支持 反对

    使用道具 举报

    该用户从未签到

    发表于 2019-6-27 17:00 | 显示全部楼层 来自:江苏
    **** 作者被禁止或删除 内容自动屏蔽 ****

    ' B9 W* `, B% d1 Y好滴 等你回复
    " h( S$ r9 E. Q+ J
    回复 支持 反对

    使用道具 举报

    您需要登录后才可以回帖 登录 | 注册

    本版积分规则

    手机版|无图版|站务联系 | 商务合作 | 平台公约

    信息产业部备案:苏ICP备05014191号-1 经营性ICP许可证:苏B2-20110445 苏公网安备 32060202000307号 © 2001-2019 0513.org All Right Reserved.

    投诉争议 技术支持:第一互联 GMT+8, 2025-12-14 19:23 , Processed in 0.202283 second(s), 20 queries , MemCache On. 站点统计

    快速回复 返回顶部 返回列表