|
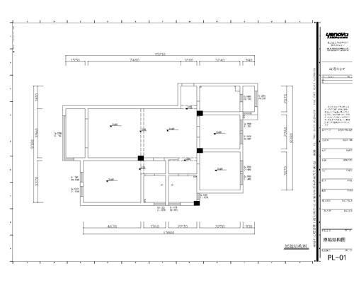
工程地址:凤凰莱茵苑29#801 面 积:160㎡ 户 型:四室两厅 装修风格:中式 户型分析: 缺点: 1、入户门对着客厅,客厅嫌小气。 2、卫生间门对着餐厅。 3、北边房间嫌小,主卫生间没有彩光点。 优点:各区域采光很好,私密性很好,各区域划分很明确。 设计说明: 本案的设计风格为中式风格,通过室内通过室内布置.线性.色调以及家具.陈设的造型等方面,吸取传统装饰形.神的特征,以传统文化内涵为设计元素,革除传统家具的弊端,去掉多余的雕刻,糅合现代家具的舒适. 便可以满足我们对悠然自得的生活的向往和追求,让我们在纷扰的现实生活中找到平衡,缔造出一个令人心弛神往的写意空间。 原始结构图: ( P, b3 v: U8 U
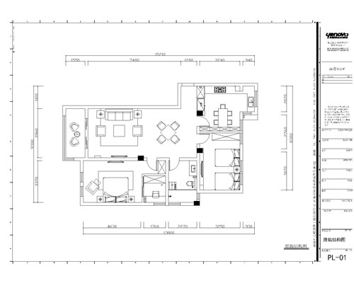
2 {, J5 T. q! s; X. J/ i平面布置图: # C0 C$ |" e% I) A6 E: w
0 B0 y( ?3 I8 `9 j/ ]5 H. ~效果图: ) f( y0 P" w" ~
. G' H9 ~/ Q; J$ x$ Q( B0 ~+ I u
; G9 K& q7 ]% Q+ o6 l( w( |2 n
- w+ K: F" j, W& j' l
+ g5 N# c9 I! Q
" l, p( r1 [! m n& y6 n* B- [! Q' l
& o( x, K1 X# b8 Q
( k% B ~ a0 U. ~- p ! N( Q( N* z& M, W
' }! a! [2 f6 N9 }, \ N: R* A / O3 e S+ P8 L1 {& H
4 S: ~5 w( E1 L$ J+ P' X; P3 e* C/ f |