濠滨论坛

点击扫描二维码

查看: 90944|回复: 24

[工地实拍] 设计二部经理—【王金磊】个人简介及作品

[复制链接]
  • TA的每日心情
    开心
    2016-1-3 10:20
  • 签到天数: 2 天

    [LV.1]初来乍到

    发表于 2012-9-10 09:53 | 显示全部楼层 |阅读模式 来自:江苏
    本帖最后由 南通业之峰 于 2015-8-27 14:52 编辑 $ t$ g/ ]( U. }
    9 I4 d  U% Q' a4 z; I
    IMG_8156.gif
    & g8 S7 s/ r6 t) v% l姓名:王金磊
               
    英文名:JACK
    工作经验:5年
              2005年—2007年在北京亚光亚装饰公司红星美凯龙星级设计师
              2008年---2010年在北京亚光亚合肥公司主任设计师
              2010年至今在北京业之峰南通公司设计师
    荣誉:
          中国室内协会高级设计师
          北京红星美凯龙星级设计师
           合肥装饰协会资深设计师
           合肥装饰协会高级讲师
           北京星级设计师大赛“银奖”
    设计心得:设计源于生活,却高于生活。我严谨的把握生活的每个细节,用心设计!
    设计格言:跨越时空的艺术交汇,创造永不落幕的人生舞台!
    成功案例:
    家居空间:
    欧式:
    碧水庄园C1、紫云山庄B2、橡树湾、帝景华庭15#、御花园108#、威尼斯花园别墅C4、领袖硅谷别墅F9、 尚德城邦.......
    现代简约:
    领袖新硅谷8#、奥林佳苑甲师65#、锦绣兰亭、芙蓉花园E21、天润小区108#、锦绣年华1#、万通新城8#........
    中式
    炮兵二院(甲师)、北岸布鲁斯C5、昌平军蓝新区……
    地中海
    西山庭院E2、铁道部宿舍1#、优山美地196........
    后现代主义
    御景园………
    公共空间:
    安徽翰林佳苑售楼中心、安徽合肥中国联通、北京太平洋洗浴休闲会所……….
    ) s3 e) F% p. }3 y) o/ R: }" z
    南通0
  • TA的每日心情
    开心
    2016-1-3 10:20
  • 签到天数: 2 天

    [LV.1]初来乍到

     楼主| 发表于 2012-9-10 09:56 | 显示全部楼层 来自:江苏
    案例地址:通州财富中心金沙国际公馆
    面积:300㎡
    风格:现代简约
    工程造价:210000
    主材报价:460000
    软装配饰:40000
    材质:进口皮纹砖、进口石材、进口墙纸、马赛克、花格、烤漆玻璃、玉石等等
    案例说明:本案例的风格是现代简约,居住人口是四口,面对大都市钢筋混凝土的喧哗,设计师以牡丹为主题,让家变得更加温馨,牡丹代表华贵,低调的象征,在颜色上以暖,浅颜色为主。
    原始结构图:
    原始平面.jpg
    平面布置图:
    平面布置.jpg
    效果图:
    客厅.jpg
    餐厅.jpg
    过道.jpg
    回复 支持 反对

    使用道具 举报

  • TA的每日心情
    开心
    2016-1-3 10:20
  • 签到天数: 2 天

    [LV.1]初来乍到

     楼主| 发表于 2012-9-10 10:06 | 显示全部楼层 来自:江苏
    工程地址:南通市平潮平东里  
    面积:210㎡
    户型:别墅
    装修风格:新中式
    半包预算:15
    主材预算:30      
    每平米造价:720     
    设计说明
           主人是一位40岁左右的数学教师,设计师与其沟通后,将装修风格定位为新中式,尽显主人的尊贵典雅奢华气质,爱人是为商人,大学时主学中文系。对中式元素非常喜欢。
        进门玄关处点缀装饰画格,不但解决的风水问题,还起到了玄关的点缀作用,顶面以九宫格位代表,体现家中的氛围。旁厅以木质,玉石,木纹砖为背景,软和硬,深和浅的对比,是空间更加大气,侧背景以梅,兰,竹,菊,为背景,让空间更加完美。餐厅简洁明亮,木花格,木线条起到了点睛作用。二楼客厅多出运用隐形门的处理手法,以墙纸,马赛克,木质为材质,使空间更加大气。二楼主卧色彩运用大胆豪放,体现中式韵味。
    使用材料介绍
    主料:欧神诺陶瓷,锦致橱柜,欧尚墙纸,盼盼木门,浪鲸卫浴等。
    辅料:兔宝宝木工板,龙牌石膏板,德国洁水PPR水管,业之峰专用乳胶漆等。
    效果图:
    【4】2楼客厅.jpg
    【3】一楼餐厅.jpg
    【2】一楼客厅1.jpg
    【1】一楼过道1.jpg
    【5】房间.jpg

    4 {+ j4 B& r* a1 Q6 V
    回复 支持 反对

    使用道具 举报

  • TA的每日心情
    开心
    2016-1-3 10:20
  • 签到天数: 2 天

    [LV.1]初来乍到

     楼主| 发表于 2012-9-10 10:10 | 显示全部楼层 来自:江苏
    工程地址:白蒲文明新村
    面积:150㎡
    户型:三室一厅一卫
    装修风格:现代简约
    半包预算:7.5
    主材预算:20        
    每平米造价:1600           
    设计说明
           主人是一位40岁左右的白领,设计师与其沟通后,整个空间采用的是暖色调来烘托出温暖祥和的氛围,设计师采用了现代的表现手法,把现代元素加入其中,客厅的墙面采用了现代简约的画作。电视背景墙采用有质感的银镜不仅仅拉伸整个空间,同时使空间现代感十足通过顶面的虚拟划分来隔出不同的功能空间。主卧则是采用一份为二的手法,不仅仅合理利用空间,而且使电视背景墙不过于狭长,整个室内通过合理的规划,使得空间饱满而不会拥挤
    使用材料介绍
    主料:金意陶陶瓷,百V橱柜,欧尚墙纸,盼盼木门,浪鲸卫浴等。
    辅料:兔宝宝木工板,龙牌石膏板,德国洁水PPR水管,业之峰专用乳胶漆等。
    平面结构图:
    原始结构图.jpg
    平面布置图:
    平面布置图.jpg
    效果图:
    客厅.jpg
    主卧.jpg
    回复 支持 反对

    使用道具 举报

  • TA的每日心情
    开心
    2016-1-3 10:20
  • 签到天数: 2 天

    [LV.1]初来乍到

     楼主| 发表于 2012-9-10 10:18 | 显示全部楼层 来自:江苏
    工程地址:景华城4#805
    面积:145㎡
    户型:三室一厅一卫
    装修风格:现代欧式
    半包预算:7.9
    主材预算:25      
    每平米造价:2200   
    设计说明
           主人是一位40岁左右的家具店老板,设计师与其沟通后,将装修风格定位为现代欧式,彰显主人高贵而不奢华。赋予空间最明亮的视觉,立面规划简素清爽。通过艺术形态饱满的过道壁画,挂饰充盈整体的空虚。尤其是客厅背景墙。根据有条件的部署很具有感染力。汲取了欧式的元素家具墙面不同的造型,让客餐厅两个不同的空间挣脱约束,活动由一个空间延伸到另一个空间。由于业主不喜欢筒灯,过道 采用灯带,不仅仅延伸空间感而且使之具有导向性。没有任何一丝丝的勉强也没有一丝丝的刻意空间就随之而然的展开了。
    使用材料介绍
    主料:欧神诺陶瓷,景致橱柜,欧尚墙纸,盼盼木门,浪鲸卫浴等。
    辅料:兔宝宝木工板,龙牌石膏板,德国洁水PPR水管,业之峰专用乳胶漆等。
      U# P* n: |7 h& [5 G3 V原始结构图:1 c, X* E7 m- \: g# l2 z# F9 ]/ P
    原始.jpg
    ( l' H' ^# e1 A& n/ z; n平面布置图:
    # u& }. e, g* z. w4 s 平面布置.jpg
    2 ~3 Q* k7 i+ ]! p; I' h6 l/ U效果图:
    + }; F5 I+ O# q$ q 客餐厅.jpg
    - _% G8 \3 g: P7 _" p 过道.jpg + }, n' j( Y9 K  d% `4 R
    回复 支持 反对

    使用道具 举报

  • TA的每日心情
    开心
    2016-1-3 10:20
  • 签到天数: 2 天

    [LV.1]初来乍到

     楼主| 发表于 2012-10-21 14:12 | 显示全部楼层 来自:江苏
    工程地址:启东彩城三村  
    面积:110㎡
    户型:三室两厅
    装修风格:现代简约
    主材预算:18        
    半包预算:7
    每平米造价:1600           
    设计说明
            家是一个365天时刻运转的地方。设计师以轻松时尚,功能至上为出发点,希望本案在经济、实用、舒适的同时,体现一定的文化品位。而简约风格不仅重视居室的实用性,还体现了工业化生活的精致与个性,符合现代人的生活品位与业主沟通后,整个空间的色彩以白色为主,黑白灰的金典色调结合利落、简洁的设计风格,强调区域静谧感,打造简洁舒适家庭感受。因主人快节奏的生活步调,尤其应定义家事令其舒适居住的悠然港湾。设计师选择的整体色调、创造空间范围和亮度的同时,还考虑心理学元素“减压”,显示了设计师的细致考虑。吊顶与灯光的巧妙结合,干净利落地诠释了新的设计理念。入口公共空间连着餐厅与客厅的天花吊顶形成L的造型是空间的设计重点,使用全局间接照明,其余天花板则利用原顶以涂料处理,以争取空间高度。
    效果图:
    【1】hhh客厅.jpg
    【2】餐厅.jpg
    回复 支持 反对

    使用道具 举报

  • TA的每日心情
    开心
    2016-1-3 10:20
  • 签到天数: 2 天

    [LV.1]初来乍到

     楼主| 发表于 2013-5-11 09:55 | 显示全部楼层 来自:江苏
    工程地址: 通州金色成品11#1809
    面积:160㎡
    户型:复式楼
    装修风格:现代简约  
    半包预算:10万
    主材预算:30               
    设计说明:
         主人是一位50岁左右的成功商人,设计师与其沟通后,将装修风格定位为现代简约,尽显主人的尊贵典雅奢华气质,现代简约,简约而不简单,案例以玻璃,不锈钢,进口墙纸为主要材质来体现整体效果。以黑,白,灰位置色调,是整个空间更为现代效果图
    效果图:
    【2】客厅.jpg
    【3】房间.jpg
    【4】衣帽间.jpg
    【5】卫生间.jpg

    / _1 O3 p) B, ^4 `. W* u9 r. h
    7 J2 }# }/ R' E+ ]" f! a
    回复 支持 反对

    使用道具 举报

  • TA的每日心情
    开心
    2016-1-3 10:20
  • 签到天数: 2 天

    [LV.1]初来乍到

     楼主| 发表于 2013-5-11 09:58 | 显示全部楼层 来自:江苏
    工程地址:通州金河家园16#301  
    面积:210㎡
    户型:四室两厅
    装修风格:古典欧式
    半包预算:104000   
    主材预算:30        
    设计说明:
        主人是一位40岁左右的成功人事,设计师与其沟通后,将装修风格定位为古典欧式,尽显主人的尊贵典雅奢华气质,业主喜欢深色的古典家具,比较稳重。案例运用马赛克,玉石砖,为主要材质,来体现整体效果。
    原始结构图:
    金和家园16#301-Model.jpg
    平面布置图:
    金和家园16#301-1.jpg
    效果图:
    【1】客厅.jpg
    【2】餐厅.jpg
    【4】客厅.jpg
    【3改1】房间.jpg

    4 L+ X7 s* ]+ T/ w) U6 v" l% x8 _
    - V3 n9 ^8 j9 B% k! ?* F  x" [
    回复 支持 反对

    使用道具 举报

    匿名
    发表于 2013-5-13 11:37 | 显示全部楼层 来自:江苏
    提示: 作者被禁止或删除 内容自动屏蔽
    回复 支持 反对

    使用道具 举报

  • TA的每日心情
    开心
    2016-1-3 10:20
  • 签到天数: 2 天

    [LV.1]初来乍到

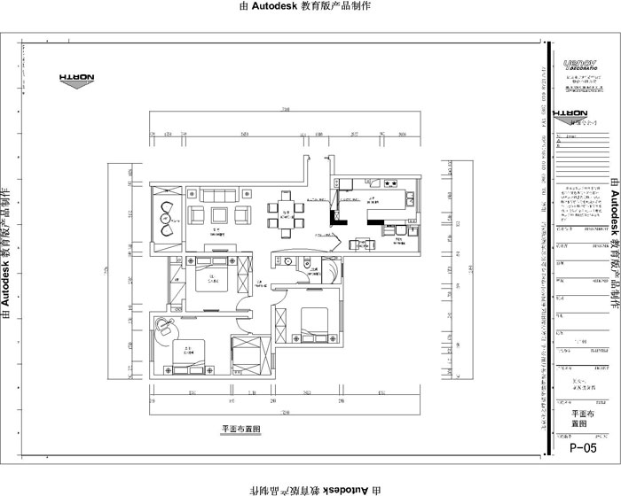
     楼主| 发表于 2013-6-17 15:50 | 显示全部楼层 来自:江苏
    工程地址:水榭花城 7#302
    面    积: 140㎡              
    户    型:三室两厅                      
    装修风格:   现代欧式
    户型说明:
    优点:空间大、视野开阔
    缺点:厨房较小        
    设计说明:
       主人是一对年轻男女,设计师在沟通了解之后,将装修风格定为现代欧式。由于主人是年轻的白领,并且在家中还是有父母居住,而且根据主人的爱好选定欧式,而主人又是比较年轻的白领,所以定为现代欧式。简单的奢华,不仅迎合了主人的需要,也使在家中居住的老人不会感到太豪华而缺乏了温馨感。
    原始户型图:
    7#302-Model原始结构.jpg
    平面布置图:
    7#302-Model平面.jpg
    效果图:
    王金磊到这里来_View01副本.jpg
    王金磊到这里来_View02副本.jpg
    【3】浅色房间.jpg
    7 G# C/ o* L" e1 s

    ) S* h6 c8 ^3 k9 F
    回复 支持 反对

    使用道具 举报

  • TA的每日心情
    开心
    2016-1-3 10:20
  • 签到天数: 2 天

    [LV.1]初来乍到

     楼主| 发表于 2013-6-17 15:53 | 显示全部楼层 来自:江苏
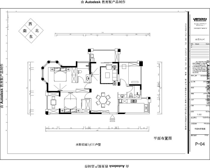
    工程地址:水榭花城 9#1006
    面    积:110㎡                     
    户    型:三室两厅               
    装修风格:现代简约
    户型说明:
    优点:空间大、空间格局安排合理
    缺点:储物空间较少        
    设计说明:
        主人是年轻的白领,设计师与其沟通后,将装修风格定为现代简约式,尽显主人时尚的都市感。在简简单单的设计中,不仅融合了时尚的潮流,也呈现了一种艺术文化,恰到好处的色彩装饰使得整个家的气氛不再单调,同时不仅让人觉得温暖也体现了主人的欣赏与个性,所以现代简约式更加适合这对年轻的白领夫妇
    原始结构图:
    水榭花城9#1006丁-原始结构l.jpg
    平面布置图:
    水榭花城9#1006丁-Model平面.jpg
    效果图:
    【1】客厅.jpg
    【2】房间.jpg

    0 v8 v1 o& i' G7 |. ~8 P+ a
    回复 支持 反对

    使用道具 举报

  • TA的每日心情
    开心
    2016-1-3 10:20
  • 签到天数: 2 天

    [LV.1]初来乍到

     楼主| 发表于 2013-7-15 10:38 | 显示全部楼层 来自:江苏
    工程地址:金和家园 34#1001
    面    积:140㎡                
    户    型:三室两厅               
    装修风格:现代简约        
    户型说明:优点:空间大、空间格局安排合理;缺点:储物空间较少。
    设计说明:
        主人是中年的男人,与儿子一起居住。设计师与其沟通后,将装修风格定为现代简约式。在简简单单的设计中,不仅融合了时尚的潮流,也呈现了一种艺术文化。恰到好处的色彩装饰使得整个家的气氛不再单调,同时不仅让人觉得温暖也体现了主人的欣赏与个性,所以现代简约式更加适合这一家人
    效果图:
    【1】客厅.jpg
    【2】餐厅.jpg

    ' y  E  y- @( S1 h
    ; v; J1 d& X/ P8 |
    回复 支持 反对

    使用道具 举报

  • TA的每日心情
    开心
    2016-1-3 10:20
  • 签到天数: 2 天

    [LV.1]初来乍到

     楼主| 发表于 2013-7-15 10:44 | 显示全部楼层 来自:江苏
    工程地址:水榭花城2#501
    面    积:90㎡            
    户    型:三室两厅               
    装修风格:现代简约        
    户型说明:优点:空间大、空间格局安排合理;缺点:储物空间较少。
    设计说明:
        主人是一对夫妻,在设计师和他们沟通了解之后,将装修风格定为现代简约式。从设计效果看,整个设计清爽干净,给人一种时尚简约的感觉,在家具的选择上,都选择了一些造型独特的,这也符合了主人的要求。
    效果图:
    【1】客厅.jpg
    【2】餐厅.jpg
    ; U- z! v# ]7 a$ [! X  G9 a
      {% C9 Z, w( B( M4 x  i
    回复 支持 反对

    使用道具 举报

  • TA的每日心情
    开心
    2016-1-3 10:20
  • 签到天数: 2 天

    [LV.1]初来乍到

     楼主| 发表于 2013-7-15 10:48 | 显示全部楼层 来自:江苏
    工程地址:水榭花城7#902           
    面    积:140            
    户    型:三室两厅  
    装修风格:现代简约
    户型说明:
    优点:空间大、空间格局安排合理;
    缺点:储物空间较少      
    设计说明:
       主人是中年的夫妻,在设计师和其沟通后,将装修风格定为现代简约式。在整个设计里,既满足了客户的需求,也在其需求的基础上增添了家里的时尚感和艺术气息,装饰庄重带着浓烈的艺术气息。
    效果图:
    【1】客厅11.jpg
    【2】餐厅111.jpg
    7 m& b- x* p# r% X5 z9 e

    3 H1 X3 ]2 W1 }: V4 Q
    回复 支持 反对

    使用道具 举报

  • TA的每日心情
    开心
    2016-1-3 10:20
  • 签到天数: 2 天

    [LV.1]初来乍到

     楼主| 发表于 2013-7-15 10:52 | 显示全部楼层 来自:江苏
    工程地址:水榭花城9#903
    面    积:100            
    户    型:三室两厅                 
    装修风格:现代简约
    户型说明:
    优点:空间大、空间格局安排合理;
    缺点:储物空间较少        
    设计说明:
       主人是年轻夫妇,设计师与其沟通后,将装修风格定为现代简约式。在简简单单的设计中不仅融合了时尚的潮流,也呈现了一种艺术文化,恰到好处的色彩装饰,让人觉得很舒服,时尚的现代感是符合房子主人的心理。
    效果图:
    客厅.jpg
    餐厅.jpg

    * h7 l5 [5 q7 P: I9 d  r; M  i1 \0 e% g" Y
    回复 支持 反对

    使用道具 举报

  • TA的每日心情
    开心
    2016-1-3 10:20
  • 签到天数: 2 天

    [LV.1]初来乍到

     楼主| 发表于 2013-7-15 10:56 | 显示全部楼层 来自:江苏
    工程地址:水榭花城12#1407
    面    积:100             
    户    型:三室两厅                 
    装修风格:地中海
    户型说明:
    优点:空间大、空间格局安排合理;
    缺点:储物空间较少      
    设计说明:
       主人是一对年轻的小夫妻,主人本身偏爱地中海风格的装修,在设计师与其进一步沟通后,决定将风格定为地中海风格。在淡蓝色的氛围中,不仅给人是时尚简约的感觉,而且清爽舒适,又能够满足主人的需求,所以地中海风格是首选
    效果图:
    客厅.jpg
    餐厅.jpg
    卧室.jpg
    9 D4 T6 K; b  |- }4 `, s

    ' p0 I  K& }7 D
    回复 支持 反对

    使用道具 举报

  • TA的每日心情
    开心
    2016-1-3 10:20
  • 签到天数: 2 天

    [LV.1]初来乍到

     楼主| 发表于 2013-8-23 10:41 | 显示全部楼层 来自:江苏
    工程地址:尚海城11#804
    面    积:130㎡           
    户    型:三室两厅               
    装修风格:现代简约
    户型说明:
    优点:空间大、空间格局安排合理;
    缺点:储物空间较少。      
    设计说明:
        客户是一对中年夫妇,该房子主要是给他们的儿子住,所以在设计师和其沟通后,将装修风格定为现代简约式。在整个设计里,既满足了客户的需求,也在其需求的基础上增添了家里的时尚感和实用性,装饰庄重带着浓烈的艺术气息。
    原始结构图:
    原始结构图.jpg
    平面布置图:
    平面布置图.jpg
    效果图:
    【1】客厅副本.jpg
    【2】客厅副本.jpg
    【3】房间。调图副本.jpg

    / _* [: _/ X$ k9 T# v
    $ A' C) \2 y" H; e- X( ~4 ]
    回复 支持 反对

    使用道具 举报

  • TA的每日心情
    开心
    2016-1-3 10:20
  • 签到天数: 2 天

    [LV.1]初来乍到

     楼主| 发表于 2013-8-23 10:45 | 显示全部楼层 来自:江苏
    工程地址:水榭花城2#1101
    面    积:100㎡          
    户    型:复式               
    装修风格:现代简约
    户型说明:
    优点:空间大、空间格局安排合理;
    缺点:储物空间较少。      
    设计说明:
        客户是一对夫妇,在设计师和其沟通后,将装修风格定为现代简约式。在整个设计里,既满足了客户的需求,也在其需求的基础上增添了家里的时尚感和实用性,装饰庄重带着浓烈的艺术气息,而且在客户的需求下,也增添了些许的造型艺术和现代感简洁大气。
    原始结构图:
    原始结构图.jpg
    平面布置图:
    一楼平面布置图.jpg
    二楼平面布置图.jpg
    效果图:
    客厅副本.jpg
    主卧副本.jpg

    7 H9 Z! F, D) p5 @3 s, F
    # }$ ^2 f% [) X) Z9 D7 l% n% _. n
    回复 支持 反对

    使用道具 举报

  • TA的每日心情
    开心
    2016-1-3 10:20
  • 签到天数: 2 天

    [LV.1]初来乍到

     楼主| 发表于 2013-9-10 17:08 | 显示全部楼层 来自:江苏
    工程地址:新华城市家园16#1001
    面    积:120㎡          
    户    型:三室两厅                 
    装修风格:现代简约
    户型分析:
    优点:空间大、空间格局安排合理。
    缺点:储物空间较少。         
    设计说明:
        主人是一对夫妻,家里有一个小女儿,主人都是做医生的。在设计师和其沟通后,将装修风格定为现代简约式。在整个设计里,既满足了客户的需求,温馨简约,也在其需求的基础上增添了家里的现代感和装饰感,带着浓烈的艺术气息。
    原始结构图:
    16#1001施工图-Model.jpg
    原始结构图:
    16#1001施工图-Model2.jpg
    效果图:
    【1】客厅副本.jpg
    【3】房间副本.jpg
    【4】女儿房副本.jpg

    / s' C5 a3 h, [) O% M4 v# O
    % M1 o' s* E$ M6 H2 }: b
    回复 支持 反对

    使用道具 举报

  • TA的每日心情
    开心
    2016-1-3 10:20
  • 签到天数: 2 天

    [LV.1]初来乍到

     楼主| 发表于 2013-10-25 09:32 | 显示全部楼层 来自:江苏
    工程地址:水榭花城7#1105
    面    积:120平米
    装修风格:现代简约
    户型分析:
    优点:南北通透,户型格局归正,功能划分合理。
    缺点:空间划分不合理,过道狭长。
    设计说明:
        此方案设计定位于现代风格,合理的功能分区,柔和的色彩加之完美的软装配饰给人以温馨舒适的感觉。简约的线条,时尚的灯饰等 更增加了其设计的精致程度。使得整个家更贴近自热,简洁大气。
    装饰要素:艺术壁纸+柔和的色彩+线条简洁的家具、到位的软装。
    原始结构图:
    原始结构图.jpg : l4 V' W$ X# o7 T+ f1 r/ r! ^
    平面布置图:
    平面布置图.jpg
    5 y1 O$ M/ G3 I) s
    效果图:
    客厅rrrr副本.jpg
    6 r9 t3 P" }# U6 V$ W3 D" Y
    餐厅1111副本.jpg & R# d& ~0 m: f4 f) h1 S
    【4】房间副本.jpg
    8 M: s- Y# V* Z' Y3 i0 u

    0 `. g6 J. h/ [7 {% g
    + x9 L3 ^. N% ?8 C3 W6 \" t+ H+ f
    / a: E( y6 P+ W9 i
    回复 支持 反对

    使用道具 举报

  • TA的每日心情
    开心
    2016-1-3 10:20
  • 签到天数: 2 天

    [LV.1]初来乍到

     楼主| 发表于 2013-12-17 09:14 | 显示全部楼层 来自:江苏
    工程地址:城东雅苑2#602
    面    积:90 ㎡               
    户    型:两室两厅            
    装修风格:现代简约
    户型分析:
    优点:采光好、空间格局安排合理。
    缺点:储物空间较少。      
    设计说明:
       主人是一对年轻的夫妻,在设计师与其进一步沟通后,决定将风格定为现代简约风格。在暖色的氛围中,不仅给人是时尚简约的感觉,而且温馨舒适,还能满足主人的需求,用简单的造型打造出一种不简单的装饰效果。
    原始结构图:
    原始结构图.jpg & e9 ]5 S! T0 G: ?2 w+ }3 Y
    平面布置图:
    平面布置图.jpg , X2 ^5 C- n% G! h/ X
    效果图:
    客厅副本.jpg 7 h3 t1 n2 E! }- A+ R" \! _: Z
    城东雅苑主卧副本.jpg 7 X1 m1 v  k4 {/ T$ @3 W
    城东雅苑女儿房副本.jpg
    ( T5 [) e" U2 W3 U9 c& G
    3 q% ]! ]# j7 v" l/ _! y% m/ f
    ( M0 L2 l2 a# ]- I4 V6 ~2 `# m* g5 r' r
    回复 支持 反对

    使用道具 举报

  • TA的每日心情
    开心
    2016-1-3 10:20
  • 签到天数: 2 天

    [LV.1]初来乍到

     楼主| 发表于 2013-12-17 09:17 | 显示全部楼层 来自:江苏
    工程地址:凤凰华庭2#206
    面    积:85㎡               
    户    型:两室两厅            
    装修风格: 现代简约
    户型分析:
    优点:采光好、空间格局安排合理。
    缺点:储物空间较少。      
    设计说明:
       主人是中年的夫妻,有一个女儿,主人本身不需要过于复杂的装饰,在设计师与其进一步沟通后,决定将风格定为现代简约风格。在简简单单的氛围中,不仅让人感觉清爽舒适,又能够满足主人的需求。
    原始结构图:
    原始结构图.jpg ( k" ]. V& F, J5 `; M4 O
    平面布置图:
    平面布置图.jpg 8 H2 k/ h" x1 l9 @8 V
    效果图:
    凤凰华庭客厅副本.jpg
    ; C! x" U# y6 P& K9 @8 L: ~, H6 e
    凤凰华庭主卧副本.jpg
    . {9 I, x) t4 @' i# @/ @% ?+ P

    ) `) b$ }& M$ l" P8 s* P. {

    ; e: S4 U6 V2 t- ?' M7 r! Q; i! C
    回复 支持 反对

    使用道具 举报

  • TA的每日心情
    开心
    2016-1-3 10:20
  • 签到天数: 2 天

    [LV.1]初来乍到

     楼主| 发表于 2013-12-17 09:21 | 显示全部楼层 来自:江苏
    工程地址:五洲国际3#3003
    面    积:88㎡                    
    户    型:两室两厅               
    装修风格:现代简约
    户型分析:
    优点:阳台大、采光好、空间格局安排合理。
    缺点:储物空间较少。      
    设计说明:
       主人是中年夫妻,主人平常上班比较忙碌,没有时间打理,在设计师与其进一步沟通后,决定将风格定为现代简约风格。在深咖的墙纸效果下,不仅让人感觉到沉稳,而且也满足主人的需求,容易打理。
    原始结构图:
    原始结构图.jpg + w4 l; w1 A/ o+ q
    平面布置图:
    平面布置图.jpg
    ; V1 w8 Q& i: Q
    效果图:
    【2】客厅副本.jpg - P) n( j; Y" P% d$ f- _0 _" m7 H5 h, g, o
    【1】客厅副本.jpg & p% B# n% [- x1 b& H/ @
    【3】房间1副本.jpg : }" z+ ]: C: u. Z& E2 s8 Z( T/ ?! j

    + r5 C" _. H  g9 a2 q! Q; ~  s2 @7 s) h3 h" o" u* A! |8 G0 x8 |
    回复 支持 反对

    使用道具 举报

  • TA的每日心情
    开心
    2016-1-3 10:20
  • 签到天数: 2 天

    [LV.1]初来乍到

     楼主| 发表于 2015-5-28 09:49 | 显示全部楼层 来自:江苏
    基本信息
    工程地址:景瑞望府54#1102               
    户型:两室一厅                     
    面积: 80                     
    装修风格:简欧               
    设计说明                                 
    本案的设计风格为简欧。业主为年轻夫妻,有一个baby!
    三口之家,重在温馨甜蜜的家庭氛围。年轻的80后夫妻带着一个活泼可爱的孩子,简欧风格的装修再适合不过。
    该户型偏小,整体造型简单。顶面用一个长方形,一个七子形,一个圆形跌级,成功划分了餐厅、过道、客厅区域。入户门左边墙敲掉改成高柜,下面是鞋柜,上面是装饰柜,一举两得。墙面采用经典的米黄色大马士格花纹墙纸,配以白色实木线条,低调不失品位。电视背景墙以柔和的实木线条将深色墙纸与浅色墙纸加以区分,使得整体层次凸显,稳重大气。
    整体家居以白色为主,辅以恰当的装饰画和各类软装搭配,再加上纯白木门,简欧风彰显的淋漓尽致。
    户型图解说
    优点:功能区划分规整,采光充足。
    缺点:入户没有鞋柜的位子
    使用材料介绍
    主料:地砖、墙纸、大理石、地板、实木线条
    辅料:龙牌石膏板,兔宝宝木工板,峰之润净味墙面漆,进口奥松板,业之峰专用电线管,上海洁水水管,金星轻钢龙骨。
    好了,下面照例是原始结构图平面布置图啦!
    原始结构_副本.jpg 平面布置_副本.jpg
    然后就是全景图啦!
    景瑞360_cube_副本.jpg
    / ?5 }  f# T8 |0 s

    ' @! @- ^/ ?" s  f# F& }
    回复 支持 反对

    使用道具 举报

    您需要登录后才可以回帖 登录 | 注册

    本版积分规则

    手机版|无图版|站务联系 | 商务合作 | 平台公约

    信息产业部备案:苏ICP备05014191号-1 经营性ICP许可证:苏B2-20110445 苏公网安备 32060202000307号 © 2001-2019 0513.org All Right Reserved.

    投诉争议 技术支持:第一互联 GMT+8, 2025-12-13 20:14 , Processed in 0.506366 second(s), 17 queries , MemCache On. 站点统计

    快速回复 返回顶部 返回列表