濠滨论坛

点击扫描二维码

查看: 86525|回复: 30

[工地实拍] 设计一部经理—【钱光泽】个人简介及作品

[复制链接]
  • TA的每日心情
    开心
    2016-1-3 10:20
  • 签到天数: 2 天

    [LV.1]初来乍到

    发表于 2012-8-2 10:30 | 显示全部楼层 |阅读模式 来自:江苏
    本帖最后由 南通业之峰 于 2014-2-17 13:08 编辑 ' \1 G6 M& M- h2 y% K. D
    & \9 r/ O1 j! D, M' x- z
    钱光泽.JPG
    ; J; O1 f! D3 Q: o" C  e
    师:钱光泽
    所属店面:南通公司
        历:本科
    工作年限:5
              2005-2006 北京业之峰装饰 南京公司设计师
              20067  中央美术学院 设计学院研习
              2008-2009 常州锦华装饰主任设计师
              200910月至今 北京业之峰装饰集团 南通公司高级设计师
    设计心语:真诚感动设计  用心演绎空间
    设计理念:绝妙的室内格局以功能性、生活性、艺术性为重点,把空间内在的气质、文化品位化为装饰语言融于作品中。
    设计案例:
        欧式风格:凤凰莱茵苑、江海皇都、水榭花都等
        现代简约风格:苏建花园、 中南世纪花城、名流新天地等
         地中海风格:都市桃源、绿城国际、博园岚郡等
        中式风格:万通城、高迪晶城等
         新古典主义风格:优山美地、新城小区等
        田园风格:金水湾花苑、星湖花园等
    中国室内建筑装饰协会会员
    北京业之峰装饰集团优秀设计师
    常州“十大优秀青年设计师
    曾获:中国“青年杯”室内设计大奖赛 二等奖

    5 z/ J/ s4 S, u: q/ {3 Q南通0
  • TA的每日心情
    开心
    2016-1-3 10:20
  • 签到天数: 2 天

    [LV.1]初来乍到

     楼主| 发表于 2012-8-2 10:41 | 显示全部楼层 来自:江苏
    案例地点:凤凰莱茵苑
    面积:220平米
    主要材料:浅(深)啡网纹大理石材、石材磨面雕花、镶钻皮质软包、玉石、磨花茶镜、墙纸、地毯、珠帘
    本案定位为简欧风格,室内装饰充分体现了欧式风格的庄重、典雅与高贵。在设计上首先强调生活化和功能化,尽可能地满足功能需求。本案的设计中要求空间不仅有典型的欧洲特色和深刻的内涵,还有浓郁的生活气氛,强调主人鲜明的个性特点,把居室的生活气息和生活场景灵动地表现出来,并且强调和谐的家的感觉。根据不同功能对相应的房间作出符合主人个性特点的方案,同时本案提倡自然简洁、比例均匀、形式新颖、材料搭配合理,收口方式干净利落、维护方便的原则,取得局部与整个空间的和谐,强调空间完整性和高贵、典雅感。

    + A) W- |" y' \0 {/ ]5 F  P" U0 o
    一楼平面布置图:
    一楼平面布置图.jpg

    $ s6 e0 O2 d8 `1 @
    二楼平面布置图:
    二楼平面布置图.jpg 【1】客厅1.jpg

    " N; I2 F# }4 l) l+ I& d4 }3 {% A
    客厅:
    【2】客厅.jpg
    餐厅和厨房:
    【3】餐厅厨房.jpg
    卧室:
    【4】房间.jpg
    女儿房:
    【5】女儿房.jpg

    5 ~8 z. E- q: y$ w
    回复 支持 反对

    使用道具 举报

    匿名
    发表于 2012-8-9 15:49 | 显示全部楼层 来自:江苏
    提示: 作者被禁止或删除 内容自动屏蔽
    回复 支持 反对

    使用道具 举报

  • TA的每日心情
    开心
    2014-11-30 13:27
  • 签到天数: 11 天

    [LV.3]偶尔看看II

    发表于 2012-8-18 14:35 | 显示全部楼层 来自:江苏
    很不错嘛
    回复 支持 反对

    使用道具 举报

    匿名
    发表于 2012-8-18 15:57 | 显示全部楼层 来自:江苏
    提示: 作者被禁止或删除 内容自动屏蔽
    回复 支持 反对

    使用道具 举报

    匿名
    发表于 2012-8-18 16:01 | 显示全部楼层 来自:江苏
    提示: 作者被禁止或删除 内容自动屏蔽
    回复 支持 反对

    使用道具 举报

    匿名
    发表于 2012-8-18 16:02 | 显示全部楼层 来自:江苏
    提示: 作者被禁止或删除 内容自动屏蔽
    回复 支持 反对

    使用道具 举报

    匿名
    发表于 2012-8-18 20:10 | 显示全部楼层 来自:江苏
    提示: 作者被禁止或删除 内容自动屏蔽
    回复 支持 反对

    使用道具 举报

    该用户从未签到

    发表于 2012-8-19 08:48 | 显示全部楼层 来自:江苏
    回复 支持 反对

    使用道具 举报

    该用户从未签到

    发表于 2012-8-20 10:51 | 显示全部楼层 来自:江苏
    回复 支持 反对

    使用道具 举报

    匿名
    发表于 2012-8-26 12:45 | 显示全部楼层 来自:江苏
    提示: 作者被禁止或删除 内容自动屏蔽
    回复 支持 反对

    使用道具 举报

    该用户从未签到

    发表于 2012-8-26 19:57 | 显示全部楼层 来自:新疆
    回复 支持 反对

    使用道具 举报

    匿名
    发表于 2012-8-29 17:56 | 显示全部楼层 来自:江苏
    提示: 作者被禁止或删除 内容自动屏蔽
    回复 支持 反对

    使用道具 举报

    匿名
    发表于 2012-8-30 16:52 | 显示全部楼层 来自:江苏
    提示: 作者被禁止或删除 内容自动屏蔽
    回复 支持 反对

    使用道具 举报

    匿名
    发表于 2012-9-6 17:06 | 显示全部楼层 来自:江苏
    提示: 作者被禁止或删除 内容自动屏蔽
    回复 支持 反对

    使用道具 举报

  • TA的每日心情
    开心
    2016-1-3 10:20
  • 签到天数: 2 天

    [LV.1]初来乍到

     楼主| 发表于 2012-9-8 10:59 | 显示全部楼层 来自:江苏
    装修地址:阳光府邸76#东单元
    户型面积:380㎡
    装修风格:简欧
    半包预算:21
    主材预算:约80        
    每平米造价:3000(全包)                         
    设计说明
    本案在材质上的运用及搭配上进行了创新,使得现代居家的空间在保持其原有的简欧基调上亦不失奢华感,打破了人们对现代简欧的风格定向认识。淡金色的镜子以及暖色调墙砖营造出整体家居的氛围。在空间的把握上也别具韵味,充分利用了每一个空间。
    一楼客厅:
    一楼客厅 (2).jpg
    一楼餐厅:
    一楼餐厅.jpg
    阳台房间:
    露天阳台房间_View01.jpg
    露天阳台房间.jpg 地下室.jpg
    二楼房间:
    2楼房间.jpg
    地下室:
    回复 支持 反对

    使用道具 举报

  • TA的每日心情
    开心
    2016-1-3 10:20
  • 签到天数: 2 天

    [LV.1]初来乍到

     楼主| 发表于 2012-9-8 11:07 | 显示全部楼层 来自:江苏
    工程地址:通州区金色城品11#1807
    面积:160㎡        户型:复式
    装修风格:简欧
    半包预算:8.8
    主材预算:22        
    每平米造价:600                      
    设计说明
               主人是一位30岁左右的成功商人,设计师与其沟通后,将装修风格定位为简欧风格。玄关处和一览整个空间布局,背景墙的玉石,马赛克,软包等材质与整个房间的材质,色调相呼应,正是这种呼应使客厅显得低调而又奢华,让人善心悦目,卧室以精致壁灯,大马士革纹窗帘,墙纸为主材质,色调以暖色为主,让整个卧室温馨,高雅。整个作品虚实结合,整体统一,奢华且温馨,充分变现出国际化的人居环境。
    使用材料介绍
    主料:欧神诺陶瓷,摩登橱柜,欧尚墙纸,盼盼木门,浪鲸卫浴,徐家地板等。
    辅料:兔宝宝木工板,龙牌石膏板,德国洁水PPR水管,业之峰专用乳胶漆等。
    一楼原始结构:
    一楼原始结构.jpg
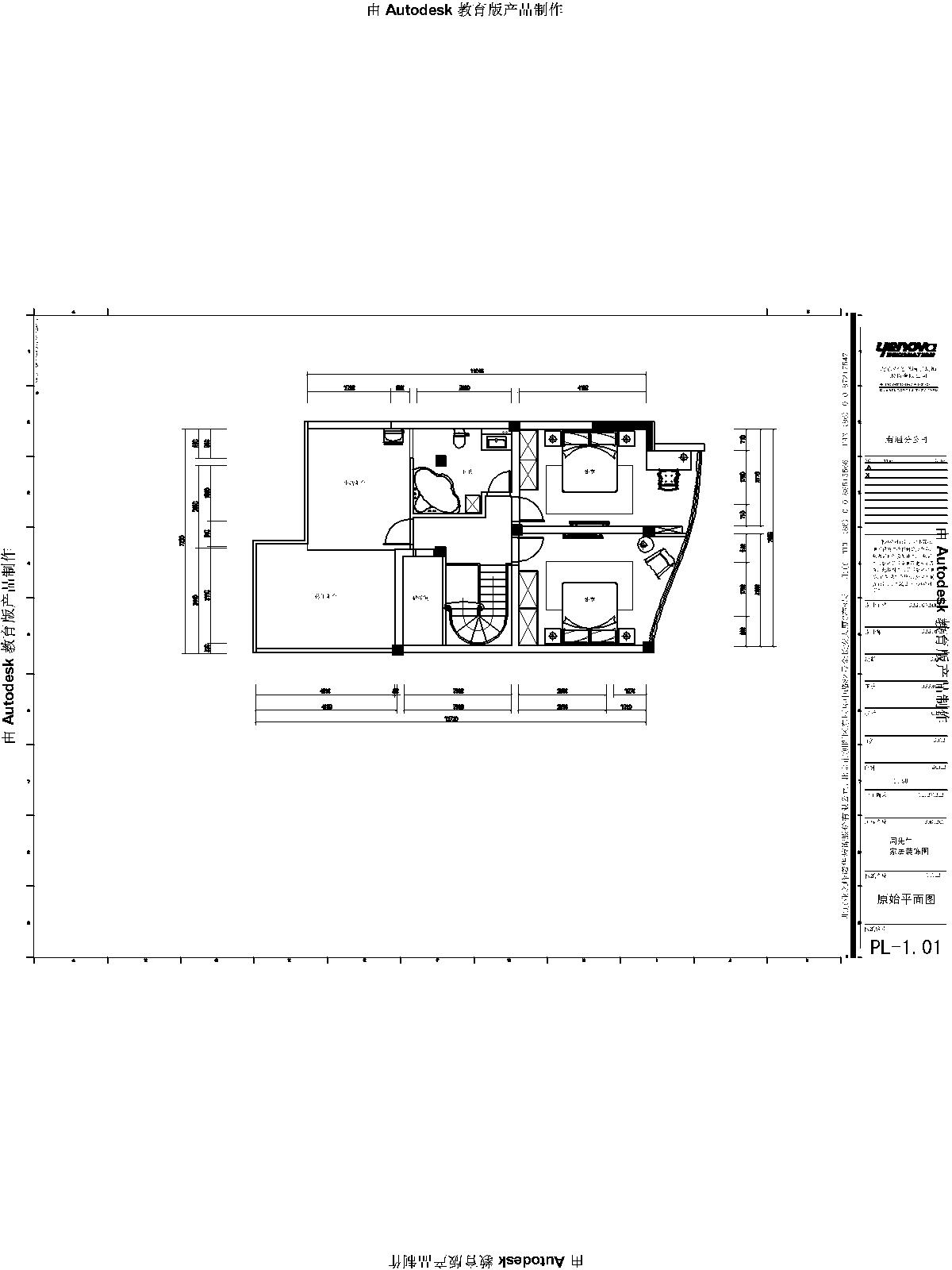
    二楼原始结构:
    二楼原始结构.jpg
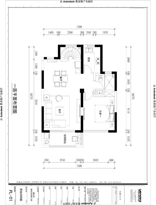
    一楼平面方案:
    一楼平面布置图.jpg
    二楼平面方案:
    二楼平面布置图.jpg
    效果图:
    【1】客厅.jpg
    【1】餐厅.jpg
    【3】卧室.jpg
    回复 支持 反对

    使用道具 举报

    该用户从未签到

    发表于 2013-4-20 20:03 | 显示全部楼层 来自:江苏
    选择芬琳漆的7大理由2 N2 k* V+ ?9 f
    http://user.qzone.qq.com/570961566/blog/1366374829
    - J/ @9 K1 o3 [- H: i
    回复 支持 反对

    使用道具 举报

  • TA的每日心情
    开心
    2016-1-3 10:20
  • 签到天数: 2 天

    [LV.1]初来乍到

     楼主| 发表于 2013-5-11 09:48 | 显示全部楼层 来自:江苏
    工程地址: 景瑞1850#1105
    面积:80㎡                    
    户型:两室两厅
    装修风格:现代                        
    半包预算:43880
    主材预算:15
    设计说明:
        室内空间设计,首先是满足功能需求,在这方面的思考不厌其烦,细致入微。设计师通过与业主的多次交流后,在满足其他功能需求的情况下,最大化的做大储藏空间。在次卧的处理上,设计师将房间整体扩大,弥补了次卧空间偏小的缺陷。设计师将玄关整体后移,使进门区域不再显得局促拥挤。本案风格是现代风格。整体空间呈白色调,大块面的墙纸使整个空间显得更加温馨。地面使用皮纹砖,显得更加生动,前卫。
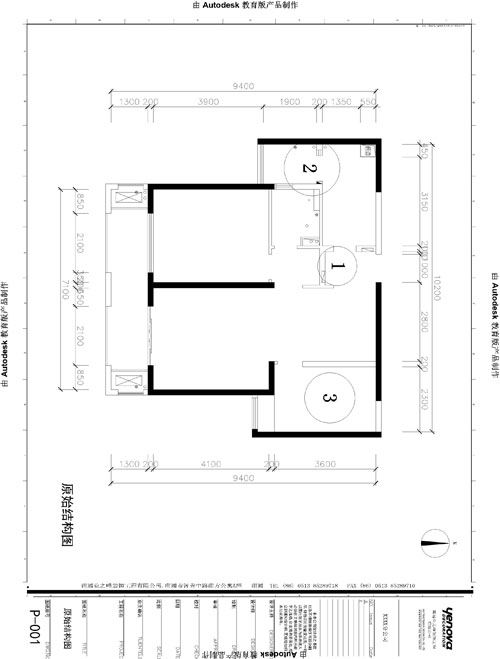
    原是结构图:
    1.jpg
    平面布置图:
    2.jpg
    效果图:
    【1】客厅.jpg
    【2】餐厅.jpg

    7 [8 O  _  d, p
    回复 支持 反对

    使用道具 举报

  • TA的每日心情
    开心
    2016-1-3 10:20
  • 签到天数: 2 天

    [LV.1]初来乍到

     楼主| 发表于 2013-6-15 14:41 | 显示全部楼层 来自:江苏
    工程地址:北城名郡3#1704
    面    积:130㎡               
    户    型:三室二厅         
    装修风格:现代  
    户型说明
    缺点:
    1、楼梯间偏小,且很陡。
    2、卫生间偏小。
    3、现浇后客厅层高偏低。
    改正后优点:
    1、将楼梯间和厨房间调换,增大楼梯间的面积,减小坡度。
    2、将卫生间南墙往南移动,扩大面积。
    3、将现浇面往上抬高两个台阶的高度,扩大客厅层高。         
    设计说明:
    本案例在和客户沟通之后,根据客户要求,将装修风格定位为现代风格。客户是一名教师教师,喜欢现代风格的明快时尚,所以在设计伊始就已经想到客户要求的效果。在原来的空间结构中,楼梯间稍显狭小,且坡度很大,对于家里老人很多的家庭结构来讲,这无疑是一大安全隐患,所以最后将楼梯间和厨房间调换位置,以达到扩大楼梯间的效果,而改后的旋转楼梯自然也就是居室内的一大亮点。客厅挑空部位客户要求现浇起来,但又存在了客厅部位层高偏低的缺陷,针对这个问题,我将现浇部位网上抬高两个台阶的高度,不仅解决了客厅的层高问题,二楼的卧室也别有一番风味。居室整体色调偏素色调,电视墙采用洞石,不仅视觉上美观、大气,而且使用年限上更长久。居室其他墙体大多是涂刷白色乳胶漆,简洁大方,满足客户的要求。
    原始结构图:
    一层原始结构图.jpg
    二层原始结构图.jpg
    平面布置图:
    一层平面布置图.jpg
    二层平面布置图.jpg
    效果图:
    【1】客厅.jpg
    【2】餐厅.jpg
    【3】房间.jpg

    $ a. Q; X7 i7 c4 |9 g; V$ d( u
    回复 支持 反对

    使用道具 举报

  • TA的每日心情
    开心
    2016-1-3 10:20
  • 签到天数: 2 天

    [LV.1]初来乍到

     楼主| 发表于 2013-6-15 14:45 | 显示全部楼层 来自:江苏
    工程地址:城市嘉苑10#606
    面    积:130㎡              
    户    型:四室两厅                                          
    装修风格: 现代
    户型说明:
        本案是一套建筑面积130㎡四室两厅一厨两卫的户型,从户型原始结构看这套房子的特点:客厅宽敞明亮,朝南两室阳光房,子女房带超大阳台,次卧室带飘窗,开敞明亮。厨房跟餐厅相互呼应….在跟客户杨女士沟通后,石女士还是比较满意她买的这套房子,但是在我们实地测量时也发现这套房子卫生间较小,正常三居室的家庭在使用时会不方便,所以我们考虑了解决方法,一:卫生间向客厅扩宽,二:卫生间做干湿分离,这样不仅使卫生间空间扩大,而且还使得进主卧的过道更加宽阔跟装饰效果。房子的储藏空间有限,因此在子女房阳台利用东面整墙我们给客户设计了一排储藏柜,解决了家庭后期在储藏问题上的难题。                  
    设计说明
        整体的风格设计以简洁 大方 实用为主,客厅电视背景以浅色石材砖基调搭配,使家里不失大气。由于客户家里有风水要求,要求天圆地方,所以在顶面的处理上运用了圆形顶造型,在沙发背景的处理上运用了面光源,从而点亮了其背景,进门的左手边运用石材砖与镜面的结合,使过道与客厅相辅相成,形成一体。
    原始户型图:
    城市嘉苑原始结构图.jpg
    平面布置图:
    城市嘉苑平面布置图.jpg
    效果图:
    【2】客厅1.jpg
    【1】客厅1.jpg
    【3】卧室.jpg
    / N5 f' ~  |+ U/ s+ S* R

    ; O3 g4 k% ]$ R: E% q
    回复 支持 反对

    使用道具 举报

    该用户从未签到

    发表于 2013-6-21 08:12 | 显示全部楼层 来自:江苏
    真不错
    回复 支持 反对

    使用道具 举报

  • TA的每日心情
    开心
    2016-1-3 10:20
  • 签到天数: 2 天

    [LV.1]初来乍到

     楼主| 发表于 2013-7-15 15:39 | 显示全部楼层 来自:江苏
    工程地址:莱茵河畔     
    面    积:174㎡  
    户    型:四室二厅         
    装修风格:现代
    户型说明:
    缺点:
    1、主卧空间大,但利用率不高。
    2、卫生间门正对客厅。
    改正后优点:
    1、将过道区域整体往北移,优化功能区间的衔接与组合。
    2、将卫生间门往西移。           
    设计说明:
    本案例在和客户沟通之后,根据客户要求,将装修风格定位为现代风格。客户喜欢现代风格的明快时尚,所以在设计伊始就已经想到客户要求的效果。在原来的空间结构中,主卧空间很大,但利用率不高,且过道空间过多,故我将过道空间整体北移,这样空间的利用率就会更高,且空间不显得那么凌乱。居室整体色调偏素色调,家具偏咖色,公共空间大块面使用洞石和灰镜,结合起来做,居室显得更大气。
    原始结构图:
    原始结构图.jpg
    平面布置图:
    平面布置图.jpg
    效果图:
    【1】客厅.jpg
    客餐厅.jpg
    房间.jpg
    . y$ R& O0 }3 O4 K
    " H, F  v/ q; d5 d# c

    ) \  w0 f& K/ s3 g! C- U
    回复 支持 反对

    使用道具 举报

  • TA的每日心情
    开心
    2016-1-3 10:20
  • 签到天数: 2 天

    [LV.1]初来乍到

     楼主| 发表于 2013-7-15 16:09 | 显示全部楼层 来自:江苏
    工程地址:万豪华府      
    面积:114㎡      
    户型:三室二厅         
    装修风格:现代简约           
    户型说明:缺点:1、厨房间偏小,北阳台利用率不高。2、餐厅显小。3、玄关显拥堵。改正后优点:1、将厨房和北阳台和二为一,扩大厨房间面积,增加空间的利用率。2、将餐厅东墙东移,扩大餐厅面积。3、玄关后移,进门视野更开阔。
    设计说明:
    本案例在和客户沟通之后,根据客户要求,将装修风格定位为现代风格。客户喜欢现代风格的明快时尚,所以在设计伊始就已经想到客户要求的效果。在原来的空间结构中,餐厅空间稍显狭小,所以将餐厅东墙往东移动,增加一个酒柜的空间,既扩大餐厅空间,又增加储藏空间,效果也会更漂亮。将厨房间与北阳台打通,扩大厨房间面积,空间利用更合理。进门玄关位置稍显拥挤,我将进门面对的一面墙往后移动,玄关更大气。居室整体色调偏素色调,公共空间大面积使用墙纸,增加空间的温馨感。餐厅酒柜位置使用灰镜增加空间的延伸感。
    原始结构图:
    原始结构图.jpg
    平面布置图:
    平面布置图.jpg
    效果图:
    【2】客厅-副本.jpg
    【1】餐厅-副本.jpg
    【3】房间-副本.jpg
    8 ^$ @* h- K+ s; V+ Z
    ) r! R- S, i# E
    回复 支持 反对

    使用道具 举报

    您需要登录后才可以回帖 登录 | 注册

    本版积分规则

    手机版|无图版|站务联系 | 商务合作 | 平台公约

    信息产业部备案:苏ICP备05014191号-1 经营性ICP许可证:苏B2-20110445 苏公网安备 32060202000307号 © 2001-2019 0513.org All Right Reserved.

    投诉争议 技术支持:第一互联 GMT+8, 2025-12-13 21:58 , Processed in 0.324701 second(s), 16 queries , MemCache On. 站点统计

    快速回复 返回顶部 返回列表