濠滨论坛

点击扫描二维码

查看: 12054|回复: 1

[百姓民声] 限墅令与联排

[复制链接]

该用户从未签到

发表于 2025-4-8 11:32 | 显示全部楼层 |阅读模式

    duli.jpg
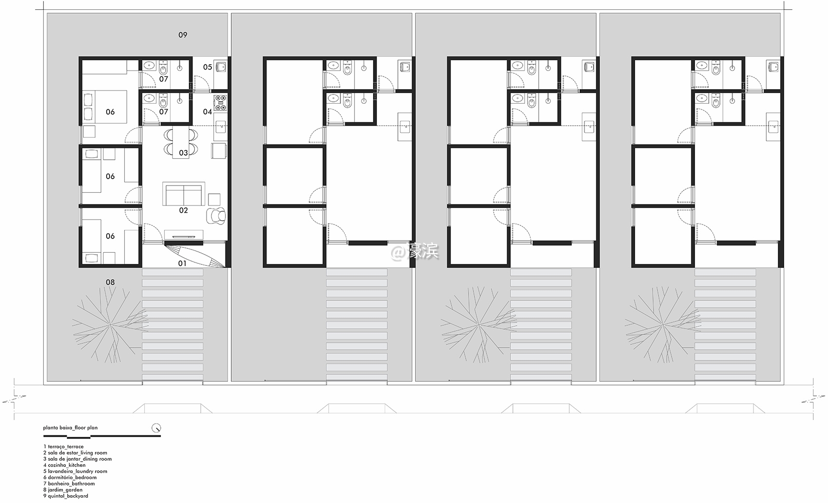
    限墅令下,大部地区分必须要建共用墙体的联排。包括一些离市区比较远,半个小时甚至一个多小时的地方。附近别的城市,有些主打小宅大院子的房型,因为限墅令,也被迫墙体连在一起。这种类型住宅的土地也不是不够呀。感觉很离谱。好像市区有的联排也挺宽的,是可以建成少量间隔的。
    住高层小区,公用墙体传播声音,至少隔个五六层都能听见。经济普通的老百姓,想买个不共用墙体的大产权的房子,要么太贵了望尘莫及。要么花挺多财产到郊区,但大部分也仍然是连体的,独立住宅选择也很少甚至没有。建议修改政策,改成联排可以建成不共用墙体,有少量间隔的,比如0.5米。同时间隔内可以禁止开窗和放置机器等。
    以下参考自网络。
    独立住宅:由于没有与其他住宅共用墙体,减少了声音通过墙体直接传播到相邻房屋的途径。
    连体住宅:共用墙是声音传播的主要通道。在进行隔音改造时,由于涉及到与邻居的协调以及建筑结构的限制,实施难度较大,效果也受到一定影响。
    总体来说,在同等条件下,独立住宅的隔音效果一般会更好。

南通0

该用户从未签到

 楼主| 发表于 2025-4-17 14:57 | 显示全部楼层
duli3.jpg duli2.jpg 022-paudalho-popular-houses-by-bebr-arquitetura.jpg
回复 支持 反对

使用道具 举报

您需要登录后才可以回帖 登录 | 注册

本版积分规则

手机版|无图版|站务联系 | 商务合作 | 平台公约

信息产业部备案:苏ICP备05014191号-1 经营性ICP许可证:苏B2-20110445 苏公网安备 32060202000307号 © 2001-2019 0513.org All Right Reserved.

投诉争议 技术支持:第一互联 GMT+8, 2025-12-7 17:56 , Processed in 0.191604 second(s), 15 queries , MemCache On. 站点统计

快速回复 返回顶部 返回列表