- 阅读权限
- 255
- 精华
- 最后登录
- 1970-1-1
- 在线时间
- 小时
- 主题
- 好友
- 相册
- 分享
- 日志
- 记录
- UID
- 811356
- 帖子
- 0
TA的每日心情 | 慵懒 2014-6-28 08:44 |
|---|
签到天数: 9 天 [LV.3]偶尔看看II
|
& s3 T* ^' D5 f
( v1 I! u) [6 p, _
, Y0 T0 W$ o2 M. g/ d4 q7 G7 d- p) K
1 U8 X6 S! ^) @7 H面积 / 110㎡
! X( ]0 E- a2 p x" c2 _+ y% r风格 / 现代风( }9 F5 }: \7 ?4 P' I
户型 / 三室两厅一厨一卫 s8 B. g& w8 _; B) Z
硬 装 设 计 / 印象水仙
: c9 I5 ~( O3 b' ]软 装 设 计 / 印象水仙! i/ Q* l4 p) D' _, d
施 工 / 印象水仙; M w0 K2 T2 d6 ~* `6 q& M
* b) _3 @% d+ @
+ P8 G, Q& ]- v+ P8 N
+ l: e: k' i5 x6 D/ T
本案业主是一位单身美女,温柔的外表下却有酷酷的情怀。喜欢一个人宅在家里,也喜欢几个好友到家里欢喜畅聊。喜欢利落的色调,也在等待同她共同喜爱的灵魂。月有阴晴圆缺,愿所想所得,觅得良缘,生活尽是美满。 c$ S# j8 m" H9 l; |. f2 Z5 q
( _8 e/ Y7 T0 ~在设计中,让材料固有属性制造出空间品质气息,打破暗调沉闷的氛围,创造质感的装饰效果,结合空间主人的喜好及生活习惯而定制的设计模式,充分体现在每一个细节中,有序的产生律动的美。
& X+ D# K) n( a, T8 J) S3 x9 E0 ~4 e8 x0 ^1 e# r
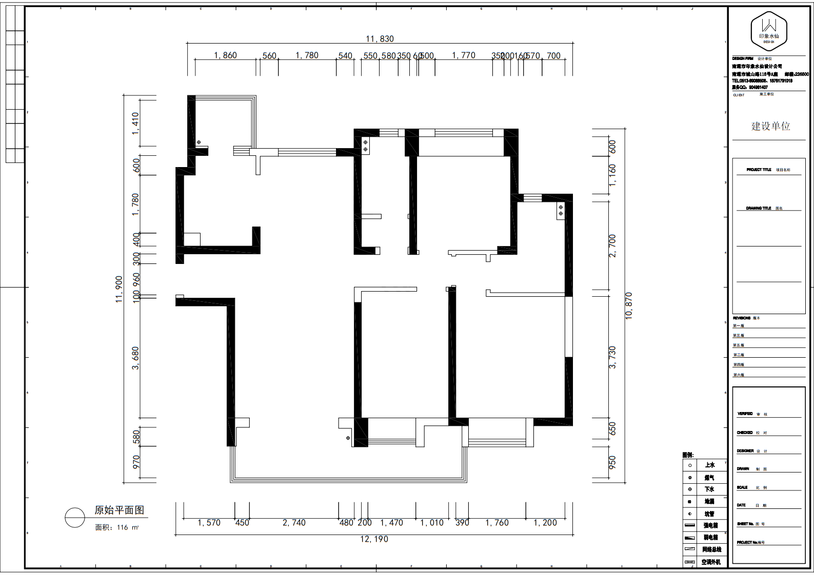
原始结构图( W- p, g2 @* q' D& W
% g( c5 }+ c3 _- `# Y: C
$ m5 }( S ~: ~8 {+ X% C! K
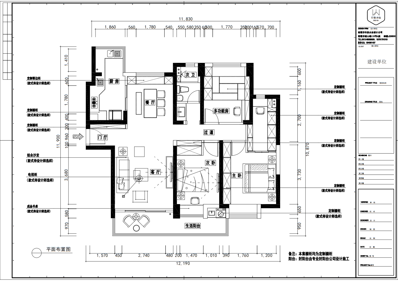
% J: h) l! f7 i平面布置图* `' }4 [. W3 h% d) Y
- d5 w5 K( H; L, [
7 j8 X: {0 a* O; [! f1 g, x
5 e3 E5 D3 C5 [Corridor" B; u/ c8 W) O% A: c4 u
. D; a1 ^6 B" c0 D' j: o
; p* h4 s5 [$ C
; v7 f& `8 R" t6 ^1 G& }' H进门看到过道的艺术壁画,强烈的视觉冲击,格调从这里开始。
- Q/ P- `0 Y7 f& {: G
! R7 A9 Z3 n& b" @Living Room 9 ^7 N1 `2 j- w2 P+ @- ^* f- b7 [
8 \6 _: e2 q8 n( d* A$ A' X3 l! h
( J Y/ {& g. V
8 Q( \( g* R8 O" G! G0 W7 f步入客厅,恰到好处的色彩为整个家定下了温暖、富有生命力的基调。参差的线条感,让整个空间充盈着时髦灵动的活力。
8 H3 w; U1 @4 `: }/ s9 l+ u2 ^' }9 B( v
: Y4 x; s0 q6 ]% Z2 ?
+ O& x6 B3 ~7 }( l& m' z2 j2 ^
% D& v& \. X& I" Y C4 t, h, M& d' f0 h/ U. n2 [% w# [
局部石材搭配金属元素,融合一下暗调,营造温暖宁和的居家氛围,开放式的客厅,深浅搭配的色调,为空间增添了时尚与摩登的气息。
" a+ F5 r- X6 |: P
; Q* a. K1 D+ d7 i( r- `
+ _" [* _6 I: K9 U% ]( }7 t) C1 h9 p$ z i3 n( h
% U. F6 ? u* E' I
. ^, X* r. ?! l- y# mDining Room
- L4 H [& b' L8 {: o- X# W' x$ a& i* Y# u Y; W4 V8 h
4 h1 _6 j3 [4 X' O7 G2 i& ^
6 I" l/ ?) n, u& H8 I1 e1 i" m9 m5 E
生活中的色彩丰富多样,餐厅的色彩延续了客厅的基调,拼色中略带质感;业主住在这里,一道菜、一杯茶、一束花...诠释着业主对美的品味追求与气质。) d, U9 n0 f, e& `/ [7 e
* D7 | d0 n" w& q7 T6 L! h8 w1 L' T+ H
3 F; a. H8 U7 @$ j. f
2 A# H; H( t$ N j. F1 C" B
设计师在窗户两侧设计了餐边柜,吊灯的照射下,柔和的光亮为餐厅铺上了温柔的韵味,似阳光给人温暖。
, h2 N$ l% u, K5 I* r3 E; \) l$ c6 I4 ~5 K/ J- O% b; f
& N( y6 x" f; \/ T' q: I# n3 }/ n( y6 n. f8 t( P
: m% K T+ G# w9 B2 A% W v6 W: a- Z: z! O0 s# O7 g
Kitchen
+ j9 l+ Q, h4 b: I9 S5 A1 r" _# _) _8 w3 @& O4 D0 h m( f
! K8 R& L4 V+ m/ [% Y' @0 w
, L) z1 X9 N' C3 W3 ~ A$ L
浅色的橱柜配上灰色墙砖让厨房,简约大方,花色地砖的设计更是脱离了平庸,时尚又充满设计感。# q9 S/ Z1 o( f, m9 u( c
+ H s# ~6 u5 k- g0 J- T' eMaster Bedroom
4 w& v1 B2 w7 F/ ^! E( c$ l2 h" `# t: F }2 \& h9 }
$ j Q" T5 J3 e( L5 {5 W
) x6 W, V1 o5 L* s6 \
主卧的设计色调偏暗又不失格调,业主喜欢的基调,墨绿色窗帘及橙色皮床让人眼前一亮。床头对称的圆形吊灯设计给整体空间带来了一丝暖意。
1 G# a k6 M- R1 Y( e2 p4 g" `9 ^6 m7 H# m) {3 ?
* G o; }* W3 B( n9 S6 l+ X( r
: Z& L3 ^" W( b: L! a# n步入式衣帽间采用了黑色的半透明玻璃,如同加上了深色的滤镜一般高级沉稳。
) ]) F) n& c+ ^5 M& U8 Y6 |5 ^9 X
' t& [ h# _5 {* _1 r9 d$ ^7 X
( J# V, ~& Q0 D5 a: p/ j( s. O: Z, @; a4 ?' }
% Z7 X6 ^+ U2 U- P: W
( J& P0 a9 E! ]. W2 G
Second Bedroom* G& ?4 L1 }8 R8 l
" b+ H& d! `- K( Q& O
1 r+ e7 E$ g& Y9 k6 a9 L) Y2 V3 V. J& o
次卧给业主妈妈居住的,相较于主卧则显得亮堂得多,蓝灰色与白色的搭配营造出静谧舒适的韵味,特别吊灯则给予空间轻柔的味道。8 c- b/ A$ @1 m$ m
0 ~& W( e# R) y4 Q; |& d8 ] Study
# q, X" i% c O- V' D6 s% @( I
! }6 U2 j' r* \/ e5 {- y% t
0 i8 h9 Y- R9 v: n& N4 Q7 ]6 g
8 }3 L* p" K4 T5 F! A& q简约整洁的书房带给人心灵的安宁,设计师充分利用了柜子来进行收纳摆放,将空间利用到了极致,书房内还安置了榻榻米,风格朴素但透露着满满的书香气,闲暇时光备一杯茶,躺在榻榻米上,手握一卷书,享受一天的思考时光。0 e" \- d4 V9 N6 ~. B" v. Y, d
4 @! X. \- N- S+ t+ Q1 l7 ?6 \* t ~Toilet! V' F4 P8 u. ?6 B
^; y9 w* e0 q, c1 E. q) o, I! v0 A
" U+ U; R/ W( h1 s2 T
" c: s1 ?9 X b
出于实用考虑,卫生间设计师做了干湿分离,花色墙砖,白色台面搭配木色浴室柜,完美契合。
* e+ r7 _* }* M3 d0 }: W0 m z
7 x7 `$ r' \* n0 j
6 t" H& t: z3 y/ D3 k" q, e/ z% P" C
南通0 |
|