- 阅读权限
- 255
- 精华
- 最后登录
- 1970-1-1
- 在线时间
- 小时
- 主题
- 好友
- 相册
- 分享
- 日志
- 记录
- UID
- 811356
- 帖子
- 0
TA的每日心情 | 慵懒 2014-6-28 08:44 |
|---|
签到天数: 9 天 [LV.3]偶尔看看II
|
, q. P' Z' Y& i5 z. f' Y
/ \. p3 p5 A. |
: Z3 o6 z: E7 w% b% D6 d
k7 F0 z, a5 p8 Q屋主说:“我们一直都很想要一个美式的家,但是不太喜欢古典美式的‘做旧’感,想要新家偏时尚简约一些,可以给我们舒适惬意的居住感受。”
+ j' a& y, e: h/ C. m1 P! N7 S& t
~; ~% e( i: m$ M6 l1 b在设计师看来,屋主对新家的需求及期望非常明了,简约美式风格即自由浪漫,时尚即不落俗套、与众不同,舒适感则需要对空间氛围及软装家具的把控。 7 `! T5 o# ^) I7 L1 u/ `
. Q, S2 @" p/ M$ t) u3 r8 G, @8 d! y+ ~+ ?; `
$ d6 }: m( e! z% ?: b
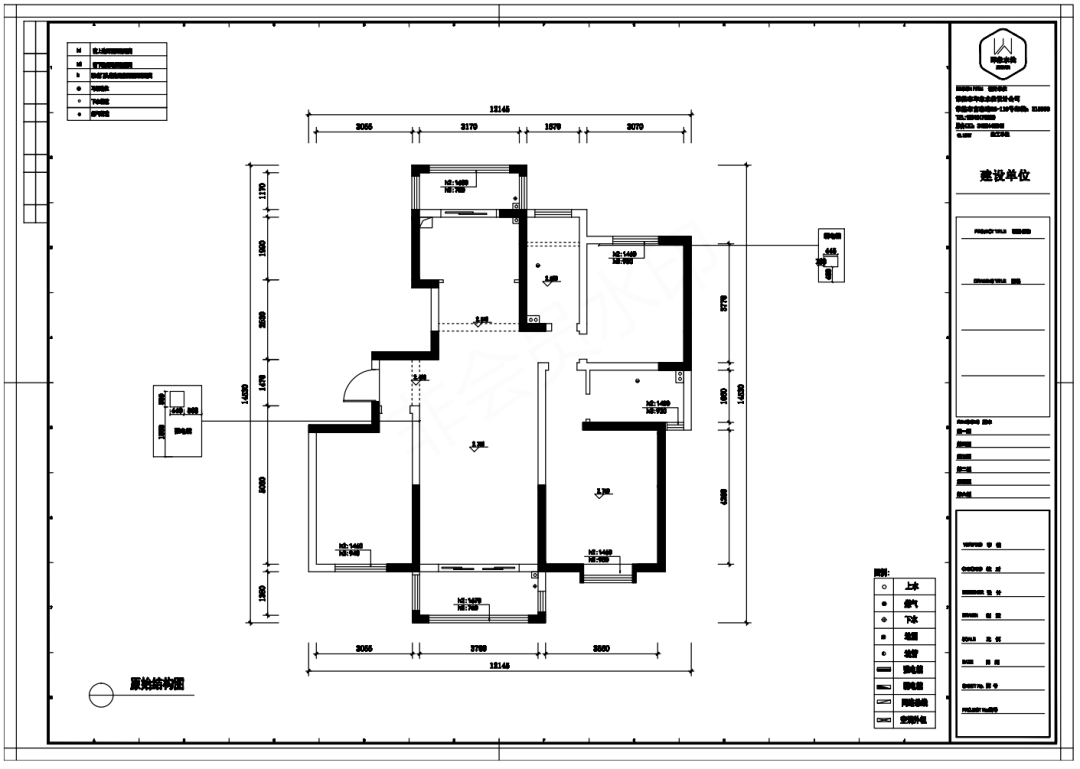
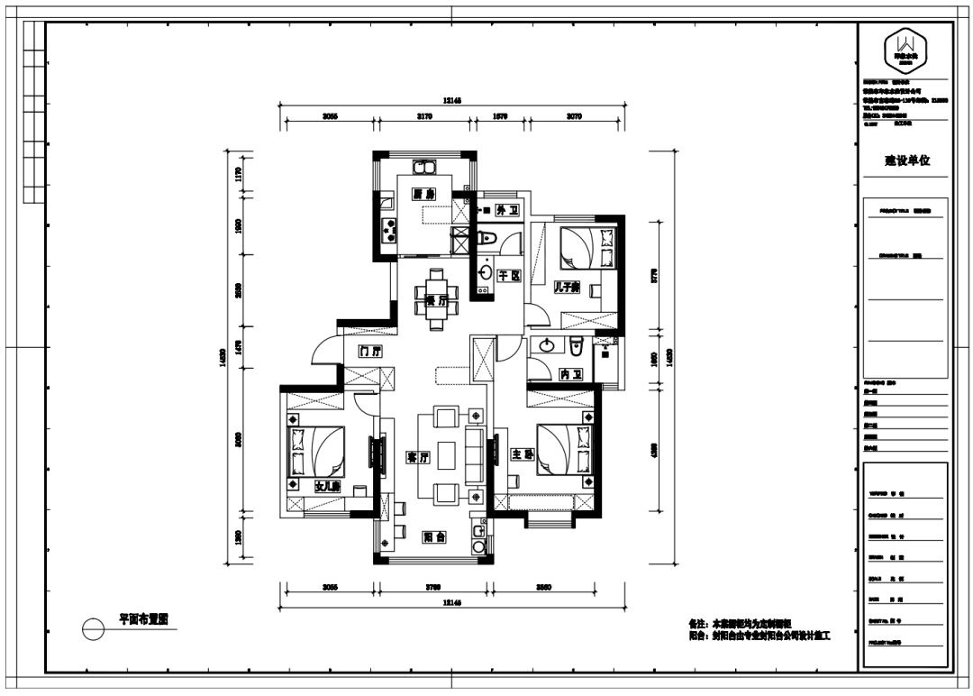
/ `, I0 R( V1 k9 Q: v2 qABOUT THE HOUSE
3 o+ R+ R) W: v2 I
' m# I, o* e) ?3 x) T125㎡简约美式风# v9 n' T8 T1 H) }9 w- F
三室两厅两卫一厨
+ T3 D) t+ i7 w( |) o6 s" N设计公司:印象水仙% h* H' {# O7 R4 }" ]
施 工:印象水仙
8 c: Z. j4 N. Z8 l1 C5 R
k) B; X! T$ {4 |$ z0 [1 F
. ~' b0 M1 Y0 T8 N$ _* B/ ^5 q
2 e" i; [0 Q f: k6 V
' X P _, \2 \( r- z) y; M5 v
# V' R, s! E. b) y
: \; @: Z x; J6 a, k/ hHALLWAY `8 z+ S2 I3 `( s
# r6 i3 D5 S! i. U; l
* `5 q! c+ s( e' ]# B& J: j$ i2 ? }! {! T
$ I9 y; t+ j2 R空间中的功能性设计由生活而来,不为对立而生,互为因果相融。 G4 q7 B1 w: ?& e. ?
9 ]6 S6 M! p3 a. N1 e' Z
LIVING ROOM u* N. L' @8 m* P! L2 E9 r9 l
( u7 k4 ]& S! G! @5 S. ~
1 E9 I' n. F" y8 S+ Z
2 T' S& r$ o/ _) E, ]浅蓝色作为客厅的主色调,结合白色石膏线,放大空间的同时给予整个空间清新明亮的基调,再加入抱枕、花艺、毛毯、灯饰等配饰点缀,丰富空间层次,打造温馨舒适的氛围。( c' [1 [7 ?- X" b' \1 i- d
* `; W5 I) Q- {. a
) D; ~& R4 O/ v) a) j7 @+ |: {: U* H% t4 M' ?. {
电视背景墙采用白色收纳柜以及内嵌电视,在丰富空间层次的同时,也展现出业主的不俗格调与品味。! ]2 e; b1 r9 b* t% h
; v: _# |$ }; D7 u+ z' h
浪漫细腻的软饰绽放出迷人的光晕,温馨的色调搭配出不俗的品味。
! u4 \. W, t0 {" @* c! k1 @5 s' E! z% h5 b$ M
, O7 U, q: i7 R- \$ ]
) L, @; M! B8 U
DINING ROOM+ j6 U* V& A Z
7 ~ } o6 X! g
3 h- _/ [& J) N: ~5 R# u( _% u& A% P
9 `+ v3 n6 ]6 j" e0 f& J( d阳光、美食,把这两个美好的词汇放在一起,就成了一件非常惬意且浪漫的事。
( U. d) J4 L6 O! `$ a% ]. S7 K0 z$ i3 } i- `
7 S; R: ~; O/ V( m' ~
, ^) P$ h8 G) y* Y4 D" }, b
( d8 |" f8 K& Y9 S4 X* A餐厅延续客厅主色调,桃木色餐桌椅美式风十足,空间用金色元素点缀,更显精致。
# |' Q4 S4 r1 t) Y3 r( h" M
% T* m- ~1 H$ _' y, r
) f1 c/ C8 I# K1 Z: c/ \& O
& n6 G4 r9 z9 R; v
6 _) g: @" X% T, }: J9 w( o& y( f8 D: Z( O3 f
kITCHEN
; W6 q/ z; ^: S. a. u
- w( j$ X( M1 |) b/ K$ O
1 G' k) g3 z) n) H. X) |1 ~7 l
1 Z/ Z( B6 \( y/ ]0 b白色木质橱柜搭配仿古地砖,极具质感;阳光从窗中渗入,所有的颜色展现出本色的自我,空间格局更是暖人心脾。 l4 {9 P7 {" _" }- s
9 r* n! J1 e7 x/ P
BEDROOM( n5 v# T. Z# ?9 [. c
: Y7 S' \# P) H7 L q
/ R7 V. u! z( k. f& U
( `/ ? }- f) y7 _
卧室大飘窗设计,明亮通透,向暖而行;雅致悦目的色调,给人带来直抵心灵的舒适品质感;厚重的美式家具与浅色空间融合,彰显设计的独到之处;飘窗置物柜的设计,将收纳空间最大化。
& D/ o% l! x) `( c
$ V. U2 D: b9 h- w$ p+ \# ?
5 P0 X' z& L! h9 T8 E1 ^2 Y; d6 y; \
/ e4 c) o. \/ T O K8 {: ], j
- @1 \$ U$ l, _) F% M2 ?+ s& F* f# Z: J
PARENTS'ROOM" R' S" R8 v( V; g! j" d8 G. V7 ?1 B/ k
! l8 A1 _* _* U
1 w/ [$ v" @" `: F
1 e& T1 X1 b, y. E' O/ H; E
父母房的打造则显得更为沉稳,保留古典色泽的实木床与地板,温和缱绻,让居住其中的长辈有一种温暖舒适的感受。1 n6 |) Q! X! ^: i1 J9 b
% Y1 l. Y/ H3 ^4 J, i6 P! ]# I
+ R1 t9 i% i# g% w- u U# Q! h1 c+ V# x
CHILDREN'S ROOM1 {0 [+ `" Q' C& j
( t: ^( W# [2 h6 p1 ]) ~
7 P$ s; l- F4 _
6 a! q1 \* M0 m4 a; Q& w
这是儿子房,以蓝色为主色调,清新大气;由于空间不大,只放了一个床头柜,旁边放置了一张书桌,这里同时满足了儿子睡眠、学习、休闲的需求。
" s& ~% ?2 g% B* o
! D( e \6 K1 e0 [ @& y$ }% \0 u ETOILET3 I1 _8 [& M5 w* H$ j
$ I$ U6 k6 q, }8 J
# j9 x0 o" u& Q* V$ a
6 `9 Z9 }8 c; \3 ]8 M& V3 ?
消除疲劳的最好方式就是洗澡,在工作一天的时候或者运动完之后,洗一个舒舒服服的热水澡,消除一天的辛劳。而干净的空间也能为洗澡的心情加分。
, }& M, o5 A9 n# o6 v1 M- J1 z2 E# Q5 @$ J( R* \5 D
- x, @: K: j- Y- U3 h% a. {
( k1 {* q+ P$ r4 ^/ n# _
# b6 v% a5 v0 j% X' [
" T8 j9 }8 k2 v* ]3 v$ Y8 ^( r南通0 |
|