7 o+ a! F$ r. ^# ?3 A- [& p( h% y' D3 }
让大家久等的第八期濠滨家居公益设计效果出炉啦!好来居装饰全体员工祝论坛的网友们,生活愉快,身体健康,万事如意。祝所有回帖的网友,马年大发财
; d6 z6 h1 w* V5 `4 |% u' D; i. B, U1 r) F. X' }: ~
---------------------------------------------------------------------------------------
) z7 _: p3 ~ ?9 x回归正题: w% w1 P9 s( e6 n! u) D
业主是一名年轻的妈妈,有个开爱的女孩,比较注重生活的实用性,在和业主沟通之后选择居家生活为主的现代简约风格。+ W, l. \8 Y* v. S- d
. ^* n# }7 [3 N! ?设计单位:好来居装饰-私宅订制团队
4 P! b0 e7 w/ |* W6 O, C) n3 M设计师·设计二部经理:王言
9 W8 G) ~- L9 O0 ~
第八期入选的业主为德诚翰景园的网友!9 v; ^7 c* F( e0 j. T8 m! I# w
论坛ID:珂楠宝贝
/ w+ {- d! W% R- {, v8 H0 u报名贴:【濠滨家居公益设计活动】+德诚翰景园+三室两厅两卫8 ~. a2 i3 B7 w0 B. n- Y3 X8 o6 s
https://bbs.0513.org/thread-2127998-1-1.html
! q( e _0 w/ x- Y( n+ R----------------------------------------------------------------------------------------------------------- X- n ]; m2 Z3 \! O- ~
$ {% ^$ l2 ^- ?+ D5 X( z所在小区:德诚翰景园2 o& `- {4 C. Z2 z& m
面积:135平方左右3 J+ |. t% A# H% W8 M
装修状况:新房5 V, B+ B7 k2 ?
设计要求: i0 @- E! n7 E. ^8 x
1、三口之家,有10岁女孩
0 U+ T& R3 ~) f" O6 k( Q! l* v2、温馨、有收纳空间
2 b0 Y1 c! u$ w% L/ L, s# U3、功能齐全
3 d; x! G5 W7 q+ @4、北房间不做书房,要预留老人同住。 ( ~! c+ Z7 v: v# [4 m- K/ C$ `9 o
3 n6 ^0 g* ?; B3 @
& z0 }3 O8 }8 Z G' A3 J: H从要求中,看的出我们的业主,是为贤妻良母,为女儿和父母考虑比较多,注重实用性。整体户型比较合理,通风采光都良好。. p% |9 s$ S$ A/ G
业主是以为很好沟通的女士,也很热情。第一次约的时候,我们报了“家门”,告知是濠滨论坛的合作商家。非常的配合我们,因为我们是一大早7点多一点,早早的上门量房,在这里给业主点个赞~~~
$ ?) n8 e* D& A, L b0 C5 ~( C5 T
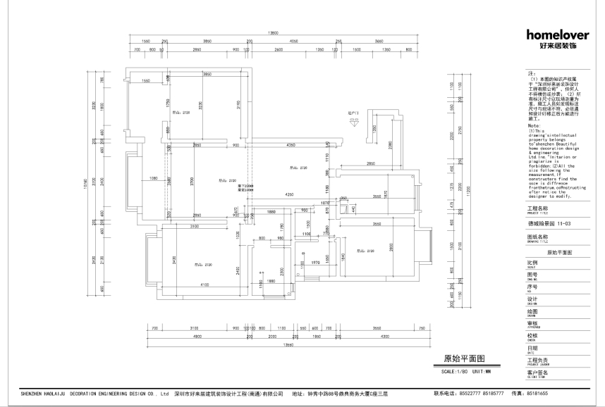
% `, P. S1 c2 [$ t经过设计师和业主沟通,我们的平面方案出炉啦!原始平面图
0 f; @2 Q( L- s. |6 \: ]4 s" Q
平面布置图
$ q8 t4 H/ x7 @" v7 j' R0 V% M
/ o1 ~, U: c# \2 z( Z! X) {
为了迎合出业主的个性与品位,设计师将设计风格方面界定为简洁大方的现代新简约主义风格,在材质方面、原户型的大局合理性尽量保持原有的美,所以在设计手法只是灵巧地运用不同材质、造型把整个空间有机地融为一体! 4 A0 g! | H' N
效果图方案呈现 3 S+ f7 J7 j) E% [0 m+ S: j
) ?3 x0 l2 Q/ N; I; I" }
2 W$ u2 k. J0 [& E4 Q9 I! I * O7 i) y4 [& {/ U2 ]* y
4 |2 C0 V: \" q0 z, A: z
' z6 ?+ O) k6 D- y* h
# v0 ^+ {1 ?0 F2 w9 u. s6 S j
6 p4 h+ W! @0 C+ U
1 u) P" h+ b: |0 U, D
南通0 |